Chat with us, powered by LiveChat Wilhelmina van Pruisenlaan 240, 2807 MC GOUDA - Van Der Giessen & Van Herk Makelaars

Gouda

Wilhelmina van Pruisenlaan  240

€ 395.000,- k.k.

Omschrijving

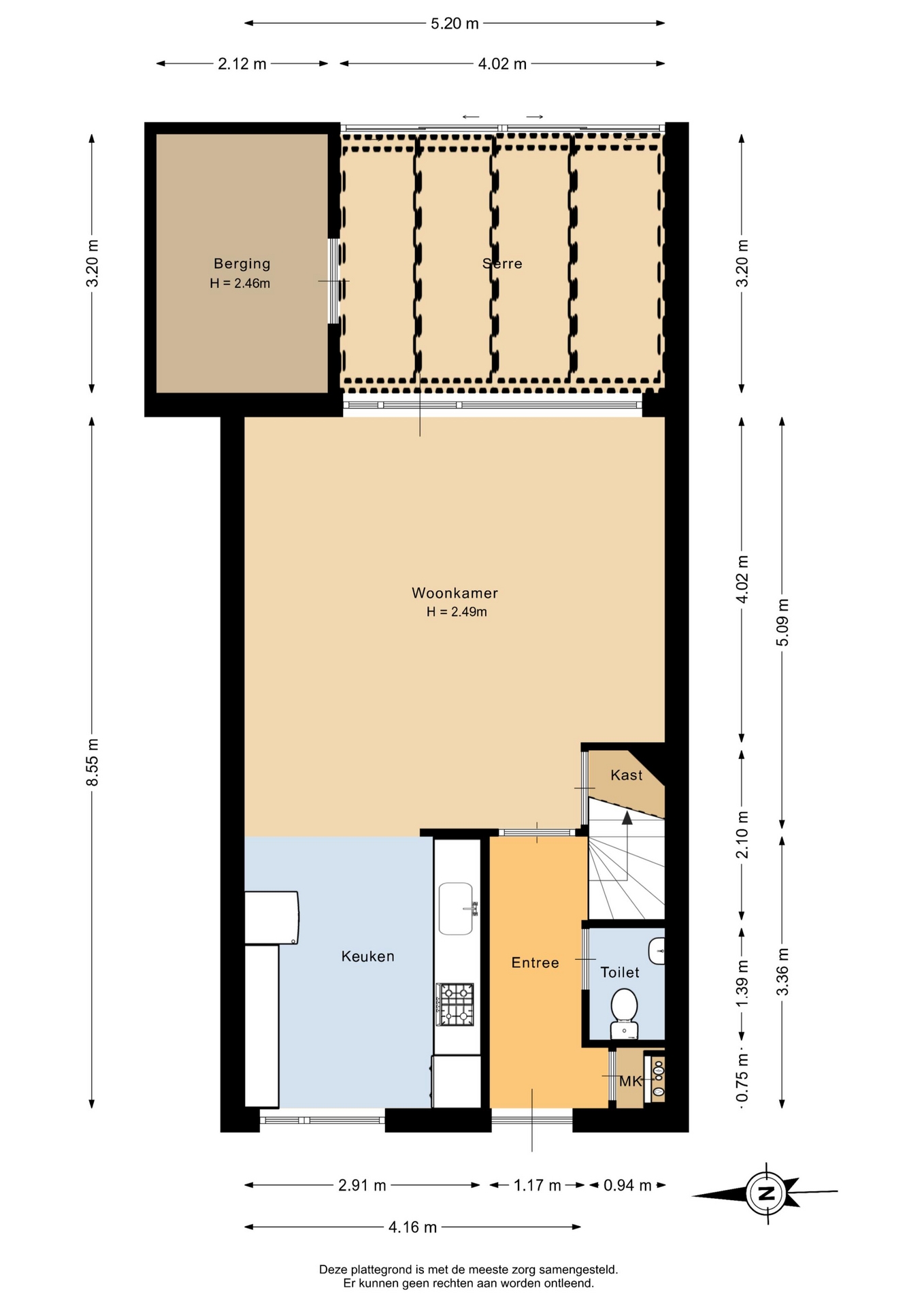
FIJNE STARTERSWONING MET RUIME TUIN EN SERRE Ben je op zoek naar een fijne plek waar je de ruimte hebt om te groeien? Dan zit je hier goed. Dit huis ligt in een rustige straat in een prettige woonwijk en biedt precies wat starters en jonge gezinnen zoeken: een fijne leefruimte, drie volwaardige slaapkamers en een heerlijke achtertuin met serre. Hier woon je comfortabel,…

FIJNE STARTERSWONING MET RUIME TUIN EN SERRE
Ben je op zoek naar een fijne plek waar je de ruimte hebt om te groeien? Dan zit je hier goed. Dit huis ligt in een rustige straat in een prettige woonwijk en biedt precies wat starters en jonge gezinnen zoeken: een fijne leefruimte, drie volwaardige slaapkamers en een heerlijke achtertuin met serre. Hier woon je comfortabel, praktisch én met genoeg mogelijkheden om het helemaal eigen te maken.

VERKOPERS AAN HET WOORD
''Vanaf het moment dat we verhuisden, voelde dit huis echt als thuis. Het is een plek waar we veel bijzondere herinneringen hebben gemaakt en hebben genoten van het comfort en de rust die het biedt. De vriendelijke buurt en het gemak van winkels, scholen en openbaar vervoer vlakbij maakten het dagelijks leven heel eenvoudig. We hebben vooral genoten van de tijd die we doorbrachten in de serre en de zonnige tuin. Het loslaten van dit huis is niet gemakkelijk, maar we kijken ernaar uit dat de volgende eigenaren hier hun eigen herinneringen kunnen creëren.''

LICHTE WOONKAMER MET TUINCONTACT
Zodra je binnenkomt valt direct de lichte en open sfeer op. De woonkamer is ruim opgezet en dankzij de grote raampartijen aan de achterzijde komt het daglicht mooi naar binnen. Er is meer dan genoeg plek voor een gezellige zithoek en een royale eettafel waar je met vrienden of familie samenkomt. De verbinding met buiten is hier echt een pluspunt. Zo loop je zo de serre in, die een verlengstuk vormt van de woonkamer. Dit is zo’n plek waar je al vroeg in het voorjaar zit en tot laat in het najaar nog gebruik van maakt. Vanuit de serre kijk je uit op de verzorgde achtertuin, gelegen op het oosten. Een fijne plek om de dag te starten met een kop koffie in de zon.
Aan de voorzijde van het huis vind je de keuken. Deze is praktisch ingericht met voldoende werk- en opbergruimte. De lichte kastfronten in combinatie met het werkblad zorgen voor een frisse uitstraling. Hier kook je met gemak een doordeweekse maaltijd, terwijl je toch in contact blijft met de rest van het huis.

DRIE SLAAPKAMERS EN MODERNE BADKAMER
Op de eerste verdieping vind je drie volwaardige slaapkamers. De grootste slaapkamer biedt alle ruimte voor een tweepersoonsbed en een kledingkast. De andere kamers zijn perfect in te richten als kinderkamer, werkkamer of logeerkamer. Dit maakt het huis flexibel en geschikt voor verschillende levensfasen. De badkamer is modern uitgevoerd en straalt rust uit. Je beschikt hier over een ruime inloopdouche, een wastafelmeubel en een handdoekradiator. Dankzij het raam komt er prettig daglicht binnen en kun je goed ventileren. Tevens is er een praktische berging met wasmachine aansluiting.

RUSTIG WONEN IN FIJNE WIJK
De ligging maakt het plaatje compleet. Er zijn veel voorzieningen in de directe omgeving zoals winkelcentrum 'Goverwelle' (op loopafstand), basisscholen, sportvelden en diverse kinderspeeltuinen. Het NS-treinstation Gouda Goverwelle is bereikbaar in tien minuten lopen en van hieruit bereik je gemakkelijk de grote steden in de buurt. Voor ontspanning ben je zo in het Steinse Groen en bij de Reeuwijkse Plassen. De gezellige binnenstad van Gouda is slechts een kwartier fietsen. Kortom; een ideale eengezinswoning op een centrale en rustige plek!

BIJZONDERHEDEN
- Energielabel A;
- 8 zonnepanelen geplaatst in 2024;
- 3 volwaardige slaapkamers;
- Vanuit de bouw goed geïsoleerde woning;
- De badkamer is vernieuwd in 2021;
- De achtertuin is dit jaar geëgaliseerd;
- Zonnige achtertuin op het Oosten én aangebouwde serre;
- Rustige straat in een kindvriendelijke buurt;
- Oplevering in overleg.

INTERESSE? MAAK DAN SNEL EEN AFSPRAAK!
Ons advies is om bij het kopen van je nieuwe huis je eigen NVM-makelaar mee te nemen.

TOELICHTINGSCLAUSULE NEN2580
De Meetinstructie is gebaseerd op de NEN2580. De Meetinstructie is bedoeld om een meer eenduidige manier van meten toe te passen voor het geven van een indicatie van de gebruiksoppervlakte. De Meetinstructie sluit verschillen in meetuitkomsten niet volledig uit, door bijvoorbeeld interpretatieverschillen, afrondingen of beperkingen bij het uitvoeren van de meting.

"Deze informatie is door ons met de nodige zorgvuldigheid samengesteld. Onzerzijds wordt echter geen enkele aansprakelijkheid aanvaard voor enige onvolledigheid, onjuistheid of anderszins, dan wel de gevolgen daarvan. Alle opgegeven maten en oppervlakten zijn indicatief.”

KOOPOVEREENKOMST PAS RECHTSGELDIG NA ONDERTEKENING
Een mondelinge overeenstemming tussen de particuliere verkoper en de particuliere koper is niet rechtsgeldig. Met andere woorden: er is geen koop. Er is pas sprake van een rechtsgeldige koop als de particuliere verkoper en de particuliere koper de koopovereenkomst hebben ondertekend. Dit vloeit voort uit artikel 7:2 Burgerlijk Wetboek. Een bevestiging van de mondelinge overeenstemming per e-mail of een toegestuurd concept van de koopovereenkomst wordt overigens niet gezien als een 'ondertekende koopovereenkomst'.

Kenmerken

Basiskenmerken

  • Status Beschikbaar
  • Koopsom € 395.000 k.k.
  • Woonoppervlakte ca. 89 m2
  • Aantal slaapkamers 3
  • Bouwjaar 1991

Overdracht

  • Aanvaarding In overleg

Bouwvorm & onderhoud

  • Soort object Tussenwoning
  • Soort woning Eengezinswoning
  • Bouwjaar 1991
  • Soort bouw woonhuis
  • Ligging Aan rustige weg, in woonwijk, beschutte ligging

Oppervlakte & inhoud

  • Gebruiksoppervlakte 89m2
  • Perceeloppervlakte 119m2
  • Inhoud 322m3
  • Aantal kamers 5
  • Aantal slaapkamers 3
  • Aantal woonlagen 2 woonlagen
  • Overige inpandige ruimte 7m2

Energie & installatie

  • Energielabel A
  • Isolatie Dubbel glas, volledig geisoleerd
  • Verwarming Cv ketel
  • Warm water Cv ketel
  • C.v.-ketel type GAS
  • C.v.-ketel bouwjaar 2010
  • Energie einddatum 23-01-2036

Bergruimte

  • Schuur / berging Aangebouwd steen
  • Voorzieningen Voorzien van elektra

Parkeergelegenheid

  • Parkeerfaciliteiten Openbaar parkeren
  • Garage Geen garage

Dak

  • Soort dak Plat dak

Overig

  • Onderhoud binnen Redelijk tot goed
  • Onderhoud buiten Goed
  • Bijzonderheden Gedeeltelijk gestoffeerd
  • Permanente bewoning Ja
  • Huidig gebruik Woonruimte
  • Huidige bestemming Woonruimte

Voorzieningen

  • Voorzieningen Mechanische ventilatie, tv kabel, glasvezel kabel, natuurlijke ventilatie

Buitenruimte

  • Hoofdtuin ACHTERTUIN
  • Oppervlakte hoofdtuin 40m2
  • Ligging hoofdtuin OOST
  • Kwaliteit tuin Verzorgd

Kadastrale gegevens

  • Perceelnummer 8891
  • Perceeloppervlakte 119 m2
Meer kenmerken
Ontdek online wat jouw huis waard is

Met de online waardecheck ontdek je in een paar minuten de geschatte waarde van jouw huis

Online waardecheck

In de buurt

Geïnteresseerd?

Bel met Van Herk makelaars te Gouda

shape

Stuur een bericht

* Maximaal 255 tekens
privacyverklaring