Chat with us, powered by LiveChat Vivaldistraat 148, 2901 HC CAPELLE AAN DEN IJSSEL - Van Der Giessen & Van Herk Makelaars

Capelle Aan Den Ijssel

Vivaldistraat  148

€ 479.000,- k.k.

Omschrijving

***NU IN VERKOOP*** EEN RUIME EENGEZINSWONING IN 'S-GRAVENLAND MET INPANDIGE GARAGE EN PARKEERGELEGENHEID OP EIGEN TERREIN. DE WONING TELT BEHALVE EEN GARAGE OOK EEN KANTOOR, EEN RUIME LIVING, 4 SLAAPKAMERS EN EEN GROOT DAKTERRAS. LOCATIE: De Vivaldistraat ligt centraal in het gezellige 's-Gravenland, nabij winkelcentrum 'Puccinipassage'. Overige dagelijkse benodigdheden…

***NU IN VERKOOP***
EEN RUIME EENGEZINSWONING IN 'S-GRAVENLAND MET INPANDIGE GARAGE EN PARKEERGELEGENHEID OP EIGEN TERREIN. DE WONING TELT BEHALVE EEN GARAGE OOK EEN KANTOOR, EEN RUIME LIVING, 4 SLAAPKAMERS EN EEN GROOT DAKTERRAS.

LOCATIE:
De Vivaldistraat ligt centraal in het gezellige 's-Gravenland, nabij winkelcentrum 'Puccinipassage'.
Overige dagelijkse benodigdheden als O.V. (bus & metro), scholen, dagopvang, medische zorg, horeca en sport zijn ook op korte afstand van de woning te vinden. Binnen 5 minuten is de snelweg bereikbaar, dit maakt de locatie echt heel plezierig.

RUIMTE:
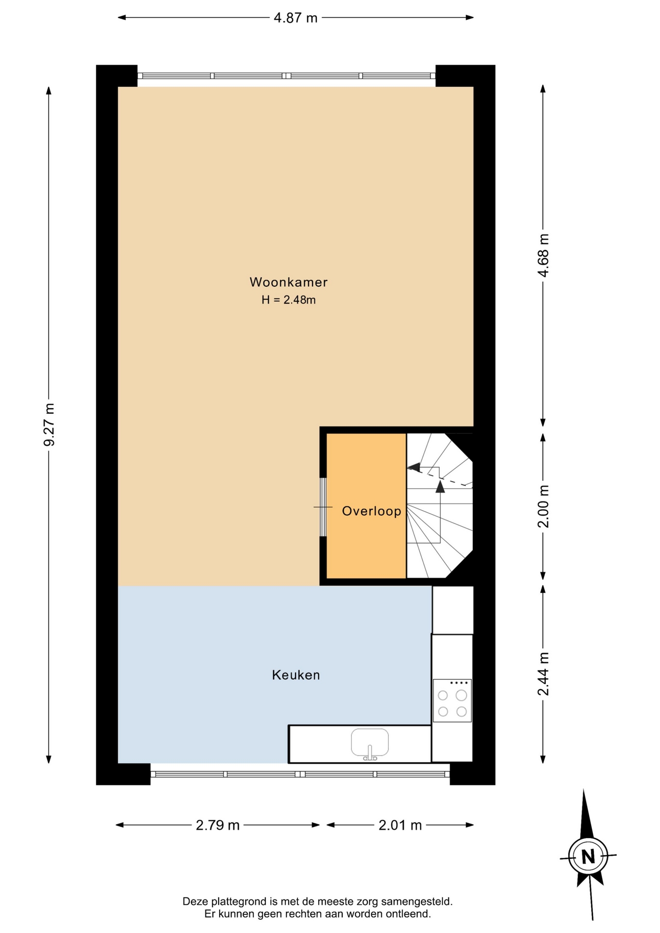
Deze grote drive in woning meet een woonoppervlakte van maar liefst 142m² en een garage van 16m².
De voortuin (32m²) biedt ruimte voor het parkeren van de auto op eigen terrein.
Entree met ruime hal (7.5m²), waar vandaan toegang tot meterkast, trapkast, trap opgang, toilet, garage en kantoor (15.9m²).
Op de eerste etage kom je vanaf de overloop terrecht in de ruime living.
Deze living is opgedeeld in een woonkamer (29m²) en een half open keuken (12m²).
De keuken in L-opstelling is voorzien van diverse inbouw apparatuur (afzuigkap, keramische kookplaat, koel-vriescombinatie, spoelbak en vaatwasser).

Op de tweede etage vinden we 3 slaapkamers en een badkamer.
De 2 slaapkamers aan de voorzijde bieden zicht over de voortuin.
De derde kamer aan de achterzijde is de grootste op deze etage en meet ca.19m².

De derde etage is opgedeeld in een grote kamer (17m²) met een stookruimte (2.6m²) en een aangrenzend, betegeld dakterras (22m²), gelegen op het zuiden.

SPECIFICATIES:
-Bouwjaar: 1993
-Woonoppervlakte: 142m²
-Ruime garage: 16m²
-Zonnig dakterras: 22m²
-Inhoud: 515m³
-Isolatie: volledig geïsoleerd
-Verwarming & warm water middels Atag C.V. ketel welke in 2022 is geplaatst
-Energielabel: voorzien van energielabel A welke geldig is tot en met 27-02-2036
-Handmatige bedienbare garagedeur
-Meubilair wordt ter overname aangeboden
-Oplevering in overleg
-In de koopovereenkomst zal een niet zelfbewoningsclausule, asbestclausule en ouderdomsclausule worden opgenomen.

INTERESSE? MAAK DAN SNEL EEN AFSPRAAK!
Ons advies is om bij het kopen van je nieuwe huis je eigen NVM-makelaar mee te nemen.

TOELICHTINGSCLAUSULE NEN2580
De Meetinstructie is gebaseerd op de NEN2580. De Meetinstructie is bedoeld om een meer eenduidige manier van meten toe te passen voor het geven van een indicatie van de gebruiksoppervlakte. De Meetinstructie sluit verschillen in meetuitkomsten niet volledig uit, door bijvoorbeeld interpretatieverschillen, afrondingen of beperkingen bij het uitvoeren van de meting.

KOOPOVEREENKOMST PAS RECHTSGELDIG NA ONDERTEKENING
Een mondelinge overeenstemming tussen de particuliere verkoper en de particuliere koper is niet rechtsgeldig. Met andere woorden: er is geen koop. Er is pas sprake van een rechtsgeldige koop als de particuliere verkoper en de particuliere koper de koopovereenkomst hebben ondertekend. Dit vloeit voort uit artikel 7:2 Burgerlijk Wetboek. Een bevestiging van de mondelinge overeenstemming per e-mail of een toegestuurd concept van de koopovereenkomst wordt overigens niet gezien als een 'ondertekende koopovereenkomst'

“Deze informatie is door ons met de nodige zorgvuldigheid samengesteld. Onzerzijds wordt echter geen enkele aansprakelijkheid aanvaard voor enige onvolledigheid, onjuistheid of anderszins, dan wel de gevolgen daarvan. Alle opgegeven maten en oppervlakten zijn indicatief.”

Kenmerken

Basiskenmerken

  • Status Verkocht onder voorbehoud
  • Koopsom € 479.000 k.k.
  • Woonoppervlakte ca. 142 m2
  • Aantal slaapkamers 4
  • Bouwjaar 1993

Overdracht

  • Aanvaarding In overleg

Bouwvorm & onderhoud

  • Soort object Tussenwoning
  • Soort woning Eengezinswoning
  • Bouwjaar 1993
  • Soort bouw woonhuis
  • Ligging In woonwijk

Oppervlakte & inhoud

  • Gebruiksoppervlakte 142m2
  • Perceeloppervlakte 77m2
  • Inhoud 515m3
  • Aantal kamers 6
  • Aantal slaapkamers 4
  • Aantal woonlagen 4 woonlagen
  • Overige inpandige ruimte 16m2

Energie & installatie

  • Energielabel A
  • Isolatie Volledig geisoleerd
  • Verwarming Cv ketel
  • Warm water Cv ketel
  • C.v.-ketel type GAS
  • C.v.-ketel bouwjaar 2022
  • Energie einddatum 27-02-2036

Bergruimte

  • Schuur / berging Inpandig

Parkeergelegenheid

  • Parkeerfaciliteiten Op eigen terrein
  • Garage Inpandig

Dak

  • Soort dak Plat dak

Overig

  • Onderhoud binnen Redelijk tot goed
  • Onderhoud buiten Goed
  • Bijzonderheden Gedeeltelijk gestoffeerd
  • Permanente bewoning Ja
  • Huidig gebruik Woonruimte
  • Huidige bestemming Woonruimte

Voorzieningen

  • Voorzieningen Mechanische ventilatie

Buitenruimte

  • Hoofdtuin VOORTUIN
  • Oppervlakte hoofdtuin 32m2
  • Ligging hoofdtuin NOORD
  • Kwaliteit tuin Normaal

Kadastrale gegevens

  • Perceelnummer 815
  • Perceeloppervlakte 77 m2
Meer kenmerken
Ontdek online wat jouw huis waard is

Met de online waardecheck ontdek je in een paar minuten de geschatte waarde van jouw huis

Online waardecheck

In de buurt