Chat with us, powered by LiveChat Stellendamstraat 78 A, 3086 ZN ROTTERDAM - Van Der Giessen & Van Herk Makelaars

Rotterdam

Stellendamstraat  78 A

€ 225.000,- k.k.

Omschrijving

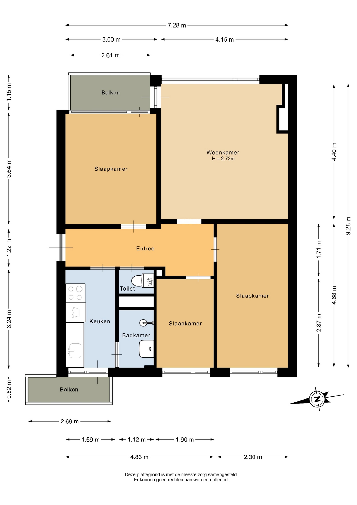
Stellendamstraat 78A in Rotterdam 4-kamer appartement met 2 balkons Ben jij starter en niet bang om je handen uit de mouwen te steken? Dan is Stellendamstraat 78A er één om serieus te bekijken. Dit 4-kamer appartement van 64 m² ligt op een centrale plek in Rotterdam-Zuid, beschikt over drie slaapkamers en twee balkons op het oosten en westen. Een mooie kans voor wie…

Stellendamstraat 78A in Rotterdam

4-kamer appartement met 2 balkons

Ben jij starter en niet bang om je handen uit de mouwen te steken? Dan is Stellendamstraat 78A er één om serieus te bekijken. Dit 4-kamer appartement van 64 m² ligt op een centrale plek in Rotterdam-Zuid, beschikt over drie slaapkamers en twee balkons op het oosten en westen. Een mooie kans voor wie betaalbaar wil starten en het huis helemaal naar eigen smaak wil maken.

De woonkamer ligt aan de achterzijde van het complex en is dankzij de grote raampartij prettig licht. Hier kijk je uit richting de straat en het groen rondom het gebouw. De ruimte is praktisch in te delen met een zithoek en eethoek. Vanuit de woonkamer stap je zo het balkon op, gelegen op het oosten. waardoor je hier juist in de ochtend van de zon geniet. Zo heb je op elk moment van de dag een fijne buitenplek.

Het tweede balkon ligt aan de voorzijde, grenzend aan de keuken. Dat balkon is gesitueerd op het westen, hier pak je in de middag en avond de zon mee – ideaal na een werkdag.

KLUSAPPARTEMENT MET POTENTIE

Dit appartement is netjes bewoond geweest, maar verdient modernisering. En dat is precies waar de kans ligt. De keuken is eenvoudig en functioneel opgesteld en biedt ruimte om een eigentijdse keukenopstelling te realiseren. De badkamer is voorzien van douche en wastafel en ook hier kun je, als je wilt, een frisse nieuwe indeling creëren.

De drie slaapkamers maken dit appartement onderscheidend binnen dit prijssegment. De grootste slaapkamer ligt aan de achterzijde en biedt voldoende ruimte voor een tweepersoonsbed en kledingkast. De tweede en derde slaapkamer is eveneens goed van formaat en perfect als werk- of slaapkamer.

De indeling is praktisch: een centrale hal met toegang tot alle vertrekken, een separaat toilet en vaste kastruimte. Met de juiste aanpak maak je hier een comfortabel en eigentijds startersappartement van.

Belangrijk om te vermelden: het appartement is per direct beschikbaar. Dat betekent snel schakelen en snel starten met jouw plannen.

CENTRAAL GELEGEN IN ROTTERDAM-ZUID

De ligging is zonder twijfel een groot pluspunt. Metrostation Slinge ligt op loopafstand, waardoor je binnen enkele minuten in het centrum van Rotterdam staat. Ook diverse busverbindingen vertrekken hier. Werk je buiten de stad? Dan zit je met de uitvalswegen richting A15 en A29 eveneens goed.
Voor je dagelijkse boodschappen hoef je niet ver. Winkelcentrum Zuidplein en diverse supermarkten en winkels bevinden zich in de directe omgeving. Ook Ahoy, sportvoorzieningen en horecagelegenheden zijn dichtbij. Je woont hier centraal, met alle voorzieningen binnen handbereik.

Het complex is gebouwd in 1955 en beschikt over een afgesloten entree. In de onderbouw bevindt zich een eigen berging, ideaal voor fietsen en extra opslag. De VvE is actief en de maandelijkse bijdrage bedraagt € 158,- per maand.

De erfpacht is afgekocht voor de gehele looptijd, wat betekent dat je geen jaarlijkse canonverplichting hebt. Dat geeft rust en duidelijkheid in je maandlasten.

OVER DE WIJK EN OMGEVING

Stellendamstraat ligt in de wijk Pendrecht, onderdeel van Rotterdam-Zuid. Deze wijk is de afgelopen jaren volop in ontwikkeling. Er wordt geïnvesteerd in woningen, openbare ruimte en voorzieningen, wat zorgt voor een positieve dynamiek in de buurt.
Metrostation Slinge vormt een belangrijk knooppunt in de omgeving. Vanaf hier reis je snel richting Rotterdam Centrum, Schiedam of Spijkenisse. Ook busverbindingen sluiten hier goed op aan. Voor automobilisten zijn de A15 en A29 eenvoudig bereikbaar, waardoor je vlot de stad in en uit rijdt.
Op korte afstand ligt winkelcentrum Zuidplein, één van de grootste winkelcentra van Nederland. Hier vind je een breed aanbod aan winkels, supermarkten, horeca en het Ikazia Ziekenhuis. Even ontspannen? In de buurt liggen diverse parken en groenvoorzieningen waar je kunt wandelen of sporten.
De combinatie van goede bereikbaarheid, uitgebreide voorzieningen en betaalbare appartementen maakt deze locatie aantrekkelijk voor starters die hun eerste stap op de woningmarkt willen zetten.

KENMERKEN
- Gelegen in Rotterdam-Zuid, nabij metrostation Slinge en winkels
- Twee balkons: oosten en westen
- Woonoppervlakte: 64 m²
- Externe berging in de onderbouw
- Bouwjaar: 1955
- Gelegen op de eerste woonlaag
- Aantal kamers: 4
- Aantal slaapkamers: 3
- Energielabel: E
- Erfpachtgrond, canon afgekocht voor de gehele looptijd
- Het complex betreft een beschermd gemeentelijk monument.
- Zelfbewoningsplicht en aanbieding woning verplicht.
- VvE-bijdrage: € 158,20 per maand
- Oplevering: kan snel

Toelichtingsclausule NEN2580:
De Meetinstructie is gebaseerd op de NEN2580. De Meetinstructie is bedoeld om een meer eenduidige manier van meten toe te passen voor het geven van een indicatie van de gebruiksoppervlakte. De Meetinstructie sluit verschillen in meetuitkomsten niet volledig uit, door bijvoorbeeld interpretatieverschillen, afrondingen of beperkingen bij het uitvoeren van de meting.

“Deze informatie is door ons met de nodige zorgvuldigheid samengesteld. Onzerzijds wordt echter geen enkele aansprakelijkheid aanvaard voor enige onvolledigheid, onjuistheid of anderszins, dan wel de gevolgen daarvan. Alle opgegeven maten en oppervlakten zijn indicatief.”

Koopovereenkomst pas rechtsgeldig na ondertekening:
Een mondelinge overeenstemming tussen de particuliere verkoper en de particuliere koper is niet rechtsgeldig. Met andere woorden: er is geen koop. Er is pas sprake van een rechtsgeldige koop als de particuliere verkoper en de particuliere koper de koopovereenkomst hebben ondertekend. Dit vloeit voort uit artikel 7:2 Burgerlijk Wetboek. Een bevestiging van de mondelinge overeenstemming per e-mail of een toegestuurd concept van de koopovereenkomst wordt overigens niet gezien als een 'ondertekende koopovereenkomst'.

Kenmerken

Basiskenmerken

  • Status Beschikbaar
  • Koopsom € 225.000 k.k.
  • Woonoppervlakte ca. 64 m2
  • Aantal slaapkamers 3
  • Bouwjaar 1955

Overdracht

  • Aanvaarding In overleg

Bouwvorm & onderhoud

  • Bouwjaar 1955
  • Soort bouw woonhuis
  • Ligging In woonwijk

Oppervlakte & inhoud

  • Gebruiksoppervlakte 64m2
  • Inhoud 212m3
  • Aantal kamers 4
  • Aantal slaapkamers 3
  • Aantal woonlagen 3 woonlagen

Energie & installatie

  • Energielabel E
  • Isolatie Dubbel glas
  • Verwarming Cv ketel
  • Warm water Cv ketel
  • C.v.-ketel type GAS
  • C.v.-ketel bouwjaar 2014
  • Energie einddatum 12-12-2027

Bergruimte

  • Schuur / berging Box
  • Voorzieningen Voorzien van elektra

Parkeergelegenheid

  • Parkeerfaciliteiten Openbaar parkeren
  • Garage Geen garage

Dak

  • Soort dak Plat dak

Overig

  • Onderhoud binnen Redelijk
  • Onderhoud buiten Goed
  • Permanente bewoning Ja
  • Huidig gebruik Woonruimte
  • Huidige bestemming Woonruimte

Voorzieningen

  • Voorzieningen Natuurlijke ventilatie

Kadastrale gegevens

  • Perceelnummer 1563
Meer kenmerken
Ontdek online wat jouw huis waard is

Met de online waardecheck ontdek je in een paar minuten de geschatte waarde van jouw huis

Online waardecheck

In de buurt

Geïnteresseerd?

Bel met Van Der Giessen & Van Herk Makelaars

shape

Stuur een bericht

* Maximaal 255 tekens
privacyverklaring