Chat with us, powered by LiveChat Ruigendijk 7, 3227 CG OUDENHOORN - Van Der Giessen & Van Herk Makelaars

Oudenhoorn

Ruigendijk  7

€ 565.000,- k.k.

Omschrijving

RUST, RUIMTE EN VRIJSTAAND WONEN AAN DE RUIGENDIJK Aan de rustige Ruigendijk met vrij uitzicht staat deze karakteristieke vrijstaande woning uit 1920. Een plek waar je thuiskomt in alle rust, met de ruimte om je heen én het comfort van wonen, slapen en douchen op de begane grond. Met een woonoppervlakte van 107 m², vier slaapkamers, een riante woonkamer van 33 m² en een…

RUST, RUIMTE EN VRIJSTAAND WONEN AAN DE RUIGENDIJK
Aan de rustige Ruigendijk met vrij uitzicht staat deze karakteristieke vrijstaande woning uit 1920. Een plek waar je thuiskomt in alle rust, met de ruimte om je heen én het comfort van wonen, slapen en douchen op de begane grond. Met een woonoppervlakte van 107 m², vier slaapkamers, een riante woonkamer van 33 m² en een verzorgde tuin op het zuidwesten is dit een huis dat zowel jonge als oudere doorstromers direct zal aanspreken.

Hier woon je landelijk, met parkeergelegenheid op eigen terrein, meerdere bijgebouwen en volop mogelijkheden voor hobby, werken aan huis of het ontvangen van gasten.

SFEERVOLLE LEEFRUIMTE MET HOUTKACHEL
De woonkamer is met circa 33 m² heerlijk ruim en opvallend licht. Grote ramen zorgen voor een prettige lichtinval en geven uitzicht op de tuin en het groen rondom. De houtkachel vormt letterlijk en figuurlijk het warme middelpunt van de ruimte. Hier zie je jezelf al zitten op een winteravond, terwijl buiten de rust van het buitengebied voelbaar is.

De indeling biedt voldoende plek voor een royale zithoek én een gezellige eettafel. De afwerking is verzorgd, met een warme vloer en een sfeervolle wandafwerking die karakter toevoegt aan het geheel.

In de aanbouw vind je de keuken, uitgevoerd in donkere tinten met een robuust fornuis en veel kastruimte. Vanuit de keuken stap je zo naar buiten. Dat maakt het in de zomer een verlengstuk van de tuin – deuren open, lange avonden buiten, koken en borrelen in je eigen tempo.

Op de begane grond bevindt zich daarnaast een ruime slaapkamer met vaste schuifkastenwand, een badkamer met douchecabine, wastafelmeubel, 2de toilet en wasmachineaansluiting én een modern separaat toilet in de hal. Dat maakt dit huis levensloopbestendig en geschikt voor wie gelijkvloers wil wonen.

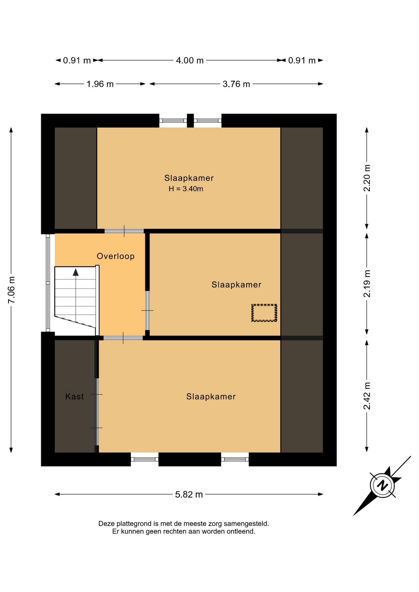
VIER SLAAPKAMERS EN FLEXIBELE INDELING
Op de verdieping bevinden zich nog drie slaapkamers, ieder met een eigen maatvoering en indeling. Ideaal voor een gezin met opgroeiende kinderen, maar ook perfect als werkruimte, hobbykamer of logeerkamer. Door de aanwezigheid van vier slaapkamers in totaal is er flexibiliteit genoeg.

De overloop verbindt de kamers logisch met elkaar en dankzij de kapconstructie hebben de ruimtes een speels karakter. Extra bergruimte is aanwezig in de diverse vaste kasten.

Met twee woonlagen en een praktische indeling biedt dit huis comfort voor nu én mogelijkheden voor de toekomst.

ZON, PRIVACY EN MULTIFUNCTIONELE BIJGEBOUWEN
Buiten komt alles samen. De verzorgde zijtuin van circa 131 m² ligt op het zuiden en westen, waardoor je hier vrijwel de hele dag zon hebt. Of je nu ’s ochtends rustig koffie drinkt of aan het einde van de dag geniet van de ondergaande zon – hier zit je goed.

Op het perceel van 315 m² staan twee vrijstaande houten schuren. Eén daarvan is deels ingericht als gastenverblijf met houtkachel. Een fijne plek voor logees, een tiener die wat meer eigen ruimte wil of als atelier of praktijkruimte. Beide bijgebouwen zijn voorzien van elektra.

De lange oprit met grind (met toestemming in gebruik / geen eigendom) biedt ruim plaats voor meerdere auto’s op eigen terrein. Daarnaast bestaat de mogelijkheid om twee auto's op eigen terrein te parkeren.

De ligging aan een rustige weg, met vrij uitzicht en open karakter, maakt dat je hier elke dag het gevoel hebt dat je buiten woont – terwijl voorzieningen toch binnen bereik zijn.

WONEN IN HET LANDELIJKE OUDENHOORN
Ruigendijk 7 ligt in het buitengebied van Oudenhoorn, een kleinschalig en landelijk dorp op Voorne-Putten. Hier woon je tussen de akkers, dijken en watergangen, met volop wandel- en fietsmogelijkheden direct vanuit huis. De Ruigendijk zelf kenmerkt zich door vrijstaande bebouwing, open zichtlijnen en een rustige verkeerssituatie.

Oudenhoorn biedt een basisschool, sportverenigingen en een hechte dorpsgemeenschap. Voor dagelijkse voorzieningen ben je binnen 10 minuten in Hellevoetsluis, Spijkenisse of Brielle, waar je supermarkten, winkels, horeca en middelbare scholen vindt. Ook de uitvalswegen richting Rotterdam en Europoort zijn goed bereikbaar, waardoor deze locatie aantrekkelijk is voor wie landelijk wil wonen maar werkt in de regio.

Het is precies die combinatie van rust en bereikbaarheid die deze plek zo prettig maakt. Je woont hier vrij, groen en met ruimte om je heen – zonder volledig afgezonderd te zijn.

KENMERKEN
- Woonoppervlakte: 107 m²
- Perceeloppervlakte: 315 m²
- Bouwjaar: 1920
- Levensloopbestendig met slaapkamer en badkamer op de begane grond
- De buitengevels zijn geïsoleerd, geïmpregneerd en geschilderd
- De platte dakbedekking van de keuken is in 2021 vernieuwd
- Diverse bijgebouwen waaronder slaapkamer/gastenverblijf met houtkachel
- Energielabel: D
- Oplevering: In overleg

Kenmerken

Basiskenmerken

  • Status Beschikbaar
  • Koopsom € 565.000 k.k.
  • Woonoppervlakte ca. 107 m2
  • Aantal slaapkamers 4
  • Bouwjaar 1920

Overdracht

  • Aanvaarding In overleg

Bouwvorm & onderhoud

  • Soort object Vrijstaande woning
  • Soort woning Eengezinswoning
  • Bouwjaar 1920
  • Soort bouw woonhuis
  • Ligging Aan rustige weg, vrij uitzicht, open ligging, landelijk gelegen

Oppervlakte & inhoud

  • Gebruiksoppervlakte 107m2
  • Perceeloppervlakte 315m2
  • Inhoud 395m3
  • Aantal kamers 5
  • Aantal slaapkamers 4
  • Aantal woonlagen 2 woonlagen

Energie & installatie

  • Energielabel D
  • Isolatie Dakisolatie, muurisolatie, dubbel glas
  • Verwarming Cv ketel
  • Warm water Cv ketel
  • C.v.-ketel type GAS
  • C.v.-ketel bouwjaar 2017
  • Energie einddatum 02-11-2032

Bergruimte

  • Schuur / berging Vrijstaand hout
  • Voorzieningen Voorzien van elektra

Parkeergelegenheid

  • Parkeerfaciliteiten Openbaar parkeren, op eigen terrein
  • Garage Geen garage

Dak

  • Soort dak Dwarskap

Overig

  • Onderhoud binnen Goed
  • Onderhoud buiten Goed
  • Bijzonderheden Gedeeltelijk gestoffeerd
  • Permanente bewoning Ja
  • Huidig gebruik Woonruimte
  • Huidige bestemming Woonruimte

Voorzieningen

  • Voorzieningen Tv kabel, rookkanaal, dakraam, glasvezel kabel, natuurlijke ventilatie

Buitenruimte

  • Hoofdtuin ZIJTUIN
  • Oppervlakte hoofdtuin 131m2
  • Ligging hoofdtuin ZUIDWEST
  • Kwaliteit tuin Verzorgd

Kadastrale gegevens

  • Perceelnummer 3278
  • Perceeloppervlakte 315 m2
Meer kenmerken
Ontdek online wat jouw huis waard is

Met de online waardecheck ontdek je in een paar minuten de geschatte waarde van jouw huis

Online waardecheck

In de buurt

Geïnteresseerd?

Bel met Van Der Giessen & Van Herk Makelaars

shape

Stuur een bericht

* Maximaal 255 tekens
privacyverklaring