Chat with us, powered by LiveChat Ristervoorde 14, 3204 EG SPIJKENISSE - Van Der Giessen & Van Herk Makelaars

Spijkenisse

Ristervoorde  14

€ 375.000,- k.k.

Omschrijving

MODERNE TUSSENWONING MET VEEL RUIMTE Aan een rustige straat in een fijne woonwijk staat deze keurig onderhouden tussenwoning met maar liefst vier slaapkamers, een moderne badkamer (2022) en een verrassend diepe achtertuin van circa 15 meter. Dit is zo’n huis waar je zonder grote klussen in kunt en waar je direct het gevoel hebt: hier kan ik voorlopig vooruit. Met 111 m²…

MODERNE TUSSENWONING MET VEEL RUIMTE
Aan een rustige straat in een fijne woonwijk staat deze keurig onderhouden tussenwoning met maar liefst vier slaapkamers, een moderne badkamer (2022) en een verrassend diepe achtertuin van circa 15 meter. Dit is zo’n huis waar je zonder grote klussen in kunt en waar je direct het gevoel hebt: hier kan ik voorlopig vooruit.

Met 111 m² woonoppervlakte, drie woonlagen en energielabel A is dit een ideale stap voor starters die groter willen wonen of jonge doorstromers die ruimte zoeken voor een gezin, thuiswerken of hobby’s.

LICHTE LEEFVERDIEPING MET OPEN KARAKTER
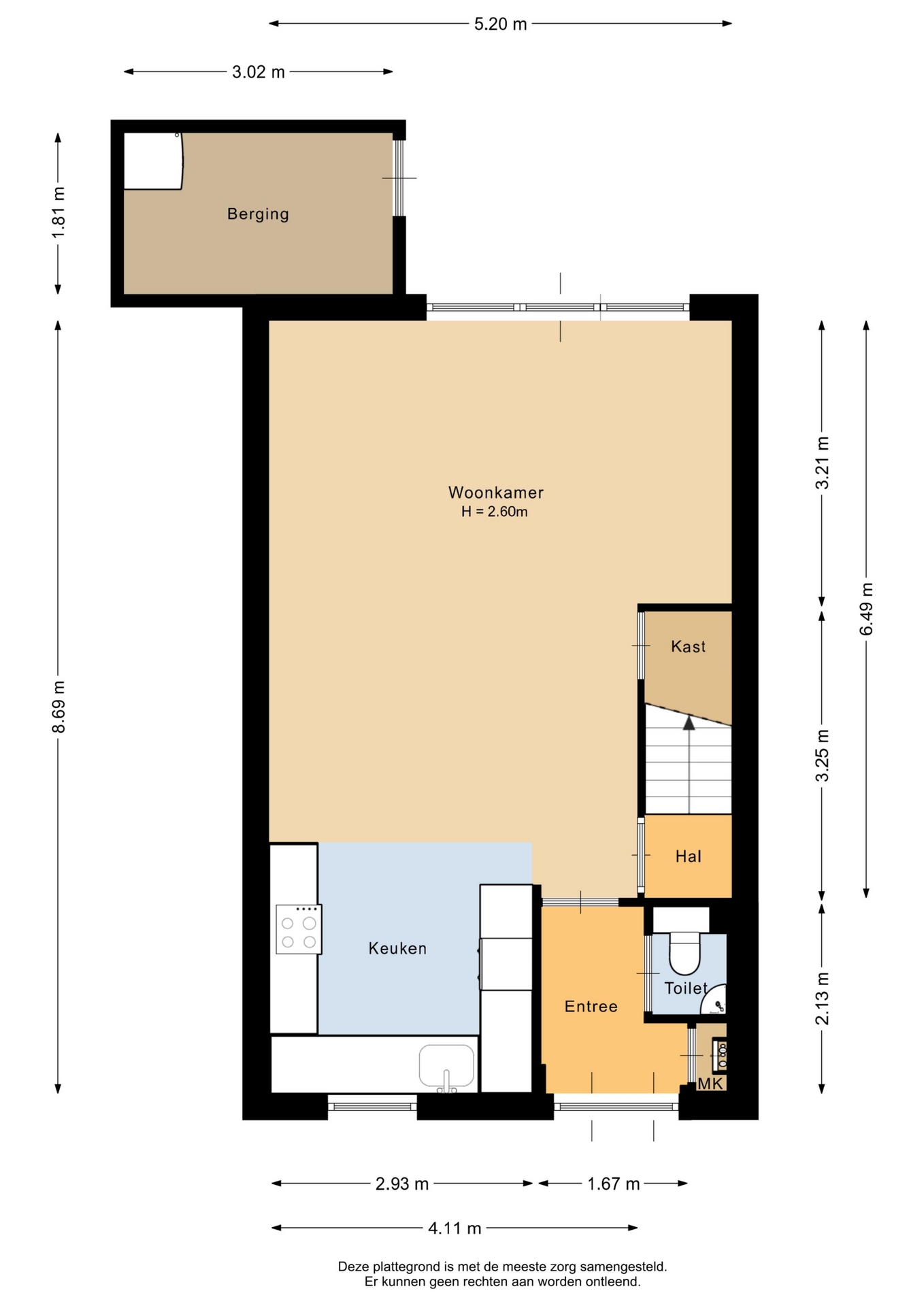
Je komt binnen in een nette hal met modern toilet en toegang tot de woonkamer. Wat direct opvalt is de prettige lichtinval en de open indeling. De woonkamer van circa 34 m² biedt voldoende ruimte voor een royale zithoek en een gezellige eethoek. De afwerking is verzorgd met een moderne tegelvloer en strakke wanden, waardoor je hier weinig hoeft te doen om het eigen te maken.

Aan de voorzijde ligt de open keuken in een opvallende rood-bruine kleurstelling. Een echte eyecatcher, maar tegelijkertijd strak en tijdloos uitgevoerd. De keuken is praktisch opgesteld in een hoekopstelling en voorzien van diverse inbouwapparatuur. Dankzij het raam aan de voorzijde komt hier veel daglicht binnen en kijk je prettig de straat in.

Vanuit de woonkamer loop je zo de achtertuin in, wat het binnen- en buitenleven mooi met elkaar verbindt.

VIER SLAAPKAMERS EN MODERNE BADKAMER
Op de eerste verdieping bevinden zich drie slaapkamers. De grootste slaapkamer ligt aan de voorzijde en biedt voldoende ruimte voor een tweepersoonsbed en heeft een vaste (spiegel)kast. De tweede slaapkamer aan de achterzijde is eveneens van goed formaat. De derde kamer is ideaal als kinderkamer, werkkamer of inloopkast.

De badkamer is in 2022 volledig vernieuwd en dat zie je. Een moderne, stijlvolle ruimte met een inloopdouche, ligbad, toilet en dubbele wastafel met meubel. De combinatie van grote grijze tegels en strak sanitair zorgt voor een rustige uitstraling. Dankzij het dakraam valt er prettig daglicht binnen.

De tweede verdieping verrast met een ruime vierde slaapkamer onder de kap. Een volwaardige kamer met vaste kastruimte aan beide zijden. Daarnaast is er op de voorzolder voldoende ruimte voor opstelling van wasmachine en droger en de cv-installatie (Intergas HR uit 2019).

DIEPE TUIN MET OVERKAPPING
De achtertuin is een van de grote pluspunten van dit huis. Met een diepte van circa 14,7 meter heb je hier echt ruimte. De tuin is verzorgd aangelegd met meerdere terrassen, groenborders en een fijne sfeer.

Achterin de tuin vind je een sfeervolle houten overkapping waar je tot in de late uurtjes kunt zitten. Hier creëer je eenvoudig een tweede woonkamer, maar dan buiten. Daarnaast is er een extra houten schuur aanwezig, ideaal voor fietsen, gereedschap of hobbyspullen. Ook de stenen berging aan de achterzijde van het huis is voorzien van elektra.

De tuin ligt op het noorden, maar door de diepte is er altijd wel een plek in de zon of schaduw te vinden. Dankzij de achterom is de tuin ook praktisch bereikbaar.

RUSTIGE LIGGING MET VOORZIENINGEN NABIJ
Ristervoorde 14 ligt in een rustige en groene woonwijk in Spijkenisse met een open ligging aan de achterzijde. In de directe omgeving vind je scholen, speelvoorzieningen, winkels en openbaar vervoer (bus- en metrostation De Akkers). Ook uitvalswegen richting Rotterdam zijn goed bereikbaar.

Voor jonge gezinnen is dit een fijne plek: rustig wonen, maar wel met alle dagelijkse voorzieningen op korte afstand. Parkeren doe je hier gewoon in de straat.

DUURZAAM EN ONDERHOUDSARM WONEN
Dit huis is volledig voorzien van onderhoudsvrije kozijnen met dubbel glas en HR-glas. Met 8 zonnepanelen (geplaatst in 2020), goede isolatie en energielabel A ben je klaar voor de toekomst. Dat merk je niet alleen in comfort, maar ook in de maandelijkse lasten.

KENMERKEN OP EEN RIJ
- Woonoppervlakte: 111 m²
- Perceeloppervlakte: 147 m²
- Bouwjaar: 1981
- Energielabel: A
- Moderne badkamer (2022)
- Bijna 15 meter diepe achtertuin met gezellige overkapping
- Geheel v.v. onderhoudsvrije kozijnen
- 8 zonnepanelen (2020)
- Oplevering: in overleg (richtlijn oktober 2026)

Kenmerken

Basiskenmerken

  • Status Verkocht onder voorbehoud
  • Koopsom € 375.000 k.k.
  • Woonoppervlakte ca. 111 m2
  • Aantal slaapkamers 4
  • Bouwjaar 1981

Overdracht

  • Aanvaarding In overleg

Bouwvorm & onderhoud

  • Soort object Tussenwoning
  • Soort woning Eengezinswoning
  • Bouwjaar 1981
  • Soort bouw woonhuis
  • Ligging Aan rustige weg, in woonwijk, open ligging

Oppervlakte & inhoud

  • Gebruiksoppervlakte 111m2
  • Perceeloppervlakte 147m2
  • Inhoud 400m3
  • Aantal kamers 5
  • Aantal slaapkamers 4
  • Aantal woonlagen 3 woonlagen
  • Overige inpandige ruimte 5m2

Energie & installatie

  • Energielabel A
  • Isolatie Dakisolatie, muurisolatie, vloerisolatie, dubbel glas, hr glas
  • Verwarming Cv ketel
  • Warm water Cv ketel
  • C.v.-ketel type GAS
  • C.v.-ketel bouwjaar 2019
  • Energie einddatum 06-10-2035

Bergruimte

  • Schuur / berging Aangebouwd steen
  • Voorzieningen Voorzien van elektra

Parkeergelegenheid

  • Parkeerfaciliteiten Openbaar parkeren
  • Garage Geen garage

Dak

  • Soort dak Zadeldak

Overig

  • Onderhoud binnen Goed
  • Onderhoud buiten Goed
  • Bijzonderheden Gedeeltelijk gestoffeerd
  • Permanente bewoning Ja
  • Huidig gebruik Woonruimte
  • Huidige bestemming Woonruimte

Voorzieningen

  • Voorzieningen Mechanische ventilatie, tv kabel, dakraam, glasvezel kabel, zonnepanelen, natuurlijke ventilatie

Buitenruimte

  • Hoofdtuin ACHTERTUIN
  • Oppervlakte hoofdtuin 79m2
  • Ligging hoofdtuin NOORD
  • Kwaliteit tuin Verzorgd

Kadastrale gegevens

  • Perceelnummer 4594
  • Perceeloppervlakte 147 m2
Meer kenmerken
Ontdek online wat jouw huis waard is

Met de online waardecheck ontdek je in een paar minuten de geschatte waarde van jouw huis

Online waardecheck

In de buurt