Chat with us, powered by LiveChat Noordmolenstraat 80 C, 3035 RM ROTTERDAM - Van Der Giessen & Van Herk Makelaars

Rotterdam

Noordmolenstraat  80 C

€ 325.000,- k.k.

Omschrijving

Bovenwoning met ruime zolder, momenteel ingericht als twee appartementen - flexibel in gebruik Op een levendige en geliefde locatie in Rotterdam-Noord ligt dit charmante en verrassend ruime dubbele bovenhuis aan de Noordmolenstraat 80 C. Gelegen om de hoek van de populaire Zwart Janstraat, met winkels, horeca en alle dagelijkse voorzieningen binnen handbereik. De woning…

Bovenwoning met ruime zolder, momenteel ingericht als twee appartementen - flexibel in gebruik

Op een levendige en geliefde locatie in Rotterdam-Noord ligt dit charmante en verrassend ruime dubbele bovenhuis aan de Noordmolenstraat 80 C. Gelegen om de hoek van de populaire Zwart Janstraat, met winkels, horeca en alle dagelijkse voorzieningen binnen handbereik.
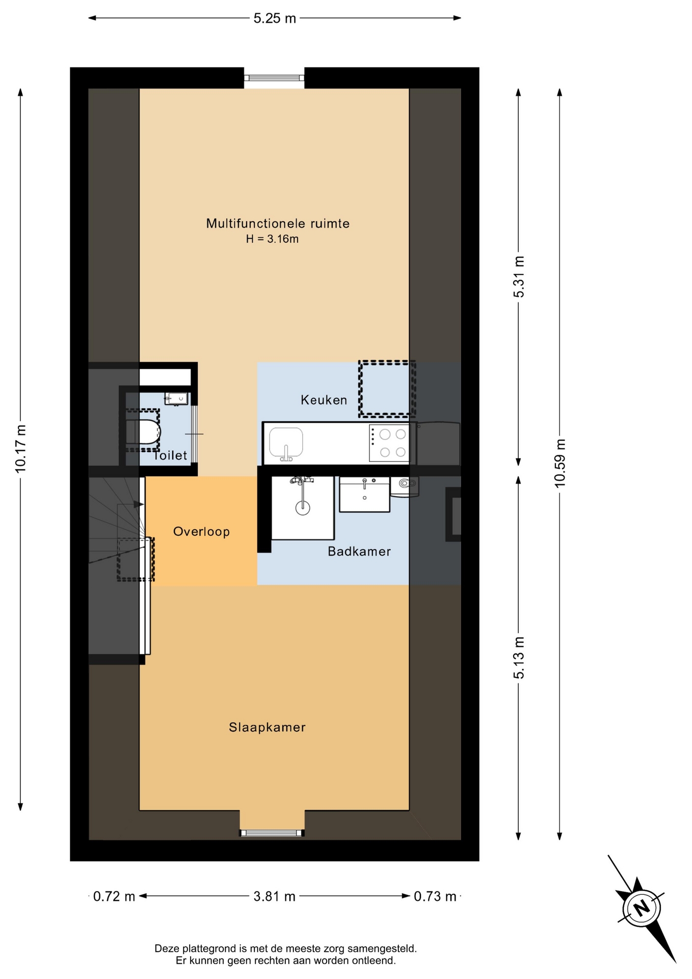
De woning beschikt over circa 94 m² woonoppervlakte, is gelegen op eigen grond en combineert karakter uit 1888 met het comfort van nu.

FLEXIBELE INDELING MET VEEL MOGELIJKHEDEN
De woning is verdeeld over twee woonlagen en biedt daardoor veel flexibiliteit in gebruik. Op dit moment is het geheel ingericht als twee afzonderlijke studio’s, maar het wordt als één woning verkocht.
Dit maakt het een interessante kans voor diverse doelgroepen. Of je nu op zoek bent naar een ruime bovenwoning of een slimme indeling voor samenwonen: hier kan het.
De indeling biedt ruimte voor meerdere slaapkamers (twee tot drie mogelijk) en eventueel een aparte eetkamer. Dankzij de opzet is het eenvoudig om functies aan te passen aan persoonlijke woonwensen.

INTERESSANT VOOR SAMENKOPERS OF GEZINNEN
De oorspronkelijke indeling als twee studio’s biedt unieke kansen. Denk aan ouders met studerende kinderen, waarbij ieder een eigen woonruimte heeft met behoud van privacy. Ook voor broers, zussen of andere samenkopers is dit een aantrekkelijke optie.
Juist deze flexibiliteit maakt de woning geschikt voor zowel starters als doorstromers die stads willen wonen met extra ruimte en vrijheid in indeling.

LICHT, RUIMTE EN EEN GOEDE BASIS
De grote raampartijen zorgen voor een prettige lichtinval en geven de woning een ruimtelijk en open gevoel. De basis is goed, waardoor je hier direct kunt wonen en het stap voor stap naar eigen smaak kunt verbeteren.
De keuken en badkamer verkeren in nette staat. Dit betekent dat je zonder grote investeringen kunt starten, met de mogelijkheid om later te moderniseren.

DUURZAAM EN GOED ONDERHOUDEN
Ondanks het bouwjaar (1888) is de woning in de loop der jaren verduurzaamd met dak- en gevelisolatie. Dit resulteert in een energielabel B, wat zeer netjes is voor een woning uit deze periode.
Verwarming en warm water worden verzorgd via een HR-combiketel.

WONEN IN HET BRUISENDE OUDE NOORDEN
De Noordmolenstraat ligt in het populaire Oude Noorden, een wijk die bekendstaat om zijn karakter en levendigheid. Op loopafstand vind je de Zwart Janstraat, het Noordplein en de Zwaanshals – stuk voor stuk hotspots met winkels, speciaalzaken en horeca.
Ook qua bereikbaarheid zit je hier uitstekend: openbaar vervoer is nabij en met de auto ben je snel op de uitvalswegen.

KENMERKEN:
-Gelegen op eigen grond
-Bouwjaar 1888
-Woonoppervlakte circa 94 m²
-Energielabel B
-Gelegen in Rotterdam-Noord, nabij Zwart Janstraat
-Aantal kamers 3 à 4 (afhankelijk van indeling)
-Veel lichtinval
-Nette keuken en badkamer
-Diverse voorzieningen op loopafstand
-Verwarming en warm water via HR-combiketel uit 2016
-VvE wordt geactiveerd
-Niet- zelfbewonings- en ouderdomsclausule van toepassing
-Oplevering in overleg, kan snel

INTERESSE? MAAK DAN SNEL EEN AFSPRAAK!
Ons advies is om bij het kopen van uw nieuw huis altijd uw eigen NVM makelaar mee te nemen.

TOELICHTINGSCLAUSULE NEN2580
De Meetinstructie is gebaseerd op de NEN2580. De Meetinstructie is bedoeld om een meer eenduidige manier van meten toe te passen voor het geven van een indicatie van de gebruiksoppervlakte. De Meetinstructie sluit verschillen in meetuitkomsten niet volledig uit, door bijvoorbeeld interpretatieverschillen, afrondingen of beperkingen bij het uitvoeren van de meting.

KOOPOVEREENKOMST PAS RECHTSGELDIG NA ONDERTEKENING
Een mondelinge overeenstemming tussen de particuliere verkoper en de particuliere koper is niet rechtsgeldig. Met andere woorden: er is geen koop. Er is pas sprake van een rechtsgeldige koop als de particuliere verkoper en de particuliere koper de koopovereenkomst hebben ondertekend. Dit vloeit voort uit artikel 7:2 Burgerlijk Wetboek. Een bevestiging van de mondelinge overeenstemming per e-mail of een toegestuurd concept van de koopovereenkomst wordt overigens niet gezien als een 'ondertekende koopovereenkomst'

“Deze informatie is door ons met de nodige zorgvuldigheid samengesteld. Onzerzijds wordt echter geen enkele aansprakelijkheid aanvaard voor enige onvolledigheid, onjuistheid of anderszins, dan wel de gevolgen daarvan. Alle opgegeven maten en oppervlakten zijn indicatief.”

Kenmerken

Basiskenmerken

  • Status Onder bod
  • Koopsom € 325.000 k.k.
  • Woonoppervlakte ca. 94 m2
  • Aantal slaapkamers 3
  • Bouwjaar 1888

Overdracht

  • Aanvaarding In overleg

Bouwvorm & onderhoud

  • Bouwjaar 1888
  • Soort bouw woonhuis
  • Ligging In centrum

Oppervlakte & inhoud

  • Gebruiksoppervlakte 94m2
  • Inhoud 334m3
  • Aantal kamers 4
  • Aantal slaapkamers 3
  • Aantal woonlagen 2 woonlagen

Energie & installatie

  • Energielabel B
  • Isolatie Dakisolatie, muurisolatie, dubbel glas
  • Verwarming Cv ketel
  • Warm water Cv ketel
  • C.v.-ketel type GAS
  • C.v.-ketel bouwjaar 2016
  • Energie einddatum 04-04-2034

Parkeergelegenheid

  • Parkeerfaciliteiten Betaald parkeren, parkeervergunningen
  • Garage Geen garage

Dak

  • Soort dak Zadeldak

Overig

  • Onderhoud binnen Redelijk tot goed
  • Onderhoud buiten Redelijk tot goed
  • Bijzonderheden Gedeeltelijk gestoffeerd
  • Permanente bewoning Ja
  • Huidig gebruik Woonruimte
  • Huidige bestemming Woonruimte

Voorzieningen

  • Voorzieningen Tv kabel, natuurlijke ventilatie

Kadastrale gegevens

  • Perceelnummer 5447
Meer kenmerken
Ontdek online wat jouw huis waard is

Met de online waardecheck ontdek je in een paar minuten de geschatte waarde van jouw huis

Online waardecheck

In de buurt

Geïnteresseerd?

Bel met Van Der Giessen & Van Herk Makelaars

shape

Stuur een bericht

* Maximaal 255 tekens
privacyverklaring