Chat with us, powered by LiveChat Johannes Meulsteestraat 28, 3065 HC ROTTERDAM - Van Der Giessen & Van Herk Makelaars

Rotterdam

Johannes Meulsteestraat  28

€ 547.000,- k.k.

Omschrijving

***NU IN VERKOOP*** EEN UITGEBOUWDE EENGEZINSWONING GELEGEN AAN EEN RUSTIGE STRAAT IN HET GEWILDE EN KINDVRIENDELIJKE PRINSENLAND. DEZE FIJNE WONING BESCHIKT OVER MAAR LIEFST 5 KAMERS, WAARONDER 4 RUIME SLAAPKAMERS, EEN FRAAI UITGEBOUWDE LIVING EN EEN PRAKTISCHE BERGING IN DE ACHTERTUIN. LOCATIE: De Johannes Meulsteestraat is gelegen in de populaire wijk Prinsenland: een…

***NU IN VERKOOP***
EEN UITGEBOUWDE EENGEZINSWONING GELEGEN AAN EEN RUSTIGE STRAAT IN HET GEWILDE EN KINDVRIENDELIJKE PRINSENLAND.
DEZE FIJNE WONING BESCHIKT OVER MAAR LIEFST 5 KAMERS, WAARONDER 4 RUIME SLAAPKAMERS, EEN FRAAI UITGEBOUWDE LIVING EN EEN PRAKTISCHE BERGING IN DE ACHTERTUIN.

LOCATIE:
De Johannes Meulsteestraat is gelegen in de populaire wijk Prinsenland: een ruim opgezette en groene woonomgeving waar werkelijk alles binnen handbereik ligt. Winkels, scholen, Erasmus Universiteit, kinderopvang, medische voorzieningen, sportfaciliteiten en horeca bevinden zich allemaal op korte fiets- of loopafstand. Voor ontspanning ligt ook het Kralingse Bos om de hoek. Daarnaast zijn metro- en busstations Capelsebrug en Kralingse Zoom binnen enkele minuten bereikbaar en ben je via de A16 en A20 zo onderweg. Een rustige, maar uiterst centrale ligging nabij Rotterdam Centrum.

ZEER FIJNE WONING:
Deze goed onderhouden woning is gelegen in een rustige straat met weinig doorgaand verkeer – een fijne plek om thuis te komen.
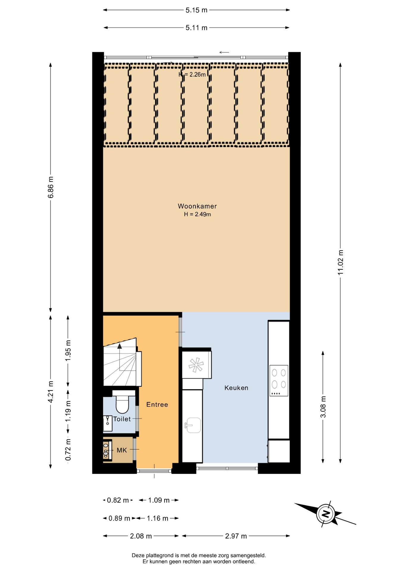
Via de voortuin bereik je de entree met hal, toiletruimte, meterkast, trapopgang en toegang tot de living.

De living is ruim opgezet en verdeeld in een woonkamer en een halfopen keuken. Aan de achterzijde is de woning uitgebouwd met een prachtige serre, voorzien van warmtewerend glas. Hierdoor is de leefruimte aanzienlijk vergroot tot circa 35 m² en ontstaat er een lichte, comfortabele ruimte met volop plek voor zowel een gezellige zithoek als een royale eethoek. Via de brede schuifpui heb je direct toegang tot de achtertuin.

Aan de voorzijde bevindt zich de moderne halfopen keuken in parallelopstelling. Deze is van alle gemakken voorzien, waaronder een spoelbak met mengkraan, koel-vriescombinatie, vaatwasser, brede oven met grote inductiekookplaat en afzuigkap, evenals een nieuwe combimagnetron.

Op de eerste verdieping zijn vanaf de overloop drie slaapkamers en de badkamer bereikbaar.
Aan de achterzijde liggen twee slaapkamers van respectievelijk 8 en 14 m², beide voorzien van dakramen. Aan de voorzijde bevindt zich de derde slaapkamer van 9,2 m², evenals de badkamer (4,2 m²). De badkamer is uitgerust met een wastafel met spiegelkast, een toilet en een ligbad met douchegelegenheid.

De tweede verdieping biedt een overloop met aansluitingen voor wasapparatuur, de C.V.-ketel en de omvormer van de zonnepanelen. De overloop loopt deels onder de dakkapel door, die doorloopt in de naastgelegen master bedroom. Deze ruime slaapkamer (13,7 m²) beschikt over een dakkapel aan de voorzijde en een groot dakraam aan de achterzijde, wat zorgt voor veel lichtinval.

De achtertuin is gelegen op het noordoosten en heeft een oppervlakte van circa 43 m². Achterin de tuin bevindt zich een vrijstaande houten berging met achterom. De tuin is grotendeels bestraat, netjes afgezet en voorzien van een buitenkraan.

SPECIFICATIES:
-Bouwjaar: 1991
-Gelegen op 132m² erfpachtgrond waarvan de canon is afgekocht tot en met 24-06-2040
-Woonoppervlakte: 117m²
-Externe bergruimte: 14m²
-Inhoud: 405m³
-Isolatie: dak en muur isolatie + dubbel HR+ glas
-Mechanische ventilatie
-Verwarming & warm water: C.V. ketel d.d. 2013 'Vaillant'
-Zonnepanelen d.d. 2023 / aantal: 8 (6 aan de voorzijde en 2 aan de achterzijde))
-Energielabel: A einddatum 30-03-2036
-Serre voorzien van warmtewerend glas zodat het niet te warm wordt in de living.
-Schilderwerk aan deuren en kozijnen laatst uitgevoerd in 2023 door erkende schilder
-Meterkast in 2022 vernieuwd 3-fase aansluiting aangelegd
-Serre geplaatst in 2008
-Dakkapel d.d. 2018
-Oplevering in overleg

INTERESSE? MAAK DAN SNEL EEN AFSPRAAK!
Ons advies is om bij het kopen van je nieuwe huis je eigen NVM-makelaar mee te nemen.

TOELICHTINGSCLAUSULE NEN2580:
De Meetinstructie is gebaseerd op de NEN2580. De Meetinstructie is bedoeld om een meer eenduidige manier van meten toe te passen voor het geven van een indicatie van de gebruiksoppervlakte. De Meetinstructie sluit verschillen in meetuitkomsten niet volledig uit, door bijvoorbeeld interpretatieverschillen, afrondingen of beperkingen bij het uitvoeren van de meting.

“Deze informatie is door ons met de nodige zorgvuldigheid samengesteld. Onzerzijds wordt echter geen enkele aansprakelijkheid aanvaard voor enige onvolledigheid, onjuistheid of anderszins, dan wel de gevolgen daarvan. Alle opgegeven maten en oppervlakten zijn indicatief.”

KOOPOVEREENKOMST PAS RECHTSGELDIG NA ONDERTEKENING:
Een mondelinge overeenstemming tussen de particuliere verkoper en de particuliere koper is niet rechtsgeldig. Met andere woorden: er is geen koop. Er is pas sprake van een rechtsgeldige koop als de particuliere verkoper en de particuliere koper de koopovereenkomst hebben ondertekend. Dit vloeit voort uit artikel 7:2 Burgerlijk Wetboek. Een bevestiging van de mondelinge overeenstemming per e-mail of een toegestuurd concept van de koopovereenkomst wordt overigens niet gezien als een 'ondertekende koopovereenkomst'.

Kenmerken

Basiskenmerken

  • Status Beschikbaar
  • Koopsom € 547.000 k.k.
  • Woonoppervlakte ca. 117 m2
  • Aantal slaapkamers 4
  • Bouwjaar 1991

Overdracht

  • Aanvaarding In overleg

Bouwvorm & onderhoud

  • Soort object Tussenwoning
  • Soort woning Eengezinswoning
  • Bouwjaar 1991
  • Soort bouw woonhuis
  • Ligging In woonwijk

Oppervlakte & inhoud

  • Gebruiksoppervlakte 117m2
  • Perceeloppervlakte 272m2
  • Inhoud 405m3
  • Aantal kamers 5
  • Aantal slaapkamers 4
  • Aantal woonlagen 3 woonlagen

Energie & installatie

  • Energielabel A
  • Isolatie Dakisolatie, muurisolatie, dubbel glas
  • Verwarming Cv ketel
  • Warm water Cv ketel
  • C.v.-ketel type GAS
  • C.v.-ketel bouwjaar 2013
  • Energie einddatum 30-03-2036

Bergruimte

  • Schuur / berging Vrijstaand hout

Parkeergelegenheid

  • Parkeerfaciliteiten Openbaar parkeren
  • Garage Geen garage

Dak

  • Soort dak Zadeldak

Overig

  • Onderhoud binnen Goed
  • Onderhoud buiten Goed
  • Bijzonderheden Gedeeltelijk gestoffeerd
  • Permanente bewoning Ja
  • Huidig gebruik Woonruimte
  • Huidige bestemming Woonruimte

Voorzieningen

  • Voorzieningen Mechanische ventilatie, schuifpui, dakraam, zonnepanelen

Buitenruimte

  • Hoofdtuin ACHTERTUIN
  • Oppervlakte hoofdtuin 43m2
  • Ligging hoofdtuin NOORDOOST
  • Kwaliteit tuin Normaal

Kadastrale gegevens

  • Perceelnummer 4262
  • Perceeloppervlakte 272 m2
Meer kenmerken
Ontdek online wat jouw huis waard is

Met de online waardecheck ontdek je in een paar minuten de geschatte waarde van jouw huis

Online waardecheck

In de buurt

Geïnteresseerd?

Bel met Van Herk makelaars te Capelle aan den IJssel

shape

Stuur een bericht

* Maximaal 255 tekens
privacyverklaring