Chat with us, powered by LiveChat Henry Moorepassage 186, 2907 MG CAPELLE AAN DEN IJSSEL - Van Der Giessen & Van Herk Makelaars

Capelle Aan Den Ijssel

Henry Moorepassage  186

€ 298.000,- k.k.

Omschrijving

- NIEUW IN DE VERKOOP - OP EEN CENTRALE LOCATIE DIRECT BIJ HET WINKELCENTRUM IS DIT APPARTEMENT GELEGEN. HET APPARTEMENT BESCHIKT OVER 70 M² WOONOPPERVLAKTE, 2 SLAAPKAMERS EN EEN HEERLIJK BALKON OP HET ZUIDWESTEN MET VRIJ UITZICHT. KORTOM, ZEKER EEN BEZICHTIGING WAARD! GELEGEN OP DE 3E VERDIEPING: Dit 3-kamerappartement gelegen op de 3e verdieping is ideaal voor…

- NIEUW IN DE VERKOOP -
OP EEN CENTRALE LOCATIE DIRECT BIJ HET WINKELCENTRUM IS DIT APPARTEMENT GELEGEN. HET APPARTEMENT BESCHIKT OVER 70 M² WOONOPPERVLAKTE, 2 SLAAPKAMERS EN EEN HEERLIJK BALKON OP HET ZUIDWESTEN MET VRIJ UITZICHT. KORTOM, ZEKER EEN BEZICHTIGING WAARD!

GELEGEN OP DE 3E VERDIEPING:
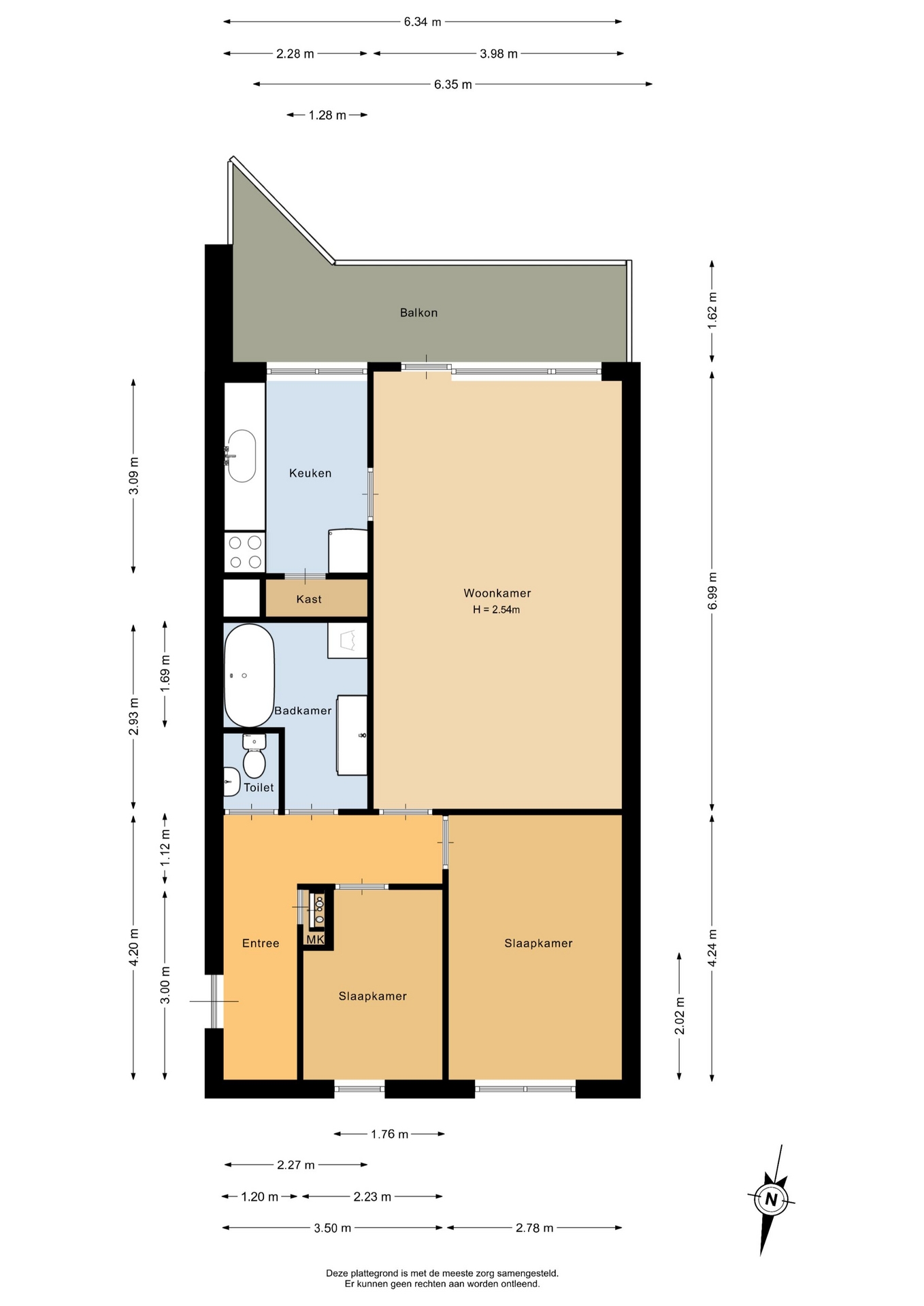
Dit 3-kamerappartement gelegen op de 3e verdieping is ideaal voor starters. Het appartement beschikt over 70 m² woonoppervlakte. Dit is verdeeld over een lichte woonkamer met een dichte keuken. Hier is tevens ook een vaste bergingskast te vinden. Verder zijn er nog 2 slaapkamers aan de voorzijde van het complex gesitueerd. De badkamer is inpandig en beschikt over een ligbad met douchefunctie, wastafel met meubel en de aansluiting voor de wasmachine en droger. Separaat is er vanuit de hal nog toegang tot het toilet.

GEWELDIG UITZICHT:
Het uitzicht maakt het totaalplaatje compleet! Het balkon ligt over de volledige breedte van het appartement en biedt een geweldig vrij uitzicht. Tevens heeft deze ook nog eens een gunstige ligging, namelijk op het zuidwesten. Dit maakt het mogelijk om lang van de zon te kunnen genieten. Liever genieten van de natuur? Vanaf het appartement loop je zo het Schollebos in!

ALLE VOORZIENINGEN IN DE DIRECTE OMGEVING:
Het appartement is gelegen bij het recent gerenoveerde winkelcentrum "Picassopassage". Hier is alles te vinden op het gebied van dagelijkse voorzieningen en openbaar vervoer. Shoppingmalls Alexandrium I, II en III zijn gemakkelijk met de fiets te bereiken. Gaat u er met de auto op uit? Vanaf de openbare parkeergelegenheid zijn uitvalswegen en snelwegen A20 en A16 snel te bereiken. Kortom; dé ideale locatie!

BIJZONDERHEDEN:
- Bouwjaar 1984;
- 70 m² woonoppervlakte;
- Het appartement is gelegen op EIGEN GROND!;
- Gelegen op de 3e verdieping;
- Er zijn 2 slaapkamers aanwezig;
- Geweldig uitzicht vanaf het balkon;
- Er is een lift aanwezig in het complex;
- Privé berging op de begane grond;
- Gunstig gesitueerd aan de rand van “het Schollebos” met grote waterpartij, recent gerenoveerd winkelcentrum “Picassopassage”, weekmarktje en openbaar vervoer (trein en bus);
- Verwarming en warmwatervoorziening door middel van stadsverwarming;
- Energielabel C, geldig tot 17-11-2030;
- Maandelijkse bijdrage VvE is circa € 156,17;
- Oplevering in overleg.

INTERESSE? MAAK DAN SNEL EEN AFSPRAAK!
Ons advies is om bij het kopen van je nieuwe huis je eigen NVM-makelaar mee te nemen.

TOELICHTINGSCLAUSULE NEN2580
De Meetinstructie is gebaseerd op de NEN2580. De Meetinstructie is bedoeld om een meer eenduidige manier van meten toe te passen voor het geven van een indicatie van de gebruiksoppervlakte. De Meetinstructie sluit verschillen in meetuitkomsten niet volledig uit, door bijvoorbeeld interpretatieverschillen, afrondingen of beperkingen bij het uitvoeren van de meting.

KOOPOVEREENKOMST PAS RECHTSGELDIG NA ONDERTEKENING
Een mondelinge overeenstemming tussen de particuliere verkoper en de particuliere koper is niet rechtsgeldig. Met andere woorden: er is geen koop. Er is pas sprake van een rechtsgeldige koop als de particuliere verkoper en de particuliere koper de koopovereenkomst hebben ondertekend. Dit vloeit voort uit artikel 7:2 Burgerlijk Wetboek. Een bevestiging van de mondelinge overeenstemming per e-mail of een toegestuurd concept van de koopovereenkomst wordt overigens niet gezien als een 'ondertekende koopovereenkomst'

“Deze informatie is door ons met de nodige zorgvuldigheid samengesteld. Onzerzijds wordt echter geen enkele aansprakelijkheid aanvaard voor enige onvolledigheid, onjuistheid of anderszins, dan wel de gevolgen daarvan. Alle opgegeven maten en oppervlakten zijn indicatief.”

Kenmerken

Basiskenmerken

  • Status Verkocht onder voorbehoud
  • Koopsom € 298.000 k.k.
  • Woonoppervlakte ca. 70 m2
  • Aantal slaapkamers 2
  • Bouwjaar 1984

Overdracht

  • Aanvaarding In overleg

Bouwvorm & onderhoud

  • Bouwjaar 1984
  • Soort bouw woonhuis
  • Ligging Aan park, in centrum, in woonwijk, vrij uitzicht

Oppervlakte & inhoud

  • Gebruiksoppervlakte 70m2
  • Inhoud 221m3
  • Aantal kamers 3
  • Aantal slaapkamers 2
  • Aantal woonlagen 1 woonlagen

Energie & installatie

  • Energielabel C
  • Isolatie Dubbel glas
  • Verwarming Stadsverwarming
  • Warm water Stadsverwarming
  • Energie einddatum 17-11-2030

Parkeergelegenheid

  • Parkeerfaciliteiten Openbaar parkeren
  • Garage Geen garage

Dak

  • Soort dak Plat dak

Overig

  • Onderhoud binnen Goed
  • Onderhoud buiten Goed
  • Bijzonderheden Gedeeltelijk gestoffeerd, toegankelijk voor ouderen, toegankelijk voor minder validen
  • Permanente bewoning Ja
  • Huidig gebruik Woonruimte
  • Huidige bestemming Woonruimte

Voorzieningen

  • Voorzieningen Mechanische ventilatie, tv kabel, lift, natuurlijke ventilatie

Kadastrale gegevens

  • Perceelnummer 4800
Meer kenmerken
Ontdek online wat jouw huis waard is

Met de online waardecheck ontdek je in een paar minuten de geschatte waarde van jouw huis

Online waardecheck

In de buurt