Chat with us, powered by LiveChat Frank van Borselenstraat 318, 3132 JD VLAARDINGEN - Van Der Giessen & Van Herk Makelaars

Vlaardingen

Frank van Borselenstraat  318

€ 525.000,- k.k.

Omschrijving

Instapklaar nieuwbouwhuis met energielabel A++++, topkoeling en eigen parkeerplaats gelegen in De Heemtuinen! Wonen in de jonge, groene wijk De Heemtuinen betekent wonen in een duurzame en doordachte leefomgeving waar natuur, rust en modern comfort samenkomen. Dit is geen standaard nieuwbouwwijk, maar een ecologisch woonconcept met veel aandacht voor groen,…

Instapklaar nieuwbouwhuis met energielabel A++++, topkoeling en eigen parkeerplaats gelegen in De Heemtuinen!

Wonen in de jonge, groene wijk De Heemtuinen betekent wonen in een duurzame en doordachte leefomgeving waar natuur, rust en modern comfort samenkomen. Dit is geen standaard nieuwbouwwijk, maar een ecologisch woonconcept met veel aandacht voor groen, biodiversiteit en een sterke community. Hier woon je in een parkachtige omgeving met ruimte om te ontmoeten, te ontspannen en te genieten van het buitenleven. Dit moderne en energiezuinige huis uit 2025/2026 is volledig instapklaar en tot in de puntjes afgewerkt. Hier hoef je echt niets meer te doen. Alles is recent gerealiseerd: van de keuken en badkamer tot het toilet en de vloeren. De afwerking is strak, neutraal en helemaal van deze tijd, waardoor je het huis eenvoudig naar eigen smaak inricht.

LICHTE LEEFRUIMTE EN FIJN TERRAS
Op de eerste verdieping bevindt zich de woonkamer. Een fijne, lichte ruimte waar je eenvoudig een comfortabele zithoek en eethoek creëert. De visgraat pvc-vloer geeft deze verdieping een warme en luxe uitstraling. Dankzij de grote raampartijen is er veel daglicht en heb je een prettig contact met buiten. Via de woonkamer stap je zo het terras op. Dit terras ligt op het oosten, waardoor je hier in de ochtend en begin van de middag heerlijk van de zon geniet. Een ideale plek om de dag te starten met een kop koffie of rustig buiten te zitten.

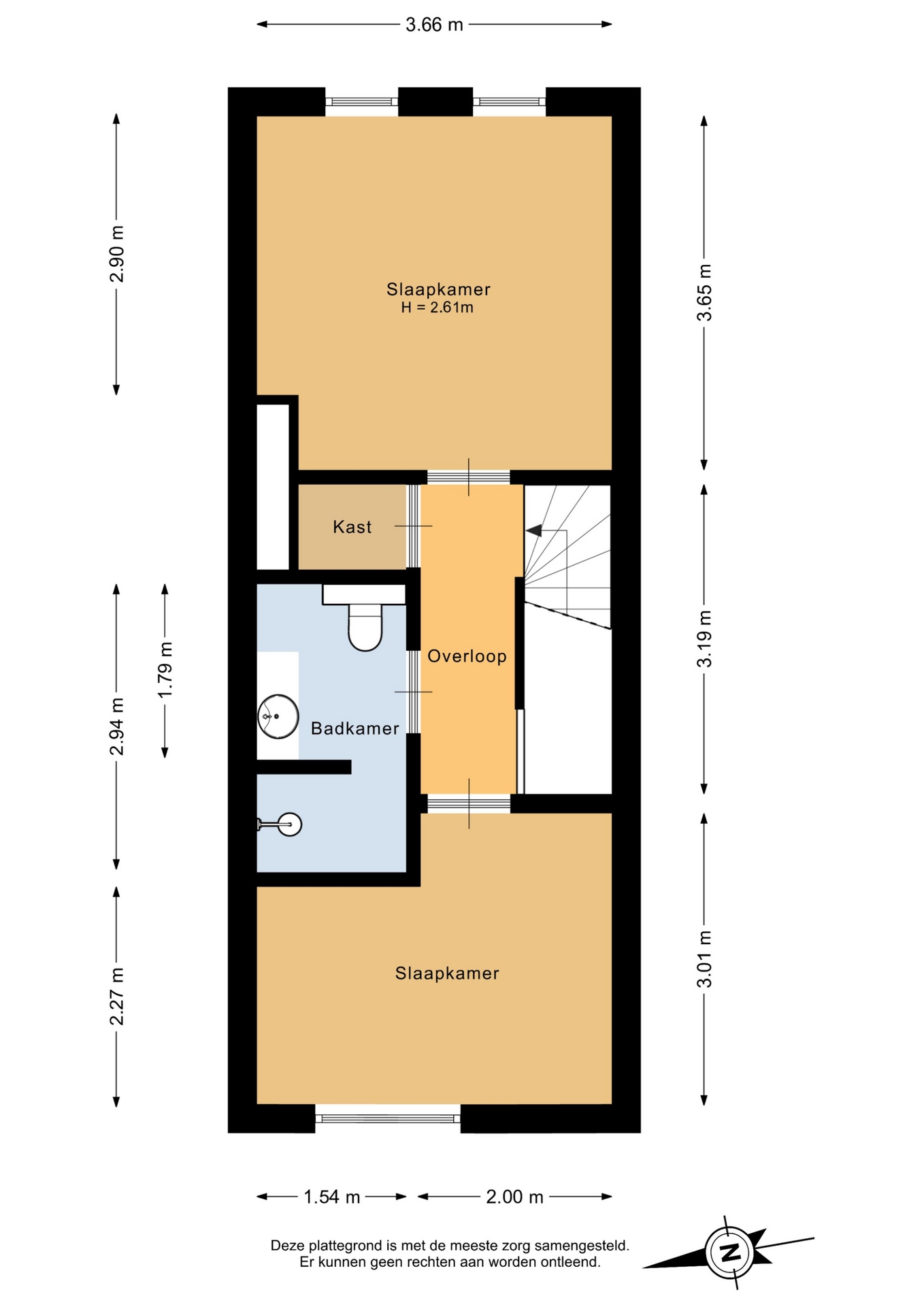
DRIE SLAAPKAMERS EN MODERNE BADKAMER
De eerste en tweede verdieping bieden samen drie slaapkamers. De grootste slaapkamer is ruim opgezet en biedt voldoende plek voor een tweepersoonsbed en kastruimte. De overige kamers zijn perfect als kinderkamer, werkplek of logeerkamer. De badkamer is modern en strak afgewerkt met een lichte kleurstelling. Je beschikt hier over een inloopdouche, wastafelmeubel en een tweede toilet. Net als de rest van het huis is ook deze ruimte volledig nieuw.

DUURZAAM WONEN MET TOPKOELING EN LAGE MAANDLASTEN
Dit huis is volledig voorbereid op de toekomst. Met energielabel A++++, een bodemwarmtepomp, vloerverwarming én -koeling op alle verdiepingen en balansventilatie met warmteterugwinning woon je hier uitzonderlijk comfortabel en energiezuinig. Uniek is de mogelijkheid tot passieve koeling via de bodemwarmtepomp. In de zomer wordt de woning via de vloer enkele graden gekoeld, zonder tocht of geluid zoals bij traditionele airco’s. Dit zorgt juist in warme zomers voor een aangenaam binnenklimaat. Daarnaast zijn er 7 zonnepanelen aanwezig met een opbrengst van circa 1182 kWh per jaar. In combinatie met de uitstekende isolatie resulteert dit in extreem lage energielasten, waardoor je maandlasten aanzienlijk lager uitvallen dan bij reguliere woningen.

ZORGELOOS WONEN MET GARANTIES EN GOED GEREGELD BEHEER
Als koper profiteer je nog van de voordelen van nieuwbouw. De woning valt onder de Woningborg-garantie 2032, wat betekent dat je de komende jaren geen omkijken hebt naar constructieve onderdelen en belangrijke installaties. Daarnaast is het beheer van de gezamenlijke voorzieningen goed geregeld via twee Verenigingen van Eigenaren. Eén voor het mandelige binnenterrein (groen, veiligheid en onderhoud) en één voor de collectieve belangen. Dit zorgt voor professioneel beheer, lage kosten en vooral zorgeloos wonen zonder onverwachte verrassingen.

RUSTIG EN GROEN WONEN IN VLAARDINGEN WEST
Dit huis ligt in Vlaardingen West, een wijk die volop in ontwikkeling is en waar nieuwbouw en bestaande bouw elkaar versterken. Je woont hier rustig, terwijl alle dagelijkse voorzieningen dichtbij zijn. Denk aan supermarkten, scholen, openbaar vervoer en sportfaciliteiten. De bereikbaarheid is uitstekend: binnen korte tijd zit je op de uitvalswegen richting Rotterdam, Schiedam en de rest van de regio. In de directe omgeving vind je daarnaast diverse groene zones en het parkachtige karakter van De Heemtuinen zelf, waar je heerlijk kunt wandelen en ontspannen. Een ideale combinatie van rust, natuur, duurzaamheid en bereikbaarheid.

KENMERKEN:
-Eigen grond
-Bouwjaar 2026
-Woonoppervlakte ca. 114 m²
-Energielabel A++++
-Energiezuinig wonen
-3 slaapkamers
-Instap-klaar
-Eigen parkeerplaats op afgesloten terrein
-Vloerverwarming en -koeling
-WTW-Systeem
-7 zonnepanelen
-Actieve VvE met een totale bijdrage van €27,- per maand
-Niet-zelfbewoningsclausule van toepassing
-Oplevering in overleg, kan snel

INTERESSE? MAAK DAN SNEL EEN AFSPRAAK!
Ons advies is om bij het kopen van jouw nieuwe huis altijd jouw eigen NVM makelaar mee te nemen.

TOELICHTINGSCLAUSULE NEN2580
De Meetinstructie is gebaseerd op de NEN2580. De Meetinstructie is bedoeld om een meer eenduidige manier van meten toe te passen voor het geven van een indicatie van de gebruiksoppervlakte. De Meetinstructie sluit verschillen in meetuitkomsten niet volledig uit, door bijvoorbeeld interpretatieverschillen, afrondingen of beperkingen bij het uitvoeren van de meting.

KOOPOVEREENKOMST PAS RECHTSGELDIG NA ONDERTEKENING
Een mondelinge overeenstemming tussen de particuliere verkoper en de particuliere koper is niet rechtsgeldig. Met andere woorden: er is geen koop. Er is pas sprake van een rechtsgeldige koop als de particuliere verkoper en de particuliere koper de koopovereenkomst hebben ondertekend. Dit vloeit voort uit artikel 7:2 Burgerlijk Wetboek. Een bevestiging van de mondelinge overeenstemming per e-mail of een toegestuurd concept van de koopovereenkomst wordt overigens niet gezien als een 'ondertekende koopovereenkomst'

“Deze informatie is door ons met de nodige zorgvuldigheid samengesteld. Onzerzijds wordt echter geen enkele aansprakelijkheid aanvaard voor enige onvolledigheid, onjuistheid of anderszins, dan wel de gevolgen daarvan. Alle opgegeven maten en oppervlakten zijn indicatief.”

Kenmerken

Basiskenmerken

  • Status Beschikbaar
  • Koopsom € 525.000 k.k.
  • Woonoppervlakte ca. 114 m2
  • Aantal slaapkamers 3
  • Bouwjaar 2026

Overdracht

  • Aanvaarding In overleg

Bouwvorm & onderhoud

  • Soort object Tussenwoning
  • Soort woning Eengezinswoning
  • Bouwjaar 2026
  • Soort bouw woonhuis
  • Ligging Aan park, aan rustige weg, in woonwijk

Oppervlakte & inhoud

  • Gebruiksoppervlakte 114m2
  • Inhoud 409m3
  • Aantal kamers 6
  • Aantal slaapkamers 3
  • Aantal woonlagen 3 woonlagen

Energie & installatie

  • Energielabel A++++
  • Isolatie Dakisolatie, muurisolatie, vloerisolatie, volledig geisoleerd, driedubbel glas, hr glas
  • Verwarming Vloerverwarming geheel, warmte terugwininstallatie
  • Energie einddatum 23-02-2036

Parkeergelegenheid

  • Parkeerfaciliteiten Op afgesloten terrein
  • Garage Parkeerplaats

Dak

  • Soort dak Plat dak

Overig

  • Onderhoud binnen Goed tot uitstekend
  • Onderhoud buiten Uitstekend
  • Bijzonderheden Gedeeltelijk gestoffeerd
  • Permanente bewoning Ja
  • Huidig gebruik Woonruimte
  • Huidige bestemming Woonruimte

Voorzieningen

  • Voorzieningen Tv kabel, schuifpui, glasvezel kabel, zonnepanelen, balansventilatie

Buitenruimte

  • Hoofdtuin ZONNETERRAS
  • Oppervlakte hoofdtuin 19m2
  • Ligging hoofdtuin OOST
  • Kwaliteit tuin Normaal

Kadastrale gegevens

  • Perceelnummer 3107
Meer kenmerken
Ontdek online wat jouw huis waard is

Met de online waardecheck ontdek je in een paar minuten de geschatte waarde van jouw huis

Online waardecheck

In de buurt

Geïnteresseerd?

Bel met Van Der Giessen & Van Herk Makelaars

shape

Stuur een bericht

* Maximaal 255 tekens
privacyverklaring