Chat with us, powered by LiveChat Edisonstraat 34 B, 3112 LW SCHIEDAM - Van Der Giessen & Van Herk Makelaars

Schiedam

Edisonstraat  34 B

€ 299.000,- k.k.

Omschrijving

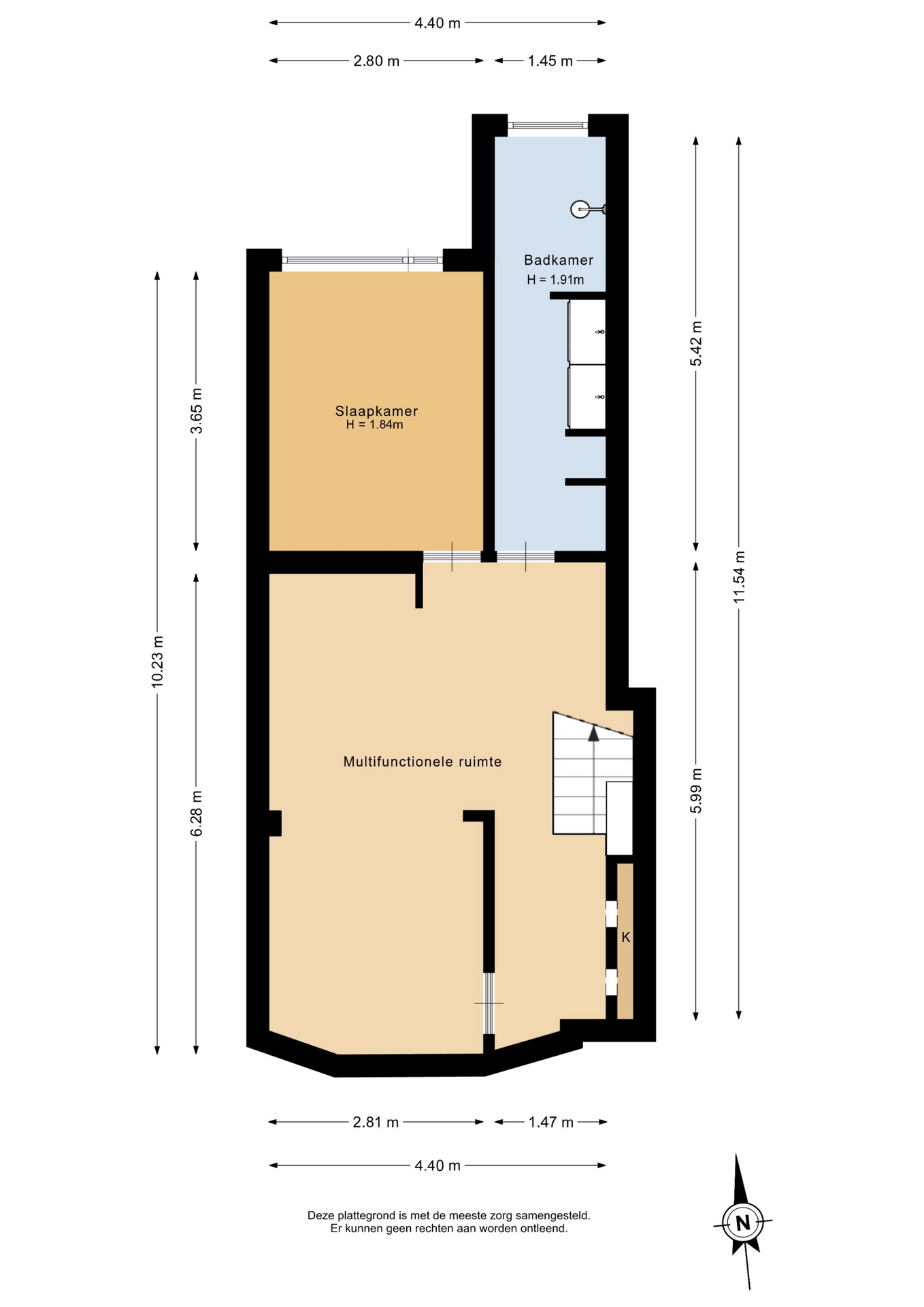
4-kamerapparrtement met tuin in de Newtonbuurt! DE GEBRUIKERSOPPERVLAKTE VAN DEZE WONING IS 94M² GROOT, verdeeld in 47m² wonen en 47m² overige inpandige ruimte, Edisonstraat 34 B in Schiedam is zo’n huis waar je direct ziet wat het kan worden. Geen kant-en-klaar plaatje, maar een plek waar je jouw eigen woonwensen kunt realiseren. Met 96 m² woonoppervlakte, vier kamers…

4-kamerapparrtement met tuin in de Newtonbuurt! DE GEBRUIKERSOPPERVLAKTE VAN DEZE WONING IS 94M² GROOT, verdeeld in 47m² wonen en 47m² overige inpandige ruimte,

Edisonstraat 34 B in Schiedam is zo’n huis waar je direct ziet wat het kan worden. Geen kant-en-klaar plaatje, maar een plek waar je jouw eigen woonwensen kunt realiseren. Met 96 m² woonoppervlakte, vier kamers en een diepe tuin van circa 7 meter op het noorden ligt hier een mooie basis voor starters en doorstromers die niet bang zijn om de handen uit de mouwen te steken.

Dit appartement is gelegen op de begane grond van een karakteristiek pand uit 1931. De indeling is praktisch en biedt volop kansen om ruimtes samen te voegen, te moderniseren en volledig naar eigen smaak in te richten. Hier woon je straks niet in het huis van iemand anders, maar in een thuis dat écht van jou is.

LICHTE WOONKAMER MET RUIME INDELING
De woonkamer is royaal van opzet en biedt verschillende mogelijkheden voor een comfortabele zit- en eethoek. Dankzij de grote raampartijen komt er prettig daglicht binnen en ontstaat er een fijne basis om een warme leefruimte te creëren. De indeling leent zich uitstekend voor het realiseren van een moderne woonkeuken of juist het behouden van een aparte keukenruimte. Of je nu kiest voor strak en minimalistisch of warm met jaren ’30 details: hier kun je alle kanten op. Met in totaal vier kamers heb je daarnaast flexibiliteit. Denk aan drie slaapkamers, een thuiskantoor of een hobbyruimte. Voor starters die extra ruimte zoeken of doorstromers die net wat meer plek willen dan een standaard appartement, is dit een interessante kans.

DIEPE TUIN OP HET NOORDEN
Achter het appartement ligt een circa 7 meter diepe tuin op het noorden. Een fijne buitenruimte waar je met wat aandacht een heerlijke stadstuin van kunt maken. Door de diepte is er ruimte genoeg voor een terras én groen.
In de zomer kun je hier ’s ochtends en later op de dag prettig buiten zitten. Met de juiste inrichting maak je hier een beschutte plek om te ontspannen of gezellig te borrelen met vrienden. Ook hier geldt: de basis is er, de invulling bepaal jij.

KARAKTERISTIEK WONEN MET ENERGIELABEL B
Het pand stamt uit 1931, wat zorgt voor die kenmerkende bouwstijl uit begin vorige eeuw. Tegelijkertijd beschikt het appartement over energielabel B, wat prettig is voor het wooncomfort én de maandelijkse lasten.
De Vereniging van Eigenaren is actief, met een maandelijkse bijdrage van € … per maand. Dat geeft duidelijkheid over het onderhoud en de gezamenlijke verantwoordelijkheid binnen het complex. Dit is een huis voor kopers die verder kijken dan alleen de huidige staat. Zie jij de potentie? Dan kun je hier iets heel moois neerzetten.

WONEN NABIJ STATION EN CENTRUM
De Edisonstraat ligt in een woonwijk in Schiedam, op korte afstand van Station Schiedam Centrum. Ideaal voor wie werkt in Rotterdam of regelmatig met het openbaar vervoer reist. Binnen enkele minuten sta je op de trein, metro of tram. Ook het historische centrum van Schiedam ligt dichtbij. Hier vind je gezellige terrassen, winkels, supermarkten en diverse voorzieningen. De combinatie van rustig wonen en de stad binnen handbereik maakt dit een aantrekkelijke locatie voor zowel starters als doorstromers. Daarnaast zijn uitvalswegen richting A4 en A20 goed bereikbaar. Of je nu met de auto of het OV reist, je zit hier praktisch.

KENMERKEN
-Eigen grond
-Bouwjaar 1931
-Woonoppervlakte 47m² + 47m² overige inpandige ruimte
-Energielabel B
-Tuin van circa 7 meter diep op het noorden
-4 kamers
-Verwarming en warm water via CV ketel
-Actieve VvE met bijdrage van € 80,50 per maand
-Ouderdomsclausule van toepassing
-Oplevering in overleg, kan snel

INTERESSE? MAAK DAN SNEL EEN AFSPRAAK!
Ons advies is om bij het kopen van jouw nieuwe woning jouw eigen NVM makelaar mee te nemen.

TOELICHTINGSCLAUSULE NEN2580
De Meetinstructie is gebaseerd op de NEN2580. De Meetinstructie is bedoeld om een meer eenduidige manier van meten toe te passen voor het geven van een indicatie van de gebruiksoppervlakte. De Meetinstructie sluit verschillen in meetuitkomsten niet volledig uit, door bijvoorbeeld interpretatieverschillen, afrondingen of beperkingen bij het uitvoeren van de meting.

KOOPOVEREENKOMST PAS RECHTSGELDIG NA ONDERTEKENING
Een mondelinge overeenstemming tussen de particuliere verkoper en de particuliere koper is niet rechtsgeldig. Met andere woorden: er is geen koop. Er is pas sprake van een rechtsgeldige koop als de particuliere verkoper en de particuliere koper de koopovereenkomst hebben ondertekend. Dit vloeit voort uit artikel 7:2 Burgerlijk Wetboek. Een bevestiging van de mondelinge overeenstemming per e-mail of een toegestuurd concept van de koopovereenkomst wordt overigens niet gezien als een 'ondertekende koopovereenkomst'

“Deze informatie is door ons met de nodige zorgvuldigheid samengesteld. Onzerzijds wordt echter geen enkele aansprakelijkheid aanvaard voor enige onvolledigheid, onjuistheid of anderszins, dan wel de gevolgen daarvan. Alle opgegeven maten en oppervlakten zijn indicatief.”

Kenmerken

Basiskenmerken

  • Status Beschikbaar
  • Koopsom € 299.000 k.k.
  • Woonoppervlakte ca. 96 m2
  • Aantal slaapkamers 3
  • Bouwjaar 1931

Overdracht

  • Aanvaarding In overleg

Bouwvorm & onderhoud

  • Bouwjaar 1931
  • Soort bouw woonhuis
  • Ligging Aan rustige weg, in woonwijk

Oppervlakte & inhoud

  • Gebruiksoppervlakte 96m2
  • Inhoud 317m3
  • Aantal kamers 4
  • Aantal slaapkamers 3
  • Aantal woonlagen 2 woonlagen

Energie & installatie

  • Energielabel B
  • Isolatie Dubbel glas
  • Verwarming Cv ketel
  • Warm water Cv ketel
  • C.v.-ketel type GAS
  • C.v.-ketel bouwjaar 2016
  • Energie einddatum 15-03-2032

Bergruimte

  • Schuur / berging Vrijstaand hout
  • Voorzieningen Voorzien van elektra

Parkeergelegenheid

  • Parkeerfaciliteiten Betaald parkeren, parkeervergunningen
  • Garage Geen garage

Dak

  • Soort dak Plat dak

Overig

  • Onderhoud binnen Redelijk
  • Onderhoud buiten Redelijk
  • Bijzonderheden Gedeeltelijk gestoffeerd
  • Permanente bewoning Ja
  • Huidig gebruik Woonruimte
  • Huidige bestemming Woonruimte

Voorzieningen

  • Voorzieningen Mechanische ventilatie, tv kabel, natuurlijke ventilatie

Buitenruimte

  • Hoofdtuin ACHTERTUIN
  • Oppervlakte hoofdtuin 38m2
  • Ligging hoofdtuin NOORD
  • Kwaliteit tuin Normaal

Kadastrale gegevens

  • Perceelnummer 4863
Meer kenmerken
Ontdek online wat jouw huis waard is

Met de online waardecheck ontdek je in een paar minuten de geschatte waarde van jouw huis

Online waardecheck

In de buurt

Geïnteresseerd?

Bel met Van Der Giessen & Van Herk Makelaars

shape

Stuur een bericht

* Maximaal 255 tekens
privacyverklaring