Chat with us, powered by LiveChat Beugstraat 81, 3192 GA HOOGVLIET ROTTERDAM - Van Der Giessen & Van Herk Makelaars

Hoogvliet Rotterdam

Beugstraat  81

€ 475.000,- k.k.

Omschrijving

RUIMTE, LICHT EN COMFORT VOOR HET HELE GEZIN In de rustige en kindvriendelijke wijk Zalmplaat staat deze royale tussenwoning met maar liefst 148 m² woonoppervlakte, verdeeld over drie volwaardige woonlagen en een eigen parkeerplaats. Met vier ruime slaapkamers (en een vijfde mogelijk), een diepe achtertuin met berging en overkapping op het westen én energielabel A is dit…

RUIMTE, LICHT EN COMFORT VOOR HET HELE GEZIN
In de rustige en kindvriendelijke wijk Zalmplaat staat deze royale tussenwoning met maar liefst 148 m² woonoppervlakte, verdeeld over drie volwaardige woonlagen en een eigen parkeerplaats. Met vier ruime slaapkamers (en een vijfde mogelijk), een diepe achtertuin met berging en overkapping op het westen én energielabel A is dit het ideale huis voor jonge doorstromers die net dat beetje extra zoeken. Hier woon je duurzaam, comfortabel én op een centrale locatie in Hoogvliet Rotterdam.

LICHTE LEEFRUIMTE MET TOEGANG TOT DE TUIN
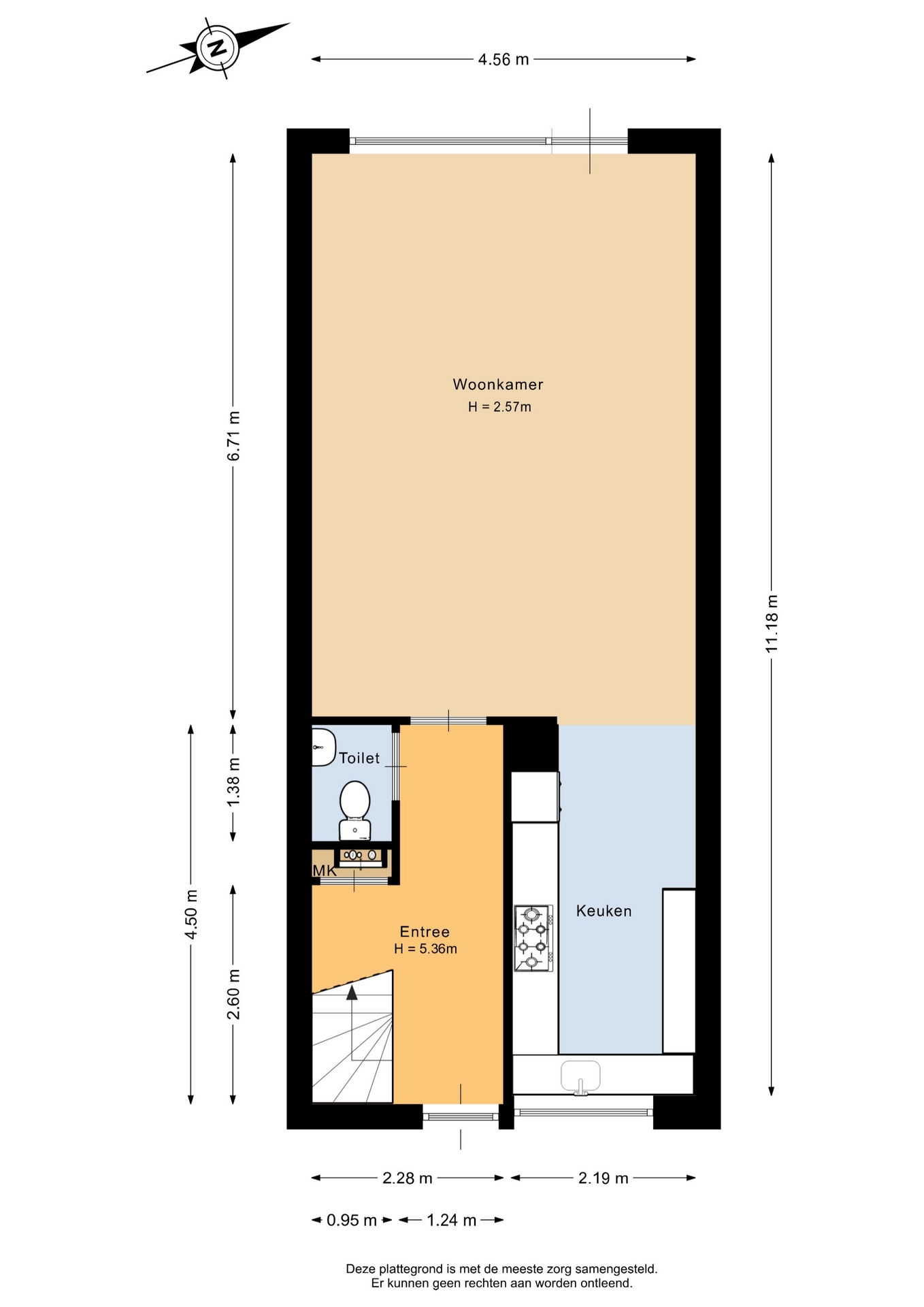
De begane grond is heerlijk licht en overzichtelijk ingedeeld. Bij binnenkomst valt direct de hoge entreehal op, die doorloopt naar de gezellige woonkamer met tuingerichte zithoek en openslaande deuren naar buiten. De strakke vloer, lichte wanden en grote raampartij zorgen voor een moderne uitstraling en fijne sfeer. Er is genoeg ruimte voor een royale zithoek én een grote eettafel, perfect voor gezellige etentjes of lange spelletjesavonden met het gezin.

Aan de voorzijde ligt de de half open keuken, uitgevoerd in een warme, neutrale kleurstelling met volop kastruimte, een 5-pits gaskookplaat, afzuigkap, oven, combimagnetron, vaatwasser en koel-/vriescombinatie. De keuken heeft een rechte opstelling met een extra wandkast, wat zorgt voor een praktische en efficiënte indeling.

DRIE LAGEN WOONGEMAK MET RUIME SLAAPKAMERS
Op de eerste verdieping bevindt zich de grootste slaapkamer, over de volle breedte van de woning. Deze is ruim genoeg voor een groot bed en een kledingkast, en heeft prettig daglicht. De badkamer is compleet uitgevoerd met een ligbad, inloopdouche, toilet en wastafelmeubel.

Op de tweede verdieping vind je nog eens drie slaapkamers van goed formaat, ideaal voor kinderen, een thuiswerkplek of logeerkamer. Ook is hier een aparte wasruimte met opstelplaats voor wasmachine, droger, WTW unit en de recent geplaatste Remeha HR combiketel (2024). Dankzij de slimme indeling van de eerste etage is zelfs het realiseren van een vijfde slaapkamer hier goed mogelijk.

TUIN OP HET WESTEN MET OVERKAPPING
De achtertuin van ca. 50 m² is netjes aangelegd en gelegen op het westen – dat betekent in de middag en avond zon! Achter in de tuin staat een houten berging met elektra, ideaal voor fietsen, tuinkussens of klusmateriaal. De overkapping is een fijne extra plek waar je beschut buiten kunt zitten, ook als het weer iets minder is. De tuin is via een achterom bereikbaar, wat praktisch is voor jonge gezinnen.

Aan de voorzijde van het huis ligt nog een voortuin met zitje én er is vlakbij nog een eigen parkeerplaats.

DUURZAAM EN GOED ONDERHOUDEN
De woning is goed geïsoleerd met dak-, vloer- en muurisolatie en geheel voorzien van hardhouten kozijnen met HR++ glas. Er is een warmteterugwin-installatie aanwezig, deels vloerverwarming én een recente cv-ketel. Daarmee is dit huis toekomstgericht en energiezuinig – helemaal passend bij de huidige woonwensen.

FIJNE LIGGING IN ZALMPLAAT – HOOGVLIET
Zalmplaat is een geliefde en groene woonwijk in Hoogvliet Rotterdam. Je woont hier rustig, maar met alle voorzieningen binnen handbereik. Op loopafstand vind je winkels, basisscholen, speeltuinen en het metrostation Zalmplaat, waarmee je binnen ca. 25 minuten in hartje Rotterdam staat. Ook zijn er diverse sportclubs, kinderopvang en recreatiemogelijkheden zoals het nabijgelegen park en de Oude Maas.

De wijk is ruim opgezet met veel groen, brede trottoirs en voldoende parkeergelegenheid. Dankzij de centrale ligging zijn ook uitvalswegen als de A15 en A4 snel te bereiken. Kortom: een ideale plek voor jonge gezinnen die graag ruim willen wonen zonder de stad te hoeven verlaten.

BELANGRIJKSTE KENMERKEN
- Woonoppervlakte: 148 m²
- Perceeloppervlakte: 116 m²
- Bouwjaar: 2004
- Aantal slaapkamers: 4 (5 mogelijk)
- Opvallend ruime woning met drie gelijke woonlagen
- Energielabel: A
- eigen parkeerplaats vlakbij de woning
- Bijdrage VvE parkeerplaats circa € 20,- per maand
- CV combiketel Remeha HR (2024)
- Oplevering: In overleg

Kenmerken

Basiskenmerken

  • Status Beschikbaar
  • Koopsom € 475.000 k.k.
  • Woonoppervlakte ca. 148 m2
  • Aantal slaapkamers 4
  • Bouwjaar 2004

Overdracht

  • Aanvaarding In overleg

Bouwvorm & onderhoud

  • Soort object Tussenwoning
  • Soort woning Eengezinswoning
  • Bouwjaar 2004
  • Soort bouw woonhuis
  • Ligging Aan rustige weg, in woonwijk, beschutte ligging

Oppervlakte & inhoud

  • Gebruiksoppervlakte 148m2
  • Perceeloppervlakte 116m2
  • Inhoud 518m3
  • Aantal kamers 5
  • Aantal slaapkamers 4
  • Aantal woonlagen 3 woonlagen

Energie & installatie

  • Energielabel A
  • Isolatie Dakisolatie, muurisolatie, vloerisolatie, dubbel glas
  • Verwarming Cv ketel
  • Warm water Cv ketel
  • C.v.-ketel type GAS
  • C.v.-ketel bouwjaar 2024
  • Energie einddatum 02-04-2029

Bergruimte

  • Schuur / berging Vrijstaand hout
  • Voorzieningen Voorzien van elektra

Parkeergelegenheid

  • Parkeerfaciliteiten Openbaar parkeren, op eigen terrein
  • Garage Parkeerplaats

Dak

  • Soort dak Plat dak

Overig

  • Onderhoud binnen Goed
  • Onderhoud buiten Goed
  • Bijzonderheden Gedeeltelijk gestoffeerd
  • Permanente bewoning Ja
  • Huidig gebruik Woonruimte
  • Huidige bestemming Woonruimte

Voorzieningen

  • Voorzieningen Mechanische ventilatie, rolluiken, tv kabel, buitenzonwering, glasvezel kabel, natuurlijke ventilatie

Buitenruimte

  • Hoofdtuin ACHTERTUIN
  • Oppervlakte hoofdtuin 50m2
  • Ligging hoofdtuin WEST
  • Kwaliteit tuin Verzorgd

Kadastrale gegevens

  • Perceelnummer 2531
  • Perceeloppervlakte 116 m2
Meer kenmerken
Ontdek online wat jouw huis waard is

Met de online waardecheck ontdek je in een paar minuten de geschatte waarde van jouw huis

Online waardecheck

In de buurt

Geïnteresseerd?

Bel met Van Der Giessen & Van Herk Makelaars

shape

Stuur een bericht

* Maximaal 255 tekens
privacyverklaring