Chat with us, powered by LiveChat Zestienhovensekade 377, 3043 KP ROTTERDAM - Van Der Giessen & Van Herk Makelaars

Rotterdam

Zestienhovensekade  377

€ 299.000,- k.k.

Omschrijving

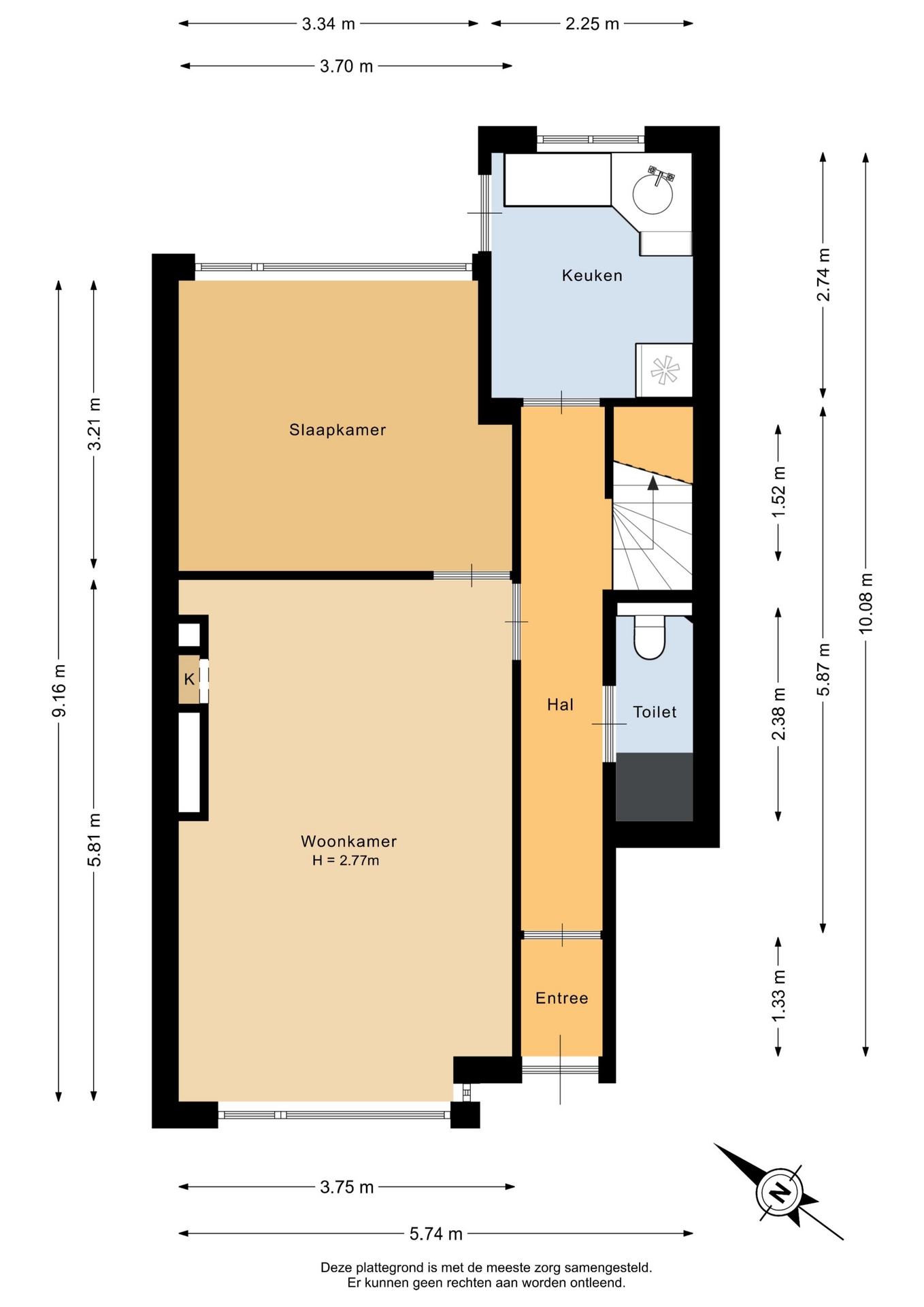
Ruim 2-kamerappartement met veel potentie (!), plus een diepe tuin van ca. 15 meter diep en een kelder van ca. 54 m² Op een fijne plek aan de Zestienhovensekade vind je dit charmante jaren ’30 appartement op de begane grond, met verrassend veel ruimte en een heerlijke diepe achtertuin. Dit is zo’n plek waar je als starter direct mogelijkheden ziet: een goede basis, veel…

Ruim 2-kamerappartement met veel potentie (!), plus een diepe tuin van ca. 15 meter diep en een kelder van ca. 54 m²

Op een fijne plek aan de Zestienhovensekade vind je dit charmante jaren ’30 appartement op de begane grond, met verrassend veel ruimte en een heerlijke diepe achtertuin. Dit is zo’n plek waar je als starter direct mogelijkheden ziet: een goede basis, veel licht en volop kansen om het helemaal eigen te maken. Je komt binnen via de entree in de hal, die toegang geeft tot de verschillende ruimtes. De woonkamer aan de voorzijde is prettig licht dankzij de grote raampartijen en heeft een fijne breedte waardoor je hier makkelijk een comfortabele zithoek en eethoek kwijt kunt. De aanwezige schouw zorgt voor extra sfeer en geeft karakter aan de ruimte. De afwerking is netjes en neutraal, waardoor je hier eenvoudig je eigen stijl kunt doorvoeren.

PRAKTISCHE INDELING MET FIJNE LEEFRUIMTES
Aan de achterzijde van het huis bevindt zich de slaapkamer. Dankzij de ligging aan de tuin is dit een rustige plek in huis. Vanuit hier heb je ook zicht op het groen, wat zorgt voor een prettig en ontspannen gevoel.
De keuken ligt eveneens aan de achterzijde en heeft een praktische opstelling met voldoende werk- en bergruimte. Vanuit de keuken is er toegang richting de tuin, wat het extra fijn maakt op zonnige dagen. In de hal vind je daarnaast het separate toilet en de trapopgang naar de verdieping. Op de eerste verdieping bevindt zich de badkamer. Deze is ruim opgezet en voorzien van een douche, wastafel en aansluiting voor de wasmachine. Doordat deze verdieping volledig in gebruik is als badkamer, voelt het als een luxe toevoeging ten opzichte van vergelijkbare huizen.

DIEPE TUIN EN VERREND VEEL BERGRUIMTE
Eén van de absolute pluspunten van dit huis is de achtertuin. Met een diepte van circa 15 meter en een ligging op het noordoosten heb je hier altijd wel een plekje in de zon of juist in de schaduw. De tuin is grotendeels bestraat en daardoor onderhoudsvriendelijk, maar biedt ook voldoende mogelijkheden om groen toe te voegen en er echt jouw eigen plek van te maken. Door de diepte ervaar je hier veel privacy en rust.

Daarnaast beschikt het huis over een zeer ruime kelder van maar liefst circa 54 m² aan overige inpandige ruimte. Dit is ideaal voor opslag, hobbyruimte of bijvoorbeeld een werkplek aan huis. Deze extra meters maken het verschil en zorgen ervoor dat je hier meer mogelijkheden hebt dan je op het eerste gezicht zou verwachten.

WONEN AAN DE ZESTIENHOVENSEKADE
De Zestienhovensekade ligt in een rustige en karakteristieke omgeving in Rotterdam, met een mix van vooroorlogse bebouwing en groen in de directe omgeving. Je woont hier prettig en relatief rustig, terwijl de stad altijd dichtbij is. In de buurt vind je diverse winkels voor de dagelijkse boodschappen, scholen en sportvoorzieningen. Ook de bereikbaarheid is goed: met de auto zit je zo op uitvalswegen richting de A13 en A20, en met het openbaar vervoer ben je snel in het centrum van Rotterdam. Daarnaast zijn er in de omgeving meerdere parken en groengebieden waar je kunt wandelen of ontspannen.

KENMERKEN
-Gelegen op eigen grond
-Bouwjaar 1936
-Woonoppervlakte van ca. 64m² (excl. kelder van ca. 54 m²)
-Energielabel C
-Ruime tuin van ca 15 meter diep
-Verwarming en warm water via CV-Ketel Intergas (2009)
-VvE wordt geactiveerd
-Ouderdomsclausule van toepassing
-Oplevering in overleg

INTERESSE? MAAK DAN SNEL EEN AFSPRAAK!
Ons advies is om bij het kopen van jouw nieuwe woning jouw eigen NVM makelaar mee te nemen.

TOELICHTINGSCLAUSULE NEN2580
De Meetinstructie is gebaseerd op de NEN2580. De Meetinstructie is bedoeld om een meer eenduidige manier van meten toe te passen voor het geven van een indicatie van de gebruiksoppervlakte. De Meetinstructie sluit verschillen in meetuitkomsten niet volledig uit, door bijvoorbeeld interpretatieverschillen, afrondingen of beperkingen bij het uitvoeren van de meting.

KOOPOVEREENKOMST PAS RECHTSGELDIG NA ONDERTEKENING
Een mondelinge overeenstemming tussen de particuliere verkoper en de particuliere koper is niet rechtsgeldig. Met andere woorden: er is geen koop. Er is pas sprake van een rechtsgeldige koop als de particuliere verkoper en de particuliere koper de koopovereenkomst hebben ondertekend. Dit vloeit voort uit artikel 7:2 Burgerlijk Wetboek. Een bevestiging van de mondelinge overeenstemming per e-mail of een toegestuurd concept van de koopovereenkomst wordt overigens niet gezien als een 'ondertekende koopovereenkomst'

“Deze informatie is door ons met de nodige zorgvuldigheid samengesteld. Onzerzijds wordt echter geen enkele aansprakelijkheid aanvaard voor enige onvolledigheid, onjuistheid of anderszins, dan wel de gevolgen daarvan. Alle opgegeven maten en oppervlakten zijn indicatief.”

Kenmerken

Basiskenmerken

  • Status Beschikbaar
  • Koopsom € 299.000 k.k.
  • Woonoppervlakte ca. 60 m2
  • Aantal slaapkamers 1
  • Bouwjaar 1936

Overdracht

  • Aanvaarding In overleg

Bouwvorm & onderhoud

  • Bouwjaar 1936
  • Soort bouw woonhuis
  • Ligging Aan bosrand, aan water, aan rustige weg, in woonwijk

Oppervlakte & inhoud

  • Gebruiksoppervlakte 60m2
  • Inhoud 374m3
  • Aantal kamers 2
  • Aantal slaapkamers 1
  • Aantal woonlagen 2 woonlagen
  • Overige inpandige ruimte 54m2

Energie & installatie

  • Energielabel C
  • Isolatie Dubbel glas, hr glas
  • Verwarming Cv ketel
  • Warm water Cv ketel
  • C.v.-ketel type GAS
  • C.v.-ketel bouwjaar 2009
  • Energie einddatum 13-11-2030

Parkeergelegenheid

  • Parkeerfaciliteiten Openbaar parkeren
  • Garage Geen garage

Dak

  • Soort dak Zadeldak

Overig

  • Onderhoud binnen Goed
  • Onderhoud buiten Goed
  • Bijzonderheden Gedeeltelijk gestoffeerd
  • Permanente bewoning Ja
  • Huidig gebruik Woonruimte
  • Huidige bestemming Woonruimte

Voorzieningen

  • Voorzieningen Tv kabel, natuurlijke ventilatie

Buitenruimte

  • Hoofdtuin ACHTERTUIN
  • Oppervlakte hoofdtuin 101m2
  • Ligging hoofdtuin NOORDOOST
  • Kwaliteit tuin Normaal

Kadastrale gegevens

  • Perceelnummer 5224
Meer kenmerken
Ontdek online wat jouw huis waard is

Met de online waardecheck ontdek je in een paar minuten de geschatte waarde van jouw huis

Online waardecheck

In de buurt

Geïnteresseerd?

Bel met Van Der Giessen & Van Herk Makelaars

shape

Stuur een bericht

* Maximaal 255 tekens
privacyverklaring