Chat with us, powered by LiveChat Valeriaan 13, 2811 RJ REEUWIJK - Van Der Giessen & Van Herk Makelaars

Reeuwijk

Valeriaan 13

€ 500.000,- k.k.

Omschrijving

RUIMTE, RUST EN EEN GROTE TUIN Deze ruime hoekwoning biedt veel mogelijkheden! Achter de gevel van deze 'waaierwoning' wordt je verrast door de ruimte, licht en fijne indeling. Stap binnen in de woonkamer met sfeervolle open haard en zicht op de groene achtertuin. De open keuken is voorzien van alle benodigde apparatuur. Op de eerste verdieping zijn er 3 ruime slaapkamers…

RUIMTE, RUST EN EEN GROTE TUIN
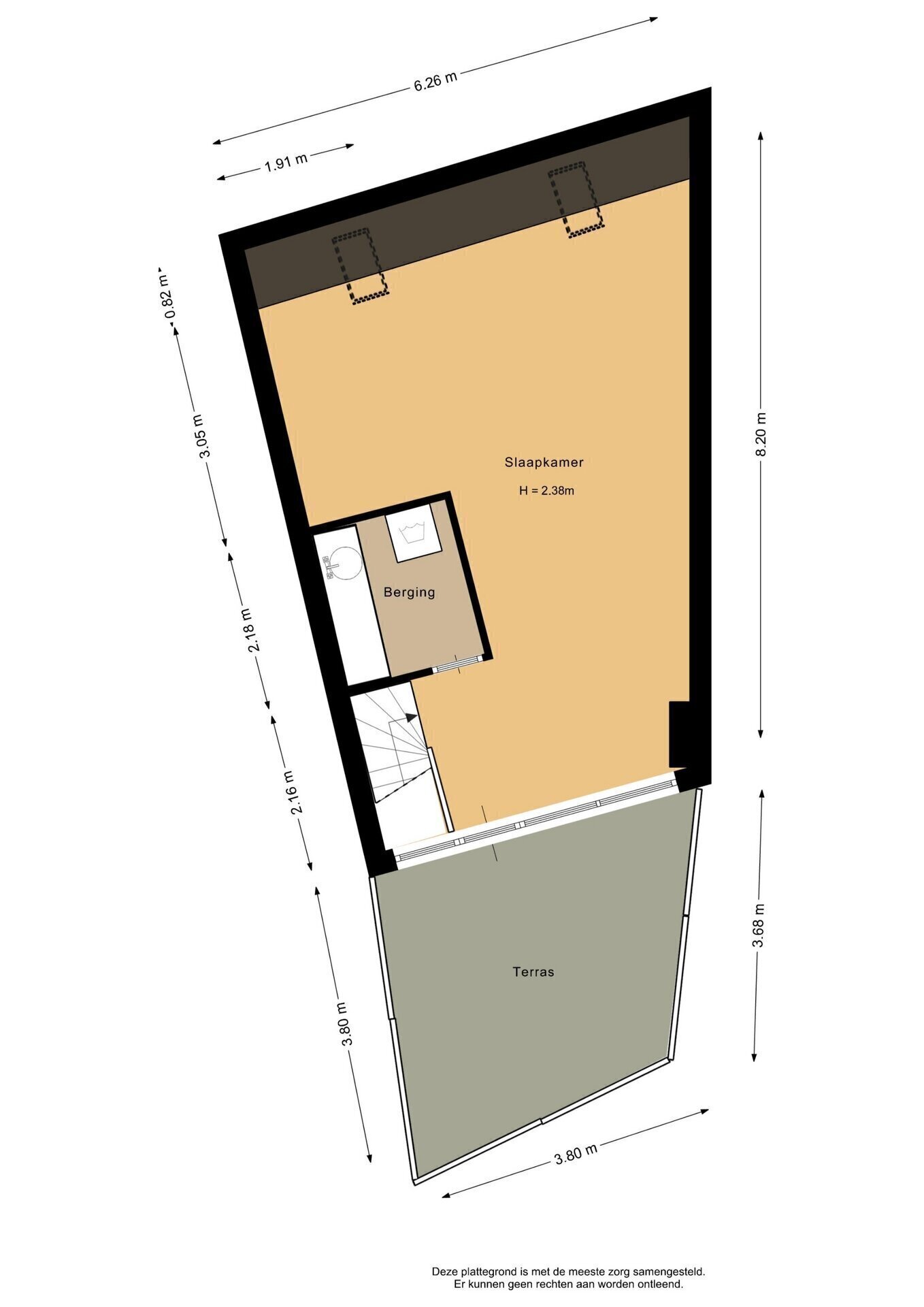
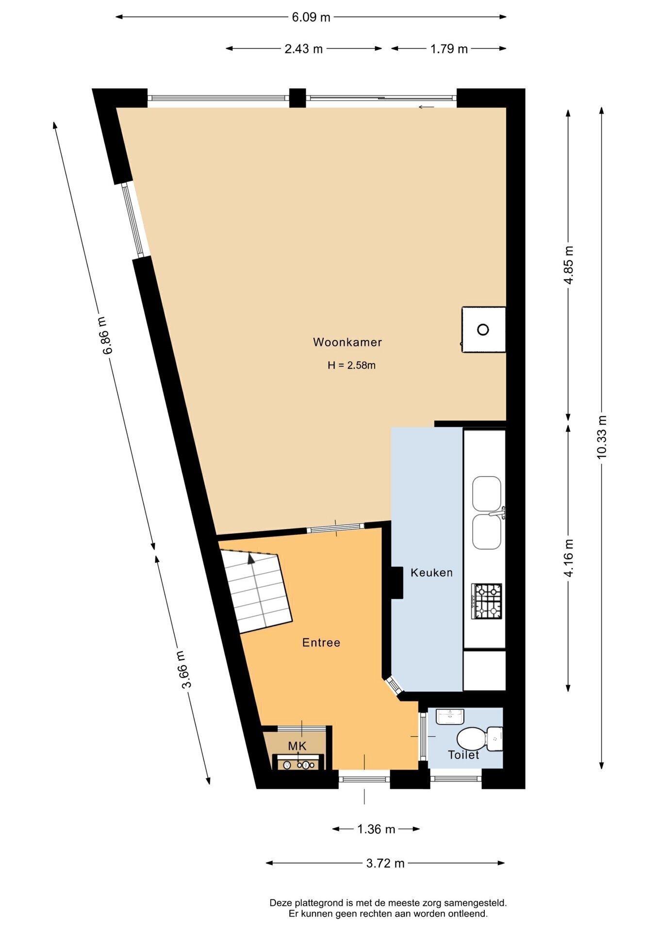
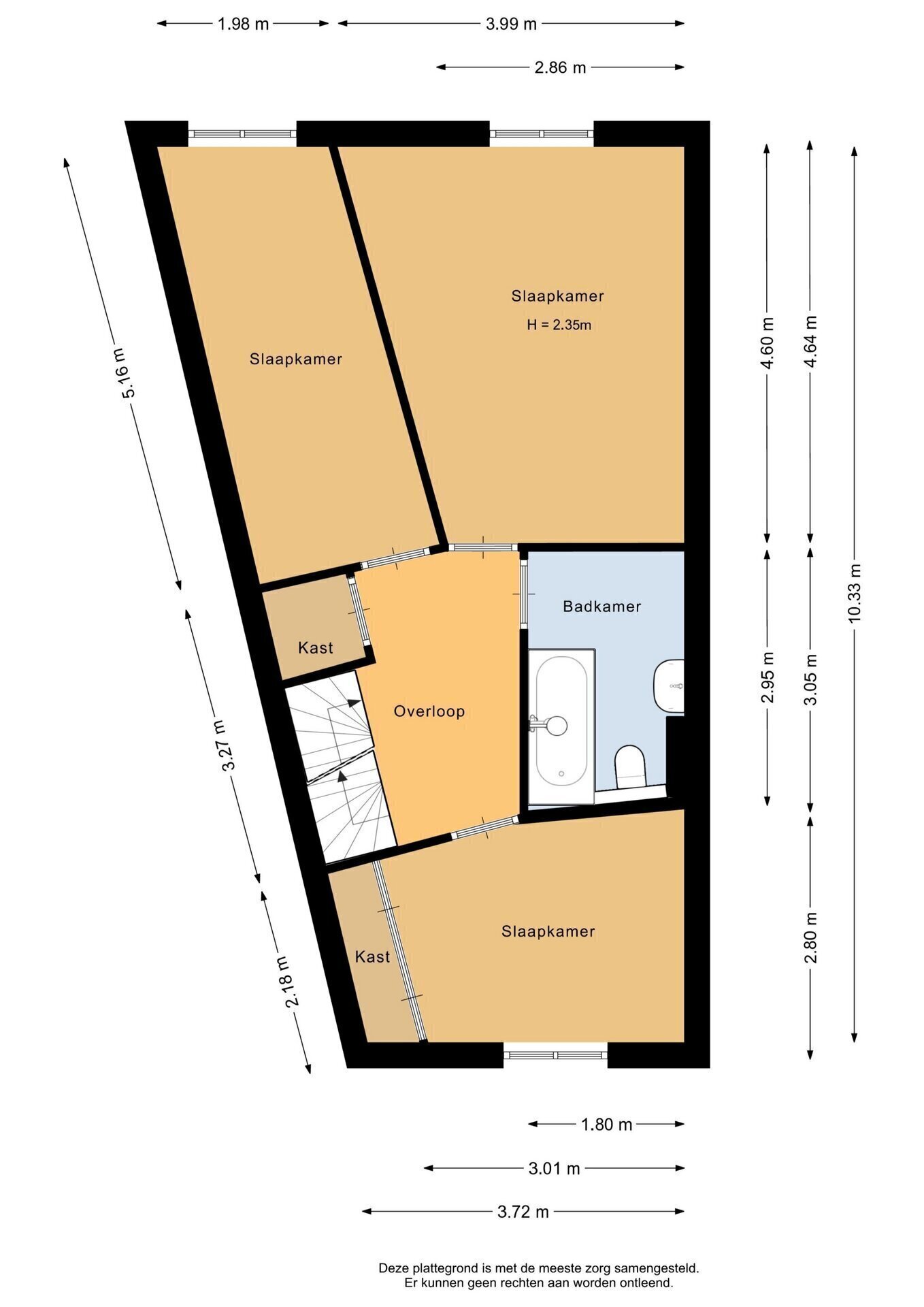
Deze ruime hoekwoning biedt veel mogelijkheden! Achter de gevel van deze 'waaierwoning' wordt je verrast door de ruimte, licht en fijne indeling. Stap binnen in de woonkamer met sfeervolle open haard en zicht op de groene achtertuin. De open keuken is voorzien van alle benodigde apparatuur. Op de eerste verdieping zijn er 3 ruime slaapkamers en een badkamer met ligbad, toilet en wastafel. De tweede verdieping is helemaal naar eigen wens in te delen. Je kunt hier eenvoudig twee slaapkamers creëren en ontspannen op het dakterras. Buiten vind je een heerlijke, ruime tuin waar je kunt genieten van privacy en rust. Genoeg mogelijkheden voor het aanleggen van een eigen tuinparadijs, perfect voor gezellige avonden. Door de ligging op het Westen heb je tot in de late uurtjes zon. Kortom; een ideale woning voor gezinnen!

GEWILDE LIGGING
Gelegen aan een autovrij plein, is het hier fijn thuiskomen. De kindvriendelijke omgeving en de centrale ligging zorgen ervoor dat je zowel van de rust als de nabijheid van voorzieningen kunt genieten. Er zijn in de omgeving speeltuinen, scholen, sportverenigingen en het winkelcentrum is op loopafstand. Voor ontspanning ben je ook zo bij de prachtige Reeuwijkse Plassen.

BIJZONDERHEDEN
- De dakpannen zijn ca. 5 jaar geleden vernieuwd;
- Ruime woning met veel mogelijkheden;
- Rustige en centrale ligging;
- Dakterras op de tweede verdieping;
- Voor eigendom en onderhoud van de pleinen en een aantal toegangspaden is een Coöperatieve Vereniging opgericht, de jaarlijkse bijdrage is € 150,-
- Oplevering in overleg, kan snel.

INTERESSE? MAAK DAN SNEL EEN AFSPRAAK!
Ons advies is om bij het kopen van je nieuwe huis je eigen NVM-makelaar mee te nemen.

TOELICHTINGSCLAUSULE NEN2580
De Meetinstructie is gebaseerd op de NEN2580. De Meetinstructie is bedoeld om een meer eenduidige manier van meten toe te passen voor het geven van een indicatie van de gebruiksoppervlakte. De Meetinstructie sluit verschillen in meetuitkomsten niet volledig uit, door bijvoorbeeld interpretatieverschillen, afrondingen of beperkingen bij het uitvoeren van de meting.

“Deze informatie is door ons met de nodige zorgvuldigheid samengesteld. Onzerzijds wordt echter geen enkele aansprakelijkheid aanvaard voor enige onvolledigheid, onjuistheid of anderszins, dan wel de gevolgen daarvan. Alle opgegeven maten en oppervlakten zijn indicatief.”

KOOPOVEREENKOMST PAS RECHTSGELDIG NA ONDERTEKENING
Een mondelinge overeenstemming tussen de particuliere verkoper en de particuliere koper is niet rechtsgeldig. Met andere woorden: er is geen koop. Er is pas sprake van een rechtsgeldige koop als de particuliere verkoper en de particuliere koper de koopovereenkomst hebben ondertekend. Dit vloeit voort uit artikel 7:2 Burgerlijk Wetboek. Een bevestiging van de mondelinge overeenstemming per e-mail of een toegestuurd concept van de koopovereenkomst wordt overigens niet gezien als een 'ondertekende koopovereenkomst'.

Kenmerken

Basiskenmerken

  • Status Beschikbaar
  • Koopsom € 500.000 k.k.
  • Woonoppervlakte ca. 140 m2
  • Aantal slaapkamers 4
  • Bouwjaar 1979

Overdracht

  • Aanvaarding In overleg

Bouwvorm & onderhoud

  • Soort object Eindwoning
  • Soort woning Eengezinswoning
  • Bouwjaar 1979
  • Soort bouw woonhuis
  • Ligging In woonwijk

Oppervlakte & inhoud

  • Gebruiksoppervlakte 140m2
  • Perceeloppervlakte 190m2
  • Inhoud 467m3
  • Aantal kamers 5
  • Aantal slaapkamers 4
  • Aantal woonlagen 3 woonlagen

Energie & installatie

  • Energielabel C
  • Isolatie Dubbel glas
  • Verwarming Cv ketel
  • Warm water Cv ketel
  • C.v.-ketel type GAS
  • C.v.-ketel bouwjaar 2010
  • Energie einddatum 2035-02-25

Bergruimte

  • Schuur / berging Vrijstaand hout

Parkeergelegenheid

  • Parkeerfaciliteiten Openbaar parkeren
  • Garage Geen garage

Overig

  • Onderhoud binnen Redelijk
  • Onderhoud buiten Redelijk
  • Permanente bewoning Ja
  • Huidig gebruik Woonruimte
  • Huidige bestemming Woonruimte

Voorzieningen

  • Voorzieningen Schuifpui

Buitenruimte

  • Hoofdtuin ACHTERTUIN
  • Oppervlakte hoofdtuin 126m2
  • Ligging hoofdtuin WEST
  • Kwaliteit tuin Normaal

Kadastrale gegevens

  • Perceelnummer 190
  • Perceeloppervlakte 190
Meer kenmerken

Ontdek online wat jouw huis waard is

Met de online waardecheck ontdek je in een paar minuten de geschatte waarde van jouw huis

Online waardecheck

In de buurt

Geïnteresseerd?

Bel met Van Herk makelaars te Gouda

shape

Stuur een bericht

* Maximaal 255 tekens
privacyverklaring