Chat with us, powered by LiveChat Tirionstraat 49, 2761 LV ZEVENHUIZEN - Van Der Giessen & Van Herk Makelaars

Zevenhuizen

Tirionstraat  49

€ 599.000,- k.k.

Omschrijving

- NIEUW IN DE VERKOOP - IN HET RUSTIGE ZEVENHUIZEN, SWANLA, IS DEZE RUIME TWEE-ONDER-ÉÉN KAPWONING GELEGEN. DE WONING BESCHIKT OVER 164 M² WOONOPPERVLAKTE, 4 SLAAPKAMERS, EEN ACHTERTUIN EN EEN EIGEN PARKEERPLAATS IN DE NAASTGELEGEN PARKEERGARAGE. KORTOM, EEN FIJN FAMILIEHUIS! RUIME FAMILIEWONING: Entree met hal met garderobenis, toilet, meterkast, trapopgang naar de…

- NIEUW IN DE VERKOOP -
IN HET RUSTIGE ZEVENHUIZEN, SWANLA, IS DEZE RUIME TWEE-ONDER-ÉÉN KAPWONING GELEGEN. DE WONING BESCHIKT OVER 164 M² WOONOPPERVLAKTE, 4 SLAAPKAMERS, EEN ACHTERTUIN EN EEN EIGEN PARKEERPLAATS IN DE NAASTGELEGEN PARKEERGARAGE. KORTOM, EEN FIJN FAMILIEHUIS!

RUIME FAMILIEWONING:
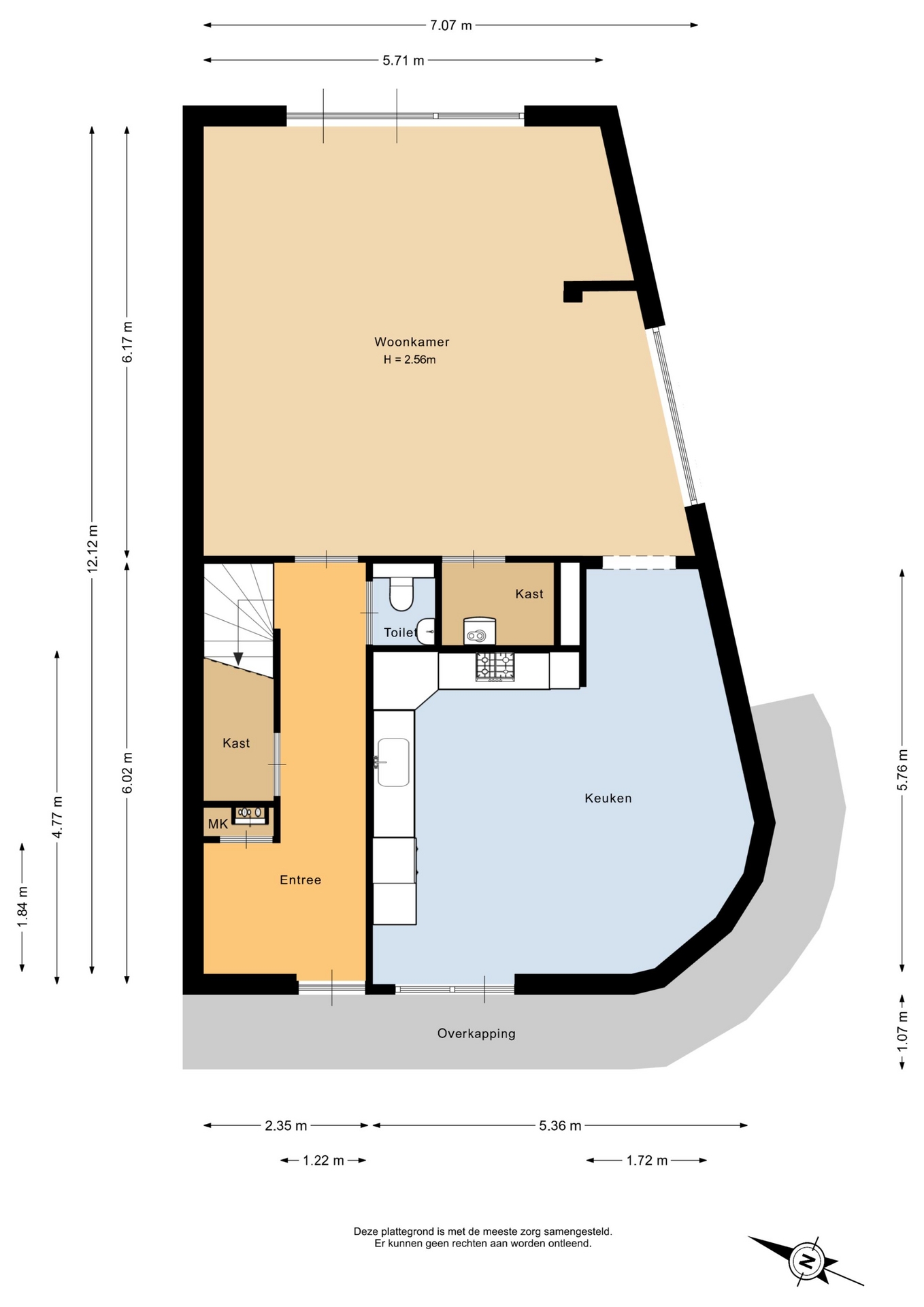
Entree met hal met garderobenis, toilet, meterkast, trapopgang naar de eerste verdieping en toegang tot de woonkamer. Lichte, tuingerichte woonkamer aan de achterzijde van de woning. De woonkamer is uitgebouwd waardoor deze heerlijk ruim is. Het extra raam in de zijgevel is een ware toevoeging! Aan de voorzijde is de halfopen woonkeuken gelegen. Deze is voorzien van alle benodigde inbouwapparatuur.

Op de eerste verdieping zijn 4 slaapkamers en een badkamer te vinden. De master bedroom beschikt tevens over scheidingswand voor het realiseren van een inloopkast. De badkamer is inpandig en volledig betegeld. Deze beschikt tevens over een douche, wastafel met meubel, toilet en de aansluiting voor wasmachine en droger.

SFEERVOLLE ACHTERTUIN:
Middels openslaande deuren is de achtertuin toegankelijk. Deze is gelegen op het oosten, wat het mogelijk maakt om al vroeg van de zon te kunnen genieten. Achterin de tuin is een sfeervolle overkapping gerealiseerd. Hierdoor is het ook mogelijk om met minder weer van de tuin te genieten. Verder is er een houten berging, een buitenkraan en een achterom aanwezig. Hier kom je dus niets tekort.

RUSTIGE WOONOMGEVING:
Zevenhuizen dé plek voor jou! Gelegen in het hart van de Randstad, combineert Zevenhuizen de charme van een dorp met de luxe van moderne voorzieningen. Of je nu houdt van wandelen langs de Rotte, varen over de Rotte richting Rotterdam of gewoon wil genieten van de rust van het platteland, Zevenhuizen biedt voor elk wat wils. Dit sfeervolle dorp staat bekend om zijn warme gemeenschap, authentieke boerderijen en de gezellige Dorpsstraat. Met goede verbindingen naar steden als Rotterdam, Gouda en Den Haag, geniet je hier van het beste van twee werelden: wonen in alle rust, terwijl de stad nooit ver weg is. Zevenhuizen is de perfecte plek om te wonen, werken en ontspannen. Kom langs en ervaar zelf waarom iedereen verliefd wordt op dit bijzondere dorp!

BIJZONDERHEDEN:
- Ruime twee-onder-één kapwoning;
- Bouwjaar 2004
- 164 m² woonoppervlakte;
- Gelegen op 145 m² perceeloppervlakte;
- Uitgebouwde woonkamer met half open keuken;
- 4 slaapkamers;
- Achtertuin met een houten berging;
- Rustige woonomgeving met alleen bestemmingsverkeer;
- Eigen parkeerplaats in de naastgelegen parkeergarage met een maandelijkse bijdrage van €31,92;
- Let op, er wordt een niet-zelfbewoningsclausule opgenomen in de koopovereenkomst;
- Energielabel A, welke geldig is tot 14-03-2035;
- Oplevering in overleg, kan snel.

INTERESSE? MAAK DAN SNEL EEN AFSPRAAK!
Ons advies is om bij het kopen van je nieuwe huis je eigen NVM-makelaar mee te nemen.

TOELICHTINGSCLAUSULE NEN2580:
De Meetinstructie is gebaseerd op de NEN2580. De Meetinstructie is bedoeld om een meer eenduidige manier van meten toe te passen voor het geven van een indicatie van de gebruiksoppervlakte. De Meetinstructie sluit verschillen in meetuitkomsten niet volledig uit, door bijvoorbeeld interpretatieverschillen, afrondingen of beperkingen bij het uitvoeren van de meting.

“Deze informatie is door ons met de nodige zorgvuldigheid samengesteld. Onzerzijds wordt echter geen enkele aansprakelijkheid aanvaard voor enige onvolledigheid, onjuistheid of anderszins, dan wel de gevolgen daarvan. Alle opgegeven maten en oppervlakten zijn indicatief.”

KOOPOVEREENKOMST PAS RECHTSGELDIG NA ONDERTEKENING:
Een mondelinge overeenstemming tussen de particuliere verkoper en de particuliere koper is niet rechtsgeldig. Met andere woorden: er is geen koop. Er is pas sprake van een rechtsgeldige koop als de particuliere verkoper en de particuliere koper de koopovereenkomst hebben ondertekend. Dit vloeit voort uit artikel 7:2 Burgerlijk Wetboek. Een bevestiging van de mondelinge overeenstemming per e-mail of een toegestuurd concept van de koopovereenkomst wordt overigens niet gezien als een 'ondertekende koopovereenkomst'.

Kenmerken

Basiskenmerken

  • Status Beschikbaar
  • Koopsom € 599.000 k.k.
  • Woonoppervlakte ca. 164 m2
  • Aantal slaapkamers 4
  • Bouwjaar 2004

Overdracht

  • Aanvaarding In overleg

Bouwvorm & onderhoud

  • Soort object Twee onder een kapwoning
  • Soort woning Eengezinswoning
  • Bouwjaar 2004
  • Soort bouw woonhuis
  • Ligging Aan rustige weg, in woonwijk

Oppervlakte & inhoud

  • Gebruiksoppervlakte 164m2
  • Perceeloppervlakte 145m2
  • Inhoud 559m3
  • Aantal kamers 5
  • Aantal slaapkamers 4
  • Aantal woonlagen 2 woonlagen

Energie & installatie

  • Energielabel A
  • Isolatie Dakisolatie, muurisolatie, vloerisolatie, dubbel glas, volledig geisoleerd
  • Verwarming Cv ketel
  • Warm water Cv ketel
  • C.v.-ketel type GAS
  • C.v.-ketel bouwjaar 2020
  • Energie einddatum 14-03-2035

Bergruimte

  • Schuur / berging Vrijstaand hout
  • Voorzieningen Voorzien van elektra

Parkeergelegenheid

  • Parkeerfaciliteiten Parkeergarage
  • Garage Geen garage

Dak

  • Soort dak Plat dak

Overig

  • Onderhoud binnen Goed
  • Onderhoud buiten Goed
  • Bijzonderheden Gedeeltelijk gestoffeerd
  • Permanente bewoning Ja
  • Huidig gebruik Woonruimte
  • Huidige bestemming Woonruimte

Voorzieningen

  • Voorzieningen Mechanische ventilatie, tv kabel, natuurlijke ventilatie

Kadastrale gegevens

  • Perceelnummer 2408
  • Perceeloppervlakte 145 m2
Meer kenmerken
Ontdek online wat jouw huis waard is

Met de online waardecheck ontdek je in een paar minuten de geschatte waarde van jouw huis

Online waardecheck

In de buurt

Geïnteresseerd?

Bel met Van Herk makelaars te Capelle aan den IJssel

shape

Stuur een bericht

* Maximaal 255 tekens
privacyverklaring