Chat with us, powered by LiveChat Schieweg 22 A, 3039 BA ROTTERDAM - Van Der Giessen & Van Herk Makelaars

Rotterdam

Schieweg 22 A

€ 425.000,- k.k.

Omschrijving

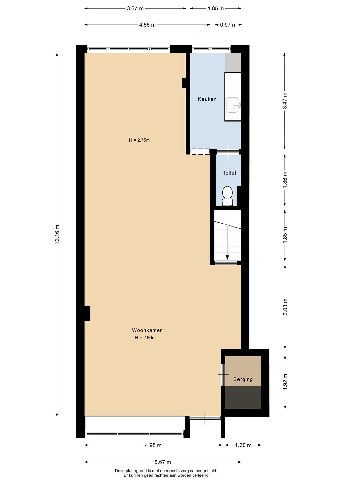
Creëer je eigen droomhuis: royale benedenwoning van 149 m2 met 15 meter diepe tuin op het Zuidwesten! LET OP DIENT VOLLEDIG GERENOVEERD TE WORDEN Ben je op zoek naar een woning waar je jouw eigen droomhuis kunt realiseren? Deze royale benedenwoning van circa 149 m² met een ruime tuin op het zuidwesten aan de Schieweg biedt precies dat. JOUW CREATIEVE VRIJHEID Dit huis…

Creëer je eigen droomhuis: royale benedenwoning van 149 m2 met 15 meter diepe tuin op het Zuidwesten!

LET OP DIENT VOLLEDIG GERENOVEERD TE WORDEN

Ben je op zoek naar een woning waar je jouw eigen droomhuis kunt realiseren? Deze royale benedenwoning van circa 149 m² met een ruime tuin op het zuidwesten aan de Schieweg biedt precies dat.

JOUW CREATIEVE VRIJHEID
Dit huis biedt eindeloze mogelijkheden om het naar jouw eigen smaak en wensen te renoveren. Het is de perfecte kans om een woning volledig naar eigen inzicht te creëren. Van het kiezen van hoogwaardige materialen tot het indelen van de ruime leefruimtes, hier kan het allemaal.

ALLES BINNEN HANDBEREIK
Gelegen aan de rand van het centrum biedt deze woning het beste van twee werelden: de rust van een woonwijk en de dynamiek van de stad. Binnen enkele minuten ben je bij het Vroesenpark voor een ontspannen wandeling, of in Blijdorp voor een gezellig ijsje. Met het openbaar vervoer voor de deur en het Centraal Station op slechts vijf minuten loopafstand, is deze locatie uiterst praktisch. Daarnaast ben je in een mum van tijd op de snelweg en zijn alle dagelijkse voorzieningen zoals winkels, crèches en scholen binnen 500 meter te vinden.

JOUW NIEUWE THUIS WACHT OP JOU
Deze dubbele benedenwoning biedt jou de unieke kans om jouw eigen visie tot leven te brengen. Met een prachtige ligging, een royaal woonoppervlak en de mogelijkheid om de woning volledig naar jouw hand te zetten, is dit de perfecte basis voor jouw nieuwe thuis. Wacht niet langer en grijp deze kans om een woning te creëren die volledig aan jouw wensen voldoet.

KENMERKEN:
- Eigen grond
- Woonoppervlakte ca. 149 m2
- Ruime tuin op het zuidwesten, ideaal voor zonnige dagen
- Prachtige, centrale ligging in de stad
- Actieve Vereniging van Eigenaren (VVE), bijdrage ca. € 155,- per maand
- Splitsingsakte reeds gewijzigd voor gebruik woning
- Ouderdomsclausule van toepassing
- Niet-zelfbewoningsclausule van toepassing
- Oplevering in overleg, kan snel

INTERESSE? MAAK DAN SNEL EEN AFSPRAAK!
Ons advies is om bij het kopen van jouw nieuwe woning jouw eigen NVM makelaar mee te nemen.

TOELICHTINGSCLAUSULE NEN2580
De Meetinstructie is gebaseerd op de NEN2580. De Meetinstructie is bedoeld om een meer eenduidige manier van meten toe te passen voor het geven van een indicatie van de gebruiksoppervlakte. De Meetinstructie sluit verschillen in meetuitkomsten niet volledig uit, door bijvoorbeeld interpretatieverschillen, afrondingen of beperkingen bij het uitvoeren van de meting.

KOOPOVEREENKOMST PAS RECHTSGELDIG NA ONDERTEKENING
Een mondelinge overeenstemming tussen de particuliere verkoper en de particuliere koper is niet rechtsgeldig. Met andere woorden: er is geen koop. Er is pas sprake van een rechtsgeldige koop als de particuliere verkoper en de particuliere koper de koopovereenkomst hebben ondertekend. Dit vloeit voort uit artikel 7:2 Burgerlijk Wetboek. Een bevestiging van de mondelinge overeenstemming per e-mail of een toegestuurd concept van de koopovereenkomst wordt overigens niet gezien als een 'ondertekende koopovereenkomst'

“Deze informatie is door ons met de nodige zorgvuldigheid samengesteld. Onzerzijds wordt echter geen enkele aansprakelijkheid aanvaard voor enige onvolledigheid, onjuistheid of anderszins, dan wel de gevolgen daarvan. Alle opgegeven maten en oppervlakten zijn indicatief.”

Kenmerken

Basiskenmerken

  • Status Onder bod
  • Koopsom € 425.000 k.k.
  • Woonoppervlakte ca. 149 m2
  • Aantal slaapkamers 2
  • Bouwjaar 1937

Overdracht

  • Aanvaarding In overleg

Bouwvorm & onderhoud

  • Bouwjaar 1937
  • Soort bouw woonhuis

Oppervlakte & inhoud

  • Gebruiksoppervlakte 149m2
  • Inhoud 548m3
  • Aantal kamers 4
  • Aantal slaapkamers 2
  • Aantal woonlagen 2 woonlagen

Energie & installatie

  • Energielabel G
  • Isolatie Gedeeltelijk dubbel glas
  • Verwarming Cv ketel
  • Warm water Cv ketel
  • Energie einddatum 2028-02-26

Parkeergelegenheid

  • Parkeerfaciliteiten Betaald parkeren, parkeervergunningen
  • Garage Geen garage

Dak

  • Soort dak Plat dak

Overig

  • Onderhoud binnen Slecht tot matig
  • Onderhoud buiten Redelijk tot goed
  • Bijzonderheden Kluswoning
  • Permanente bewoning Ja
  • Huidig gebruik Woonruimte
  • Huidige bestemming Woonruimte

Voorzieningen

  • Voorzieningen Natuurlijke ventilatie

Kadastrale gegevens

Meer kenmerken

Ontdek online wat jouw huis waard is

Met de online waardecheck ontdek je in een paar minuten de geschatte waarde van jouw huis

Online waardecheck

In de buurt

Geïnteresseerd?

Bel met Van Der Giessen & Van Herk Makelaars

shape

Stuur een bericht

* Maximaal 255 tekens
privacyverklaring