 
                                 
                                         
                                        Schoonhoven
Koestraat 60
€ 575.000,- k.k.
Omschrijving
- KARAKTERISTIEK WOONHUIS IN DE BINNENSTAD MET VEEL MOGELIJKHEDEN - Een voormalig pakhuis, en met een woonoppervlakte van maar liefst 222m² een woonhuis met heel veel mogelijkheden! PLUSPUNTEN - Bouwjaar 1920; - pvc vloer van Mflor (2019) in gehele woning; - Schilderwerk 2021; - Krachtstroom op begane grond; - Binnen en buiten zonwering (2021 van Velux); - Boven ramen…
- KARAKTERISTIEK WOONHUIS IN DE BINNENSTAD MET VEEL MOGELIJKHEDEN -
Een voormalig pakhuis, en met een woonoppervlakte van maar liefst 222m² een woonhuis met heel veel mogelijkheden!
PLUSPUNTEN
- Bouwjaar 1920;
- pvc vloer van Mflor (2019) in gehele woning;
- Schilderwerk 2021;
- Krachtstroom op begane grond;
- Binnen en buiten zonwering (2021 van Velux);
- Boven ramen begane grond met afstandsbediening te openen/sluiten;
- Walltherm CV houtkachel met vergasser warmte opslag in boiler;
- Gelegen in het sfeervolle stadscentrum van Schoonhoven;
- Energielabel D;
- Uitermate geschikt om wonen en werken te combineren;
- Oplevering in overleg.
VERKOPER AAN HET WOORD
Wij wonen er nu 10 jaar en met veel plezier een glasblazen atelier gehad. Het dakterras tot daktuin omgetoverd om toch het groen van een tuin om je heen te ervaren. Door de hoogte en gunstige (west) ligging is er zon tot ondergang. Ook in het vroege voorjaar is het al heerlijk! In de zomer scheren de zwaluwen vlak over je hoofd.
De breedte van het huis en de hoge plafonds geeft een heerlijk vrijheidsgevoel. De open keuken en woonkamer is heel gezellig ook met visite. Zo ben je toch erbij met koken.
Het sfeervolle stadscentrum van Schoonhoven is direct om de hoek gelegen en dit geldt ook voor de rivier de Lek, sportvelden en het openbaar vervoer.
De entree is aan twee zijden. Zowel in de Koestraat als in de Appelstraat. Dat is handig voor kantoor of praktijk aan huis.
INDELING
BEGANE GROND
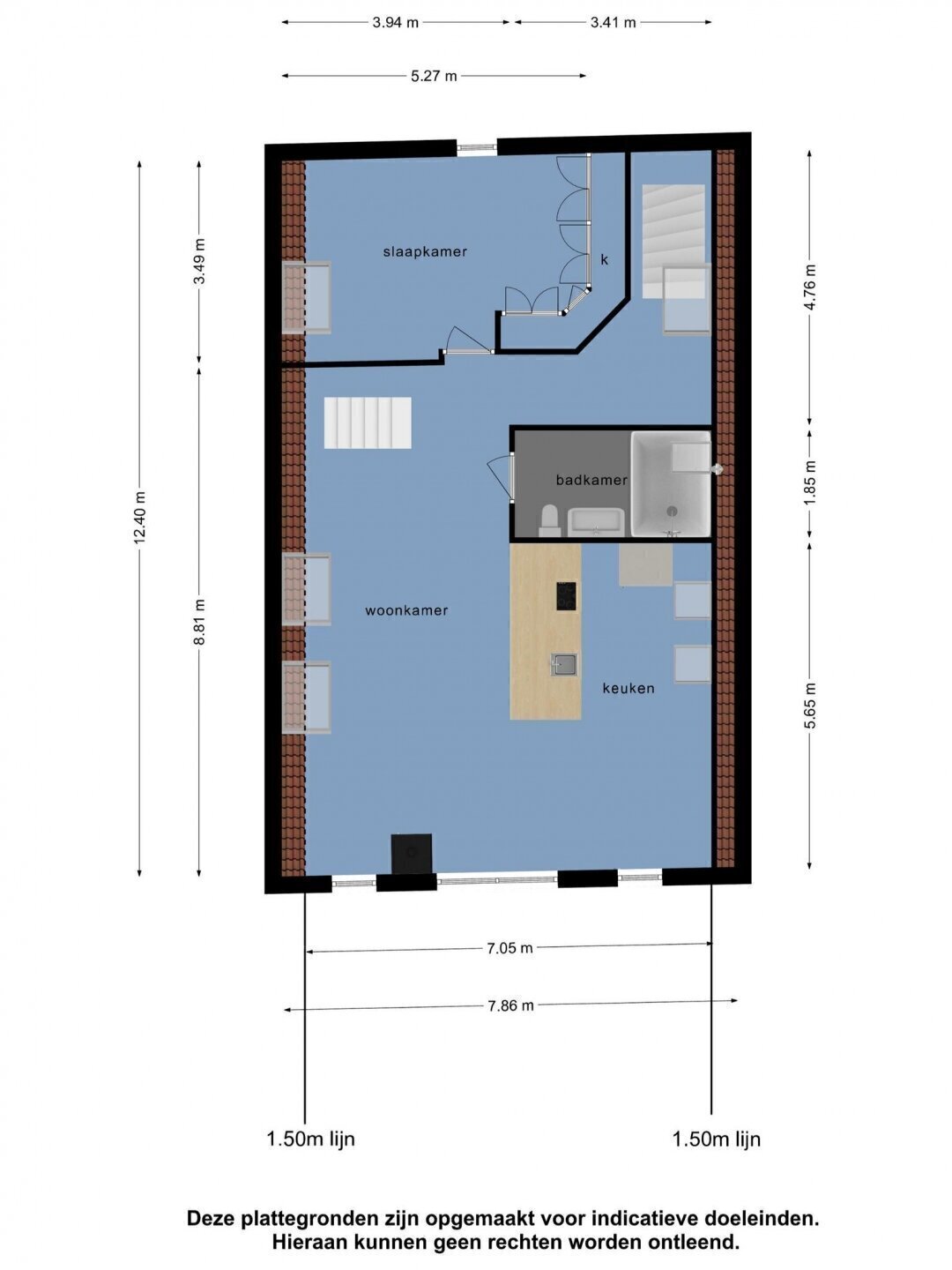
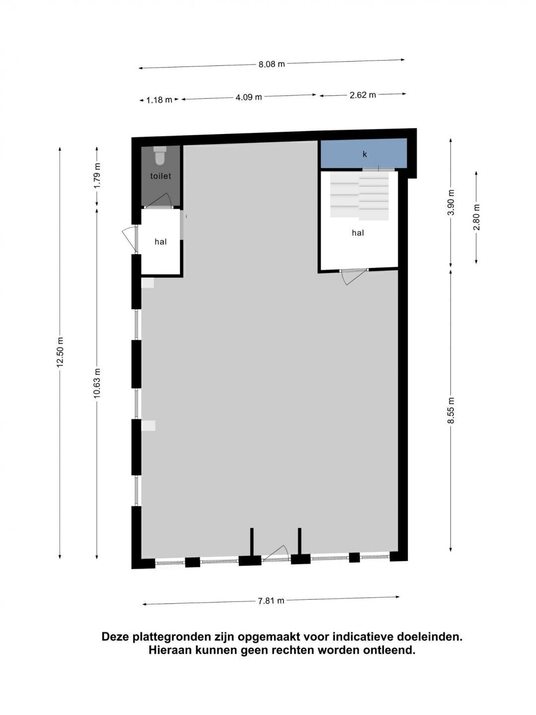
We komen binnen via de Koestraat en treffen een enorme ruimte aan van 83m². De ruimte heeft een enorme nokhoogte met het oude balkenplafond en op de vloer een “beton-look”. Er is genoeg ruimte om kamers te maken, kantoor, praktijk, studio, geef het een eigen invulling.
Aan de achterzijde bevindt zich een ruimte met een kleine verhoging in de vloer. Met daarnaast een aparte hal en toegang naar de Appelstraat en een apart toilet. Aan de andere zijde de trapopgang naar de verdieping. Via een hal en een vaste trapopgang bereik je de 1e verdieping.
EERSTE VERDIEPING
Via een open tussenhal komen we terecht in de living. Een bijzondere ruimte, de nok in het zicht, zelfs de oude hijsbalk is te zien, de dakramen, kapconstructie...wat een sfeer en beleving! Om de ruimte wat te breken is de keuken geplaatst op een verhoging. Een kookeiland met stenen aanrechtblad welke voorzien is van diverse inbouwapparatuur.
Aan de achterzijde is de slaapkamer van 5.27 x 3.49 met vaste kastenwand. Aan de zijkant is de moderne badkamer met vloerverwarming en voorzien van een toilet, wastafel met meubel en een twee persoons jacuzzi met stortdouche en handdouche.
Via een open steektrap komt u op de 2e verdieping terecht. Een open ruimte wederom geschikt voor diverse doeleinden met vaste bergruimte en een CV kast (CV-ketel 2020) en toegang tot de daktuin. Dit terras is fraai. Zeer zonnig van de vroege ochtend tot en met de ondergaande zon en met automatische bewatering van alle gemakken voorzien.
STUKJE GESCHIEDENIS
Van oorsprong is het pand een oud koetshuis. De paarden stonden achterin op de begane grond waar als het goed is zelfs nog een waterput zit. Aan de voorkant waren grote schuifdeuren (de rails is nog aanwezig).
De dochter van een werknemer van het koetshuis vertelde dat ze veel gespeeld heeft in het huis en het verhaal over De oorlog. Tijdens de oorlog is het door de Duitsers gevorderd en werd het een aardappel pakhuis. Ze woonde in het huisje naast het koetshuis en gingen via het achterraam geregeld aardappels stelen. Een keer werden ze bijna betrapt en hebben uren onder de aardappels verstopt gelegen.
Een lange tijd heeft de begane grond als garage gediend. Een kunstenaar heeft het vervolgens verbouwd tot atelier ruimte met boven de woonruimte.
* Let op; Foto 2 en 3 van de presentatie zijn artist impressions.
TOELICHTINGSCLAUSULE NEN2580
De Meetinstructie is gebaseerd op de NEN2580. De Meetinstructie is bedoeld om een meer eenduidige manier van meten toe te passen voor het geven van een indicatie van de gebruiksoppervlakte. De Meetinstructie sluit verschillen in meetuitkomsten niet volledig uit, door bijvoorbeeld interpretatieverschillen, afrondingen of beperkingen bij het uitvoeren van de meting.
KOOPOVEREENKOMST PAS RECHTSGELDIG NA ONDERTEKENING
Een mondelinge overeenstemming tussen de particuliere verkoper en de particuliere koper is niet rechtsgeldig. Met andere woorden: er is geen koop. Er is pas sprake van een rechtsgeldige koop als de particuliere verkoper en de particuliere koper de koopovereenkomst hebben ondertekend. Dit vloeit voort uit artikel 7:2 Burgerlijk Wetboek. Een bevestiging van de mondelinge overeenstemming per e-mail of een toegestuurd concept van de koopovereenkomst wordt overigens niet gezien als een 'ondertekende koopovereenkomst'
“Deze informatie is door ons met de nodige zorgvuldigheid samengesteld. Onzerzijds wordt echter geen enkele aansprakelijkheid aanvaard voor enige onvolledigheid, onjuistheid of anderszins, dan wel de gevolgen daarvan. Alle opgegeven maten en oppervlakten zijn indicatief.”
Kenmerken
Basiskenmerken
- Status Beschikbaar
- Koopsom € 575.000 k.k.
- Woonoppervlakte ca. 222 m2
- Aantal slaapkamers 2
- Bouwjaar 1920
Overdracht
- Aanvaarding In overleg
Bouwvorm & onderhoud
- Soort object Hoekwoning
- Soort woning Eengezinswoning
- Bouwjaar 1920
- Soort bouw woonhuis
- Ligging In centrum
Oppervlakte & inhoud
- Gebruiksoppervlakte 222m2
- Perceeloppervlakte 110m2
- Inhoud 750m3
- Aantal kamers 4
- Aantal slaapkamers 2
- Aantal woonlagen 3 woonlagen
Energie & installatie
- Energielabel D
- Isolatie Dubbel glas
- Verwarming Cv ketel
- Warm water Cv ketel
- C.v.-ketel type GAS
- C.v.-ketel bouwjaar 2020
- Energie einddatum 2032-05-10
Parkeergelegenheid
- Parkeerfaciliteiten Openbaar parkeren
- Garage Geen garage
Dak
- Soort dak Mansarde dak
Overig
- Onderhoud binnen Goed
- Onderhoud buiten Goed
- Permanente bewoning Ja
- Huidig gebruik Woonruimte
- Huidige bestemming Woonruimte
Voorzieningen
- Voorzieningen Mechanische ventilatie, tv kabel
Buitenruimte
- Hoofdtuin ZONNETERRAS
- Oppervlakte hoofdtuin 18m2
- Ligging hoofdtuin WEST
- Kwaliteit tuin Verzorgd
Kadastrale gegevens
- Perceelnummer 110
- Perceeloppervlakte 110
 
            Ontdek online wat jouw huis waard is
Met de online waardecheck ontdek je in een paar minuten de geschatte waarde van jouw huis
Online waardecheck 
                                         
                                         
                                         
                                     
                                     
                                     
                                     
                                     
                                     
                                     
                                     
                                     
                                     
                                     
                                     
                                     
                                     
                                     
                                     
                                     
                                     
                                     
                                     
                                     
                                     
                                     
                                     
                                     
                                     
                                     
                                     
                                     
                                     
                                     
                                     
                                     
                                     
                                     
                                     
                                     
                                     
                                     
                                     
                                     
                                     
                                     
                                     
                                     
                                     
                                    