Chat with us, powered by LiveChat Haifaweg 65, 3193 EB HOOGVLIET ROTTERDAM - Van Der Giessen & Van Herk Makelaars

Hoogvliet Rotterdam

Haifaweg 65

€ 550.000,- k.k.

Omschrijving

NVM OPEN HUIS ZATERDAG 5 APRIL 2025 TUSSEN 11:00 - 15:00 UUR. Deze instapklare woning, gebouwd in 2022, is de perfecte combinatie van modern comfort, duurzaamheid en stijl. Gelegen in de gewilde wijk Westpunt, biedt deze woning alles wat je nodig hebt voor een comfortabel en toekomstbestendig leven. Dankzij de nieuwste bouwtechnieken en energiezuinige voorzieningen, is…

NVM OPEN HUIS ZATERDAG 5 APRIL 2025 TUSSEN 11:00 - 15:00 UUR.

Deze instapklare woning, gebouwd in 2022, is de perfecte combinatie van modern comfort, duurzaamheid en stijl. Gelegen in de gewilde wijk Westpunt, biedt deze woning alles wat je nodig hebt voor een comfortabel en toekomstbestendig leven. Dankzij de nieuwste bouwtechnieken en energiezuinige voorzieningen, is deze woning niet alleen een luxe thuis, maar ook een verantwoorde keuze voor de toekomst.

DROOM KEUKEN VOORZIEN VAN HOOGWAARDIGE INBOUWAPPARATUUR
De keuken is een droom voor elke kookliefhebber! Met een kookeiland voorzien van een Bora inductiekookplaat inclusief geïntegreerde afzuiging, twee ovens, een Quooker voor direct kokend water en een vaatwasser, is deze keuken perfect voor het bereiden van de lekkerste maaltijden. Of je nu een gezellige maaltijd kookt voor het gezin of een uitgebreid diner voor vrienden, je hebt alle ruimte en apparatuur om je culinaire creaties tot leven te brengen.

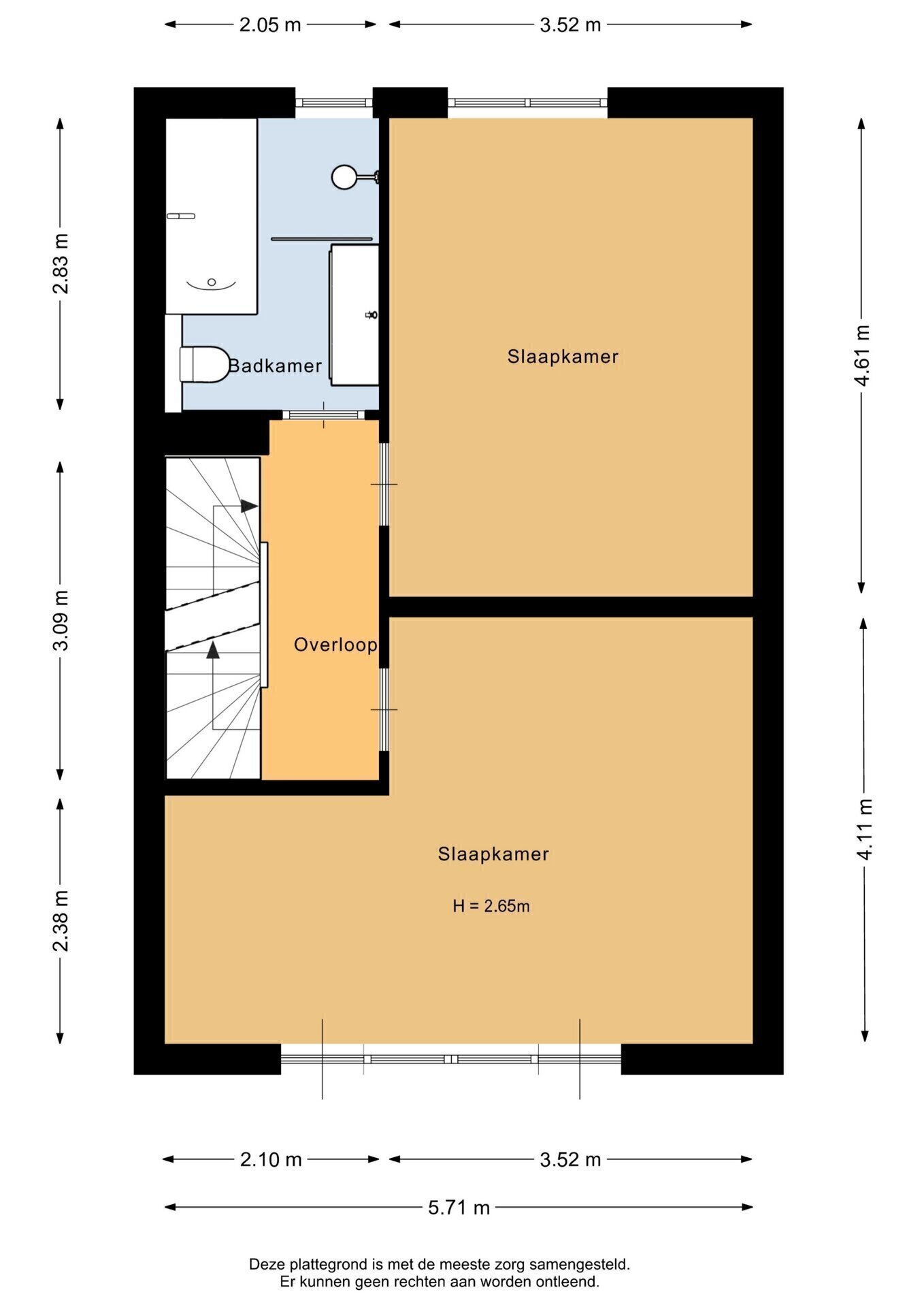
VIJF SLAAPKAMERS EN EEN OASE VAN RUST IN DE BADKAMER
Deze woning beschikt over vijf ruime slaapkamers, ideaal voor een groot gezin, een thuiskantoor, of zelfs een creatieve hobbyruimte. De mogelijkheden zijn eindeloos! De moderne badkamer is een waar toevluchtsoord, met een inloopdouche en ligbad waar je kunt genieten van totale ontspanning na een drukke dag.

ALTIJD PARKEERPLEK EN DE OCHTENDZON
In de achtertuin kun je heerlijk van de ochtendzon genieten, een perfecte plek om de dag rustig te beginnen met een kop koffie. De woning beschikt bovendien over een carport, zodat je je auto altijd droog en beschermd kunt parkeren. Dit is een enorme meerwaarde, vooral tijdens regenachtige dagen. Daarnaast is er de mogelijkheid om een aansluiting voor een elektrische auto aan te leggen, zodat je nooit meer hoeft te zoeken naar een laadplek!

DUURZAAM EN ENERGIEZUINIG WONEN
De woning is volledig energieneutraal en voorzien van zonnepanelen en een warmte-terugwinningssysteem, wat zorgt voor een optimaal binnenklimaat en lage energiekosten. Je zult merken dat het comfort dat deze woning biedt, gepaard gaat met een lage energierekening. Het is dus niet alleen goed voor het milieu, maar ook voor je portemonnee!

DYNAMISCHE, GROENE EN KINDVRIENDLIJKE OMGEVING
De woning is gelegen in Westpunt, een dynamische, groene en kindvriendelijke wijk. De buurt biedt een uitstekende mix van rust en gemak, met alle belangrijke voorzieningen zoals winkels, scholen en openbaar vervoer op korte afstand. Het is de ideale locatie voor gezinnen die op zoek zijn naar een rustige, maar toch goed verbonden plek om te wonen.

Daarnaast kun je in de nabije omgeving genieten van Park De Heerlijkheid, een prachtig groen gebied waar je kunt wandelen, ontspannen of actief zijn in de natuur. Of je nu in de buurt wilt sporten, picknicken of gewoon tot rust wilt komen, dit park biedt de perfecte gelegenheid.

KENMERKEN:
- Bouwjaar 2022;
- Eigen grond;
- Woonoppervlakte: 155 m²;
- Energielabel A+++;
- Carport voor één auto;
- Vijf slaapkamers;
- Tuin met stenen berging en achterom;
- Goede bereikbaarheid voor het openbaar vervoer en naar de snelweg;
- Goede bereikbaarheid naar voorzieningen zoals, winkels, scholen en kinderopvang;
- Park 'De Heerlijkheid' op loopafstand;
- Stadsverwarming;
- Oplevering in overleg.

INTERESSE? MAAK DAN SNEL EEN AFSPRAAK!
Ons advies is om bij het kopen van jouw nieuwe woning jouw eigen NVM-makelaar mee te nemen.

TOELICHTINGSCLAUSULE NEN2580
De Meetinstructie is gebaseerd op de NEN2580. De Meetinstructie is bedoeld om een meer eenduidige manier van meten toe te passen voor het geven van een indicatie van de gebruiksoppervlakte. De Meetinstructie sluit verschillen in meetuitkomsten niet volledig uit, door bijvoorbeeld interpretatieverschillen, afrondingen of beperkingen bij het uitvoeren van de meting.

KOOPOVEREENKOMST PAS RECHTSGELDIG NA ONDERTEKENING
Een mondelinge overeenstemming tussen de particuliere verkoper en de particuliere koper is niet rechtsgeldig. Met andere woorden: er is geen koop. Er is pas sprake van een rechtsgeldige koop als de particuliere verkoper en de particuliere koper de koopovereenkomst hebben ondertekend. Dit vloeit voort uit artikel 7:2 Burgerlijk Wetboek. Een bevestiging van de mondelinge overeenstemming per e-mail of een toegestuurd concept van de koopovereenkomst wordt overigens niet gezien als een 'ondertekende koopovereenkomst'

“Deze informatie is door ons met de nodige zorgvuldigheid samengesteld. Onzerzijds wordt echter geen enkele aansprakelijkheid aanvaard voor enige onvolledigheid, onjuistheid of anderszins, dan wel de gevolgen daarvan. Alle opgegeven maten en oppervlakten zijn indicatief.”

Kenmerken

Basiskenmerken

  • Status Onder bod
  • Koopsom € 550.000 k.k.
  • Woonoppervlakte ca. 155 m2
  • Aantal slaapkamers 5
  • Bouwjaar 2022

Overdracht

  • Aanvaarding In overleg

Bouwvorm & onderhoud

  • Soort object Tussenwoning
  • Soort woning Eengezinswoning
  • Bouwjaar 2022
  • Soort bouw woonhuis
  • Ligging Aan rustige weg, in woonwijk, vrij uitzicht, in bosrijke omgeving

Oppervlakte & inhoud

  • Gebruiksoppervlakte 155m2
  • Perceeloppervlakte 129m2
  • Inhoud 544m3
  • Aantal kamers 7
  • Aantal slaapkamers 5
  • Aantal woonlagen 3 woonlagen

Energie & installatie

  • Energielabel A+++
  • Isolatie Dakisolatie, muurisolatie, vloerisolatie, hr glas
  • Verwarming Stadsverwarming, vloerverwarming geheel, warmte terugwininstallatie
  • Warm water Centrale voorziening
  • Energie einddatum 2032-10-18

Bergruimte

  • Schuur / berging Aangebouwd hout
  • Voorzieningen Voorzien van elektra

Parkeergelegenheid

  • Parkeerfaciliteiten Openbaar parkeren, op eigen terrein
  • Garage Carport

Dak

  • Soort dak Plat dak

Overig

  • Onderhoud binnen Goed tot uitstekend
  • Onderhoud buiten Goed tot uitstekend
  • Bijzonderheden Gedeeltelijk gestoffeerd
  • Permanente bewoning Ja
  • Huidig gebruik Woonruimte
  • Huidige bestemming Woonruimte

Voorzieningen

  • Voorzieningen Mechanische ventilatie, schuifpui, glasvezel kabel, zonnepanelen, natuurlijke ventilatie

Buitenruimte

  • Hoofdtuin ACHTERTUIN
  • Oppervlakte hoofdtuin 46m2
  • Ligging hoofdtuin NOORDOOST
  • Kwaliteit tuin Fraai aangelegd

Kadastrale gegevens

  • Perceelnummer 129
  • Perceeloppervlakte 129
Meer kenmerken

Ontdek online wat jouw huis waard is

Met de online waardecheck ontdek je in een paar minuten de geschatte waarde van jouw huis

Online waardecheck

In de buurt

Geïnteresseerd?

Bel met Van Der Giessen & Van Herk Makelaars

shape

Stuur een bericht

* Maximaal 255 tekens
privacyverklaring