Chat with us, powered by LiveChat Groene Hilledijk 276 B 01, 3074 AE ROTTERDAM - Van Der Giessen & Van Herk Makelaars

Rotterdam

Groene Hilledijk 276 B 01

€ 215.000,- k.k.

Omschrijving

Instapklaar tweekamerappartement met moderne afwerking en balkon in Rotterdam-Zuid Ben je op zoek naar een appartement waar je zonder gedoe in kunt trekken? Dit nette appartement aan de Groene Hilledijk 276 B 01 combineert comfort, een logische indeling en een prettige locatie. Met een lichte woonkamer, gesloten keuken, ruime slaapkamer, moderne badkamer én balkon met…

Instapklaar tweekamerappartement met moderne afwerking en balkon in Rotterdam-Zuid

Ben je op zoek naar een appartement waar je zonder gedoe in kunt trekken? Dit nette appartement aan de Groene Hilledijk 276 B 01 combineert comfort, een logische indeling en een prettige locatie. Met een lichte woonkamer, gesloten keuken, ruime slaapkamer, moderne badkamer én balkon met vrij uitzicht woon je hier comfortabel en praktisch.

MODERNE AFWERKING EN LICHTE WOONKAMER
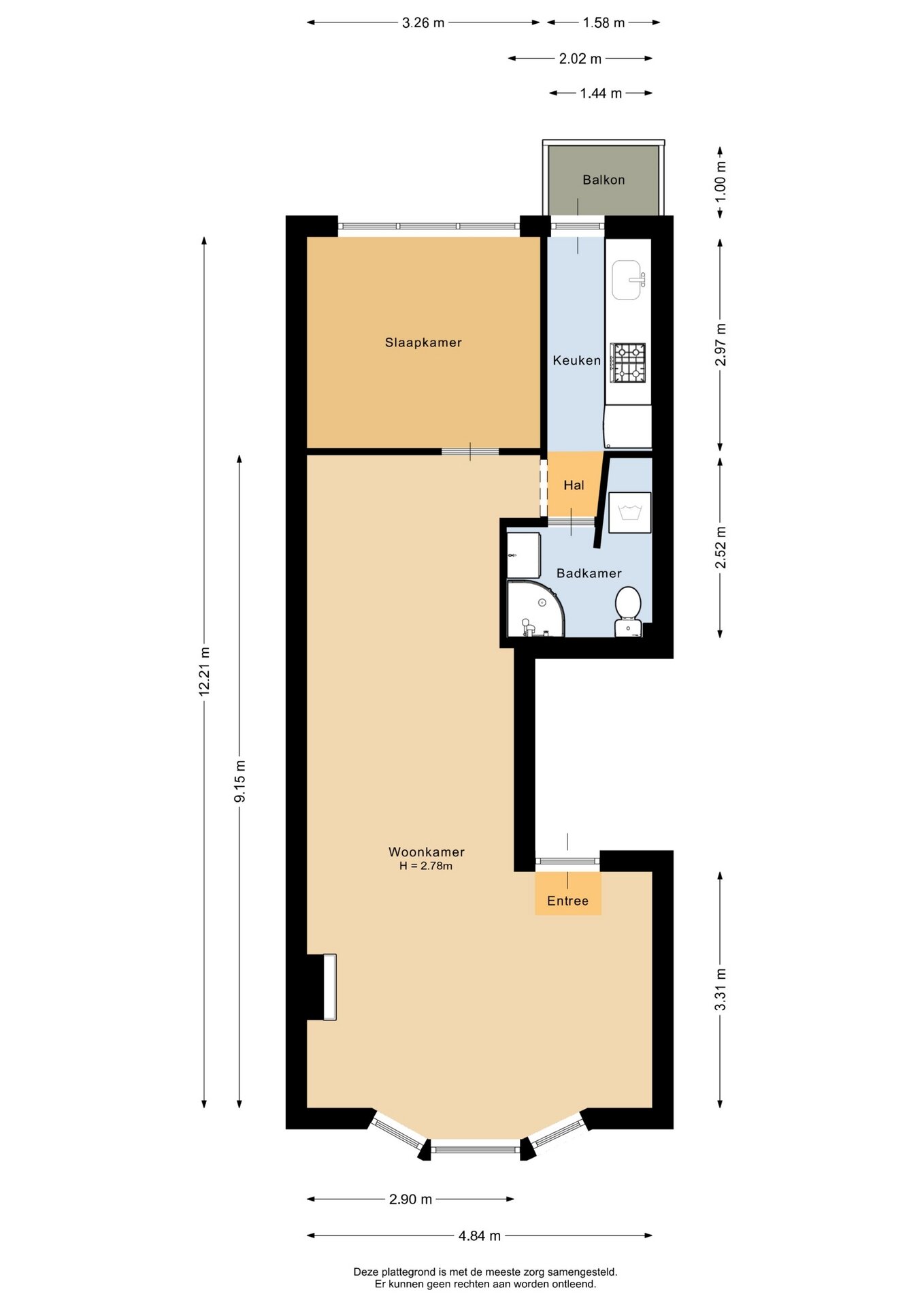
Het appartement is netjes afgewerkt en direct bewoonbaar. Zowel de keuken als de badkamer zijn modern uitgevoerd en in goede staat, waardoor je geen grote klussen hoeft aan te pakken. Zo kun je vanaf dag één genieten van jouw nieuwe thuis. De woonkamer is strak afgewerkt en voelt ruim aan door de grote ramen die veel daglicht binnenlaten. Een fijne plek om zowel een gezellige zithoek als een eettafel te creëren.

RUIME SLAAPKAMER, MODERNE BADKAMER EN BALKON
Aan de achterzijde ligt de ruime slaapkamer met plek voor een tweepersoonsbed en kastruimte. De moderne badkamer is betegeld en voorzien van een douche, wastafelmeubel en aansluiting voor de wasmachine. Vanuit de slaapkamer en keuken heb je toegang tot het balkon met uitzicht over de binnentuinen - een rustige plek om even buiten te zitten.

KENMERKEN:
- Eigen grond
- Bouwjaar: 1926
- Energielabel: C
- Woonoppervlakte: ca. 54 m²
- Balkon aan de achterzijde
- Aantal kamers: 2 (waarvan 1 slaapkamer)
- Ligging: centraal in Rotterdam-Zuid, nabij winkels en OV
- Actieve VvE-bijdrage: € 66 per maand (Dakrenovatie ca. 10 jaar geleden)
- Ouderdoms- en niet-zelfbewoningsclausule van toepassing
- Oplevering kan snel

INTERESSE? MAAK DAN SNEL EEN AFSPRAAK!
Ons advies is om bij het kopen van jouw nieuwe woning jouw eigen NVM-makelaar mee te nemen.

TOELICHTINGSCLAUSULE NEN2580
De Meetinstructie is gebaseerd op de NEN2580. De Meetinstructie is bedoeld om een meer eenduidige manier van meten toe te passen voor het geven van een indicatie van de gebruiksoppervlakte. De Meetinstructie sluit verschillen in meetuitkomsten niet volledig uit, door bijvoorbeeld interpretatieverschillen, afrondingen of beperkingen bij het uitvoeren van de meting.

KOOPOVEREENKOMST PAS RECHTSGELDIG NA ONDERTEKENING
Een mondelinge overeenstemming tussen de particuliere verkoper en de particuliere koper is niet rechtsgeldig. Met andere woorden: er is geen koop. Er is pas sprake van een rechtsgeldige koop als de particuliere verkoper en de particuliere koper de koopovereenkomst hebben ondertekend. Dit vloeit voort uit artikel 7:2 Burgerlijk Wetboek. Een bevestiging van de mondelinge overeenstemming per e-mail of een toegestuurd concept van de koopovereenkomst wordt overigens niet gezien als een 'ondertekende koopovereenkomst'

Kenmerken

Basiskenmerken

  • Status Verkocht onder voorbehoud
  • Koopsom € 215.000 k.k.
  • Woonoppervlakte ca. 54 m2
  • Aantal slaapkamers 1
  • Bouwjaar 1926

Overdracht

  • Aanvaarding In overleg

Bouwvorm & onderhoud

  • Bouwjaar 1926
  • Soort bouw woonhuis
  • Ligging In woonwijk

Oppervlakte & inhoud

  • Gebruiksoppervlakte 54m2
  • Inhoud 188m3
  • Aantal kamers 2
  • Aantal slaapkamers 1
  • Aantal woonlagen 1 woonlagen

Energie & installatie

  • Energielabel C
  • Isolatie Dubbel glas, gedeeltelijk dubbel glas, grotendeels dubbelglas
  • Verwarming Cv ketel
  • Warm water Cv ketel
  • C.v.-ketel type GAS
  • C.v.-ketel bouwjaar 2020
  • Energie einddatum 2030-08-05

Parkeergelegenheid

  • Parkeerfaciliteiten Openbaar parkeren, betaald parkeren, parkeervergunningen
  • Garage Geen garage

Dak

  • Soort dak Zadeldak

Overig

  • Onderhoud binnen Goed
  • Onderhoud buiten Redelijk tot goed
  • Bijzonderheden Gedeeltelijk gestoffeerd
  • Permanente bewoning Ja
  • Huidig gebruik Woonruimte
  • Huidige bestemming Woonruimte

Voorzieningen

  • Voorzieningen Natuurlijke ventilatie

Kadastrale gegevens

  • Perceelnummer 4615
Meer kenmerken

Ontdek online wat jouw huis waard is

Met de online waardecheck ontdek je in een paar minuten de geschatte waarde van jouw huis

Online waardecheck

Media

In de buurt