Chat with us, powered by LiveChat Goudsesingel 386, 3011 KM ROTTERDAM - Van Der Giessen & Van Herk Makelaars

Rotterdam

Goudsesingel  386

€ 375.000,- k.k.

Omschrijving

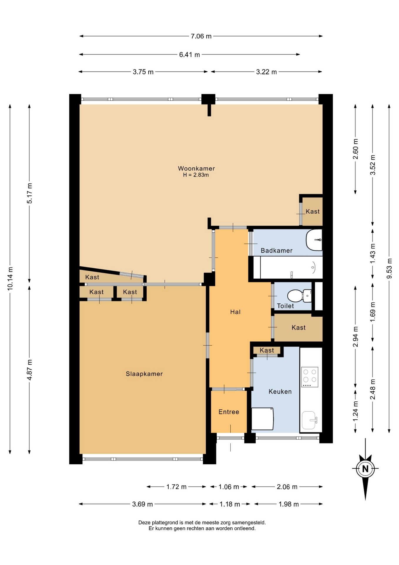
Starterskans met veel lichtinval aan de Goudsesingel Aan de levendige Goudsesingel 386 ligt dit ruime 2/3-kamerappartement met de mogelijkheid om eenvoudig een derde kamer te realiseren. Een ideale kans voor starters die midden in de stad willen wonen én hun woning naar eigen smaak verder willen perfectioneren. Het appartement bevindt zich op de derde woonlaag van een…

Starterskans met veel lichtinval aan de Goudsesingel

Aan de levendige Goudsesingel 386 ligt dit ruime 2/3-kamerappartement met de mogelijkheid om eenvoudig een derde kamer te realiseren. Een ideale kans voor starters die midden in de stad willen wonen én hun woning naar eigen smaak verder willen perfectioneren.

Het appartement bevindt zich op de derde woonlaag van een solide complex uit 1952 en beschikt over circa 70 m² woonoppervlakte. De basis is goed en praktisch ingedeeld: na het leggen van een vloer is de woning direct te betrekken.

FLEXIBELE INDELING MET POTENTIE
De huidige indeling bestaat uit een ruime woonkamer en één slaapkamer. Dankzij de efficiënte opzet is het mogelijk om een extra kamer te creëren, bijvoorbeeld een tweede slaapkamer of een aparte werkruimte.

De keuken is modern uitgevoerd en direct te gebruiken. De badkamer heeft een authentieke uitstraling, is netjes onderhouden en functioneel. Dit biedt de mogelijkheid om hier in de toekomst desgewenst een eigen draai aan te geven, zonder dat directe aanpassingen noodzakelijk zijn.

WONEN IN HET HART VAN ROTTERDAM
De ligging is zonder twijfel een van de grootste pluspunten. Winkels, supermarkten, horeca en openbaar vervoer bevinden zich op loopafstand. Binnen enkele minuten sta je in het centrum en ook andere stadsdelen zijn uitstekend bereikbaar. Hier woon je centraal, met alle dynamiek van de stad binnen handbereik.

ACTIEVE VVE EN SOLIDE COMPLEX
Het appartement maakt deel uit van een actieve Vereniging van Eigenaren en is gelegen in een degelijk complex met karakter. Een uitstekende kans voor starters die slim willen instappen op een toplocatie.

KENMERKEN
-Bouwjaar 1952
-Woonoppervlakte ca. 70 m²
-Veel lichtinval
-Huidige indeling 2 kamers (mogelijkheid tot 3 kamers)
-Gelegen aan de Goudsesingel, centraal in Rotterdam
-Alle voorzieningen op loopafstand
-Verwarming en warm water middels stadsverwarming
-Energielabel G
-Actieve VvE met een bijdrage van ca. €307,-
-Ouderdomsclausule van toepassing
-Niet-zelfbewoningsclausule van toepassing
-Oplevering in overleg, kan snel

INTERESSE? MAAK DAN SNEL EEN AFSPRAAK!
Ons advies is om bij het kopen van jouw nieuwe woning jouw eigen NVM makelaar mee te nemen.

TOELICHTINGSCLAUSULE NEN2580
De Meetinstructie is gebaseerd op de NEN2580. De Meetinstructie is bedoeld om een meer eenduidige manier van meten toe te passen voor het geven van een indicatie van de gebruiksoppervlakte. De Meetinstructie sluit verschillen in meetuitkomsten niet volledig uit, door bijvoorbeeld interpretatieverschillen, afrondingen of beperkingen bij het uitvoeren van de meting.

KOOPOVEREENKOMST PAS RECHTSGELDIG NA ONDERTEKENING
Een mondelinge overeenstemming tussen de particuliere verkoper en de particuliere koper is niet rechtsgeldig. Met andere woorden: er is geen koop. Er is pas sprake van een rechtsgeldige koop als de particuliere verkoper en de particuliere koper de koopovereenkomst hebben ondertekend. Dit vloeit voort uit artikel 7:2 Burgerlijk Wetboek. Een bevestiging van de mondelinge overeenstemming per e-mail of een toegestuurd concept van de koopovereenkomst wordt overigens niet gezien als een 'ondertekende koopovereenkomst'

“Deze informatie is door ons met de nodige zorgvuldigheid samengesteld. Onzerzijds wordt echter geen enkele aansprakelijkheid aanvaard voor enige onvolledigheid, onjuistheid of anderszins, dan wel de gevolgen daarvan. Alle opgegeven maten en oppervlakten zijn indicatief.”

Kenmerken

Basiskenmerken

  • Status Beschikbaar
  • Koopsom € 375.000 k.k.
  • Woonoppervlakte ca. 70 m2
  • Aantal slaapkamers 2
  • Bouwjaar 1952

Overdracht

  • Aanvaarding In overleg

Bouwvorm & onderhoud

  • Bouwjaar 1952
  • Soort bouw woonhuis
  • Ligging In centrum, vrij uitzicht, open ligging

Oppervlakte & inhoud

  • Gebruiksoppervlakte 70m2
  • Inhoud 240m3
  • Aantal kamers 2
  • Aantal slaapkamers 2
  • Aantal woonlagen 1 woonlagen

Energie & installatie

  • Energielabel C
  • Isolatie Dubbel glas
  • Verwarming Stadsverwarming
  • Warm water Stadsverwarming
  • Energie einddatum 11-02-2036

Bergruimte

  • Schuur / berging Box

Parkeergelegenheid

  • Parkeerfaciliteiten Betaald parkeren, parkeervergunningen
  • Garage Geen garage

Dak

  • Soort dak Plat dak

Overig

  • Onderhoud binnen Goed
  • Onderhoud buiten Goed
  • Bijzonderheden Gedeeltelijk gestoffeerd
  • Permanente bewoning Ja
  • Huidig gebruik Woonruimte
  • Huidige bestemming Woonruimte

Voorzieningen

  • Voorzieningen Tv kabel, lift, natuurlijke ventilatie

Kadastrale gegevens

  • Perceelnummer 537
Meer kenmerken
Ontdek online wat jouw huis waard is

Met de online waardecheck ontdek je in een paar minuten de geschatte waarde van jouw huis

Online waardecheck

In de buurt

Geïnteresseerd?

Bel met Van Der Giessen & Van Herk Makelaars

shape

Stuur een bericht

* Maximaal 255 tekens
privacyverklaring