Chat with us, powered by LiveChat Beukelsdijk 13 B 03, 3021 AA ROTTERDAM - Van Der Giessen & Van Herk Makelaars

Rotterdam

Beukelsdijk  13 B 03

€ 350.000,- k.k.

Omschrijving

Stadsappartement op eigen grond met balkon en volop potentie op een centrale locatie nabij Rotterdam Centraal! Aan de levendige Beukelsdijk, op de grens van het centrum en het populaire Nieuwe Westen, bieden wij dit ruim opgezette dubbel laags appartement aan. Gelegen op de derde én het achterste deel van de vierde verdieping, beschikt deze woning over een…

Stadsappartement op eigen grond met balkon en volop potentie op een centrale locatie nabij Rotterdam Centraal!

Aan de levendige Beukelsdijk, op de grens van het centrum en het populaire Nieuwe Westen, bieden wij dit ruim opgezette dubbel laags appartement aan. Gelegen op de derde én het achterste deel van de vierde verdieping, beschikt deze woning over een gebruiksoppervlakte van ca. 83 m², een balkon met uitzicht en functionele indeling met volop mogelijkheden om de woning naar eigen wens te moderniseren.

Dankzij de centrale ligging op loopafstand van Rotterdam Centraal Station, is dit een bijzonder aantrekkelijke woning voor wie comfortabel wil wonen in de stad met uitstekende bereikbaarheid.

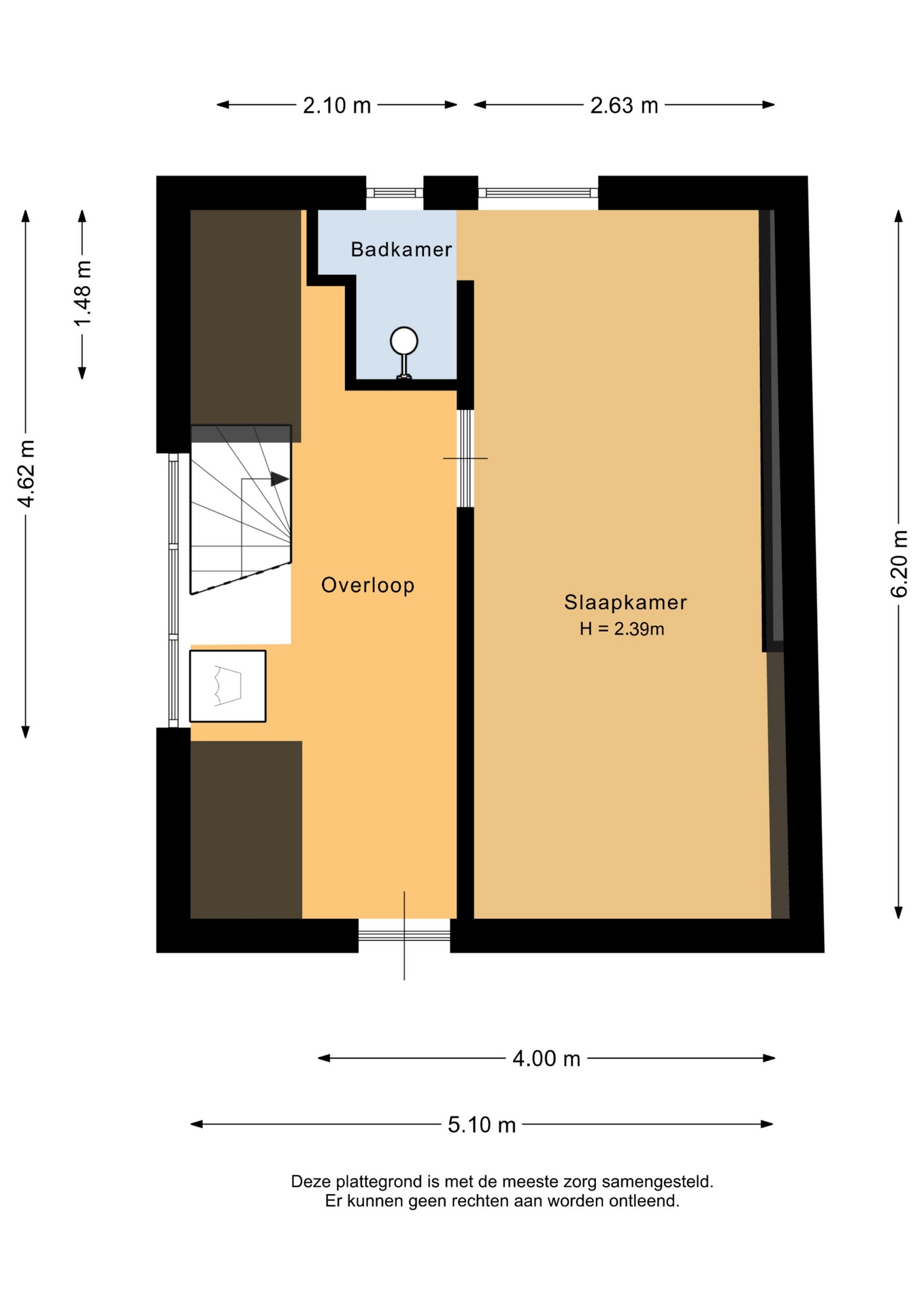
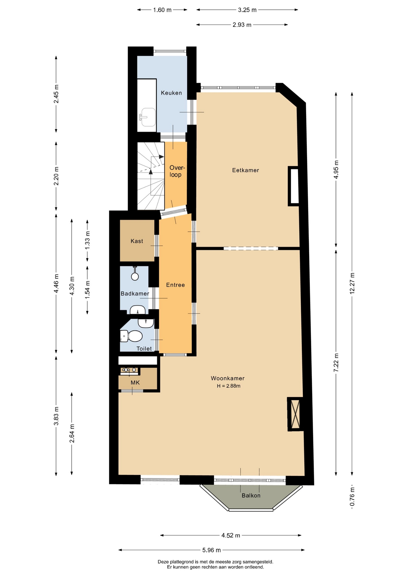
TWEE WOONLAGEN
De woning is verdeeld over twee verdiepingen. Op de derde verdieping bevindt zich de entree, een ruime hal, een badkamer, separaat toilet en een royale woonkamer aan de achterzijde. Aan de voorzijde ligt de eetkamer met aangrenzende keuken, die afzonderlijk is gesitueerd. De vierde verdieping bestaat uit een ruime slaapkamer met eigen badkamer. De twee woonlagen bieden diverse gebruiksmogelijkheden, zoals wonen met een werkplek, logeermogelijkheid of een privé slaapverdieping.

VEEL LICHTINVAL EN BALKON MET UITZICHT
Aan de voorzijde van de woonkamer bevindt zich het balkon. Door een gunstige ligging is het hier overdag heerlijk genieten van uitzicht over de stad en groen. Daarnaast beschikt de woning over grote raampartijen aan zowel de voor- als achterzijde. In combinatie met de plafondhoogte van ca. 2,88 meter zorgt dit voor een prettige ruimtelijke beleving en veel natuurlijke lichtinval.

CENTRALE LIGGING MET ALLES BINNEN HANDBEREIK
De Beukelsdijk ligt aan de rand van het Nieuwe Westen, een wijk die zich kenmerkt door een mix van historische architectuur, stads dynamiek en diverse culturen. Op loopafstand vind je supermarkten, winkels, horecagelegenheden, speciaalzaken en het openbaar vervoer. Rotterdam Centraal Station ligt op slechts enkele minuten lopen, waardoor je binnen no-time in andere steden bent. Ook het centrum van Rotterdam en populaire straten als de West-Kruiskade en Nieuwe Binnenweg liggen op steenworp afstand.

*Er zijn artist impressions beschikbaar die laten zien hoe de woning kan worden ingericht met een moderne afwerking en doordachte indeling. Deze beelden bieden kopers een goede indruk van de mogelijkheden om het geheel om te vormen tot een hedendaags stadsappartement, geheel naar eigen smaak*

KENMERKEN
- Bouwjaar: ca. 1933
- Woonoppervlakte: ca. 83 m²
- Gelegen op eigen grond (géén erfpacht)
- Dubbele woonlaag op 3e en achterzijde 4e verdieping
- Woonkamer met uitzicht en balkon
- Plafondhoogte woonkamer: ca. 2,88 meter
- Actieve VvE, maandelijkse bijdrage € 141,- per maand
- Toplocatie nabij Rotterdam Centraal en centrum
- Ouderdomsclausule van toepassing
- Niet-zelfbewoningsclausule van toepassing
- Oplevering in overleg, kan op korte termijn

INTERESSE? MAAK DAN SNEL EEN AFSPRAAK!
Ons advies is om bij het kopen van jouw nieuwe woning jouw eigen NVM makelaar mee te nemen.

TOELICHTINGSCLAUSULE NEN2580
De Meetinstructie is gebaseerd op de NEN2580. De Meetinstructie is bedoeld om een meer eenduidige manier van meten toe te passen voor het geven van een indicatie van de gebruiksoppervlakte. De Meetinstructie sluit verschillen in meetuitkomsten niet volledig uit, door bijvoorbeeld interpretatieverschillen, afrondingen of beperkingen bij het uitvoeren van de meting.

KOOPOVEREENKOMST PAS RECHTSGELDIG NA ONDERTEKENING
Een mondelinge overeenstemming tussen de particuliere verkoper en de particuliere koper is niet rechtsgeldig. Met andere woorden: er is geen koop. Er is pas sprake van een rechtsgeldige koop als de particuliere verkoper en de particuliere koper de koopovereenkomst hebben ondertekend. Dit vloeit voort uit artikel 7:2 Burgerlijk Wetboek. Een bevestiging van de mondelinge overeenstemming per e-mail of een toegestuurd concept van de koopovereenkomst wordt overigens niet gezien als een 'ondertekende koopovereenkomst'

“Deze informatie is door ons met de nodige zorgvuldigheid samengesteld. Onzerzijds wordt echter geen enkele aansprakelijkheid aanvaard voor enige onvolledigheid, onjuistheid of anderszins, dan wel de gevolgen daarvan. Alle opgegeven maten en oppervlakten zijn indicatief.”

Kenmerken

Basiskenmerken

  • Status Beschikbaar
  • Koopsom € 350.000 k.k.
  • Woonoppervlakte ca. 83 m2
  • Aantal slaapkamers 2
  • Bouwjaar 1911

Overdracht

  • Aanvaarding In overleg

Bouwvorm & onderhoud

  • Bouwjaar 1911
  • Soort bouw woonhuis
  • Ligging Aan drukke weg, in centrum, vrij uitzicht

Oppervlakte & inhoud

  • Gebruiksoppervlakte 83m2
  • Inhoud 290m3
  • Aantal kamers 3
  • Aantal slaapkamers 2
  • Aantal woonlagen 2 woonlagen

Energie & installatie

  • Energielabel G
  • Isolatie Geen isolatie
  • Verwarming Moederhaard
  • Warm water Geiser eigendom
  • Energie einddatum 13-05-2035

Parkeergelegenheid

  • Parkeerfaciliteiten Betaald parkeren, parkeervergunningen
  • Garage Geen garage

Dak

  • Soort dak Samengesteld dak

Overig

  • Onderhoud binnen Matig
  • Onderhoud buiten Redelijk tot goed
  • Permanente bewoning Ja
  • Huidig gebruik Woonruimte
  • Huidige bestemming Woonruimte

Voorzieningen

  • Voorzieningen Natuurlijke ventilatie

Kadastrale gegevens

  • Perceelnummer 3662
Meer kenmerken
Ontdek online wat jouw huis waard is

Met de online waardecheck ontdek je in een paar minuten de geschatte waarde van jouw huis

Online waardecheck

Media

In de buurt

Geïnteresseerd?

Bel met Van Der Giessen & Van Herk Makelaars

shape

Stuur een bericht

* Maximaal 255 tekens
privacyverklaring