Chat with us, powered by LiveChat A.M. de Jongstraat 38, 3202 AD SPIJKENISSE - Van Der Giessen & Van Herk Makelaars

Spijkenisse

A.M. de Jongstraat 38

€ 350.000,- k.k.

Omschrijving

A.M. de Jongstraat 38 in Spijkenisse RUIMTE, LICHT EN EEN MODERNE TOUCH Welkom aan de A.M. de Jongstraat 38 in Spijkenisse – een verrassend ruime tussenwoning die jou alle comfort biedt voor de volgende stap. Met een aanbouw op de begane grond, twee dakkapellen en maar liefst vijf slaapkamers is dit huis ideaal voor jonge gezinnen of stellen die ruimte zoeken om te…

A.M. de Jongstraat 38 in Spijkenisse

RUIMTE, LICHT EN EEN MODERNE TOUCH
Welkom aan de A.M. de Jongstraat 38 in Spijkenisse – een verrassend ruime tussenwoning die jou alle comfort biedt voor de volgende stap. Met een aanbouw op de begane grond, twee dakkapellen en maar liefst vijf slaapkamers is dit huis ideaal voor jonge gezinnen of stellen die ruimte zoeken om te groeien. En dat allemaal in een rustige, groene wijk, met alle voorzieningen binnen handbereik.

Binnenkomen voelt meteen goed. Dankzij de uitbouw met lichtstraten aan de achterzijde heeft de ruime living van 32 m² veel natuurlijk daglicht. De woonkamer is royaal opgezet, met plek voor een fijne zithoek én grote eettafel. De open sfeer, gecombineerd met de warme vloer en de tuingerichte ligging, maakt dit een heerlijke plek om te ontspannen of gezellig samen te komen.

Met vijf slaapkamers is er bovendien genoeg ruimte voor werken aan huis, een logeerkamer, hobbyruimte of natuurlijk een kinderkamer. De tweede verdieping is extra ruim dankzij de dakkapellen aan zowel de voor- als achterzijde – een grote plus.

VERRASSEND VEEL RUIMTE VERDEELT OVER DRIE VERDIEPINGEN
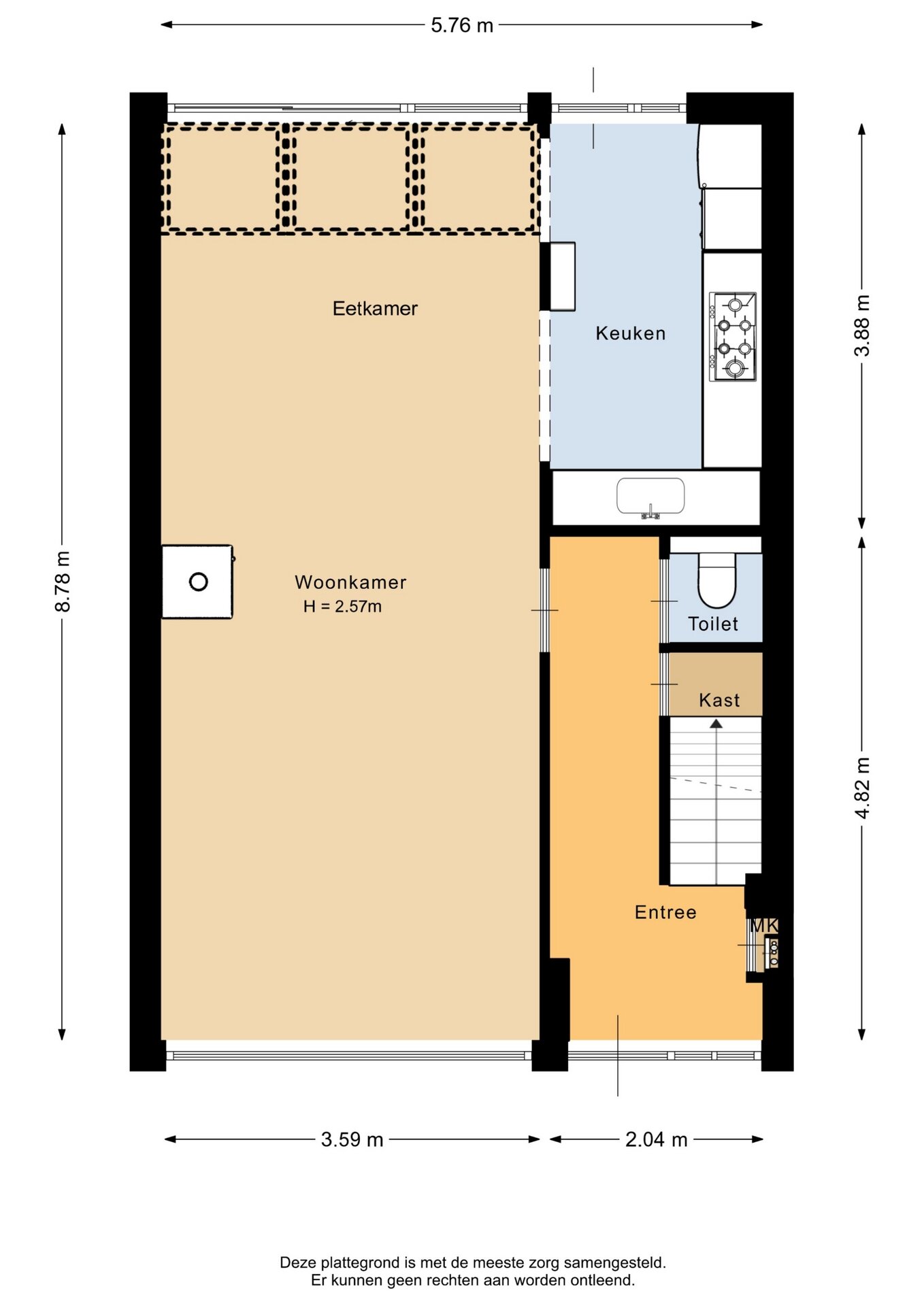
Het huis is praktisch ingedeeld met een modern toilet v.v. hangend closet en een royale uitgebouwde living en keuken op de begane grond. De keuken beschikt over diverse inbouwapparatuur, waaronder een groot 6-pits gasfornuis met oven, een afzuigkap, een vaatwasser, een magnetron en een koelkast. Dankzij de grote raampartijen en een toegangsdeur naar de tuin is er een fijne verbinding met buiten.

Op de eerste verdieping drie slaapkamers en de badkamer. De grootste slaapkamer ligt aan de achterzijde, met uitzicht op de tuin. Ook aan de voorzijde vind je een ruime kamer, nu in gebruik als kinderkamer, en een derde kamer die perfect werkt als kantoor of kastenkamer. De moderne badkamer is stijlvol afgewerkt en voorzien van een inloopdouche, wastafel met meubel en tweede hangend closet.

Op de tweede verdieping is een voorzolder met opstelling voor wasmachine en droger en toegang tot nog twee slaapkamers. Beide kamers profiteren van het extra licht en de ruimte die de dakkapellen bieden. Slimme bergruimte is hier mooi weggewerkt onder de schuine kap. Ideaal voor seizoensspullen of koffers.

ONDERHOUDSVRIJE TUIN EN BERGING VAN 9 m²
Via de schuifpui in de aanbouw stap je zo de onderhoudsvriendelijke achtertuin in. De ligging op het noordwesten zorgt ervoor dat je in de middag en avond lekker in de zon zit, maar ook op warme dagen voldoende schaduw hebt. De tuin is grotendeels bestraat en netjes aangelegd groene accenten en genoeg plek om te zitten of buiten te eten.

Achterin de tuin staat een ruime stenen berging van circa 9 m² – ideaal voor fietsen, tuingereedschap of als kleine werkruimte. De berging is goed bereikbaar via een achterom.

WONEN IN SCHIEKAMP (SPIJKENISSE NOORD)
De woning ligt in de groene woonwijk Schiekamp, onderdeel van Spijkenisse Noord. Deze buurt staat bekend om de rustige straten, veel openbaar groen en een fijne mix van jonge gezinnen en doorstromers. Schiekamp is ruim opgezet met brede lanen en voldoende parkeergelegenheid, wat bijdraagt aan het prettige woonklimaat.

In de directe omgeving vind je diverse basisscholen, kinderdagverblijven en speeltuintjes – ideaal voor jonge gezinnen. Op loopafstand liggen meerdere bushaltes. Ook met de auto zit je snel op de A15 richting Rotterdam, Europoort of richting Brabant.

Voor de dagelijkse boodschappen ligt winkelcentrum 't Plateau in de buurt, net als diverse sportverenigingen, het zwembad en de bioscoop. De wijk grenst bovendien aan het Hartelpark, waar je heerlijk kunt wandelen, hardlopen of fietsen.

Kortom: Schiekamp biedt een rustige woonomgeving met volop voorzieningen binnen handbereik – een perfecte plek om thuis te komen.

BELANGRIJKSTE KENMERKEN:
- Woonoppervlakte: 118 m²
- Perceeloppervlakte: 124 m²
- Bouwjaar: 1958
- Aanbouw met lichtstraat achterzijde
- Twee dakkapellen aan zowel de voor- als achterzijde
- Energielabel C
- Moderne badkamer en toilet
- 5 slaapkamers
- Schilderwerk buitenzijde (2022/2023)
- Oplevering: In overleg (richtlijn december 2025)

Toelichtingsclausule NEN2580:
De Meetinstructie is gebaseerd op de NEN2580. De Meetinstructie is bedoeld om een meer eenduidige manier van meten toe te passen voor het geven van een indicatie van de gebruiksoppervlakte. De Meetinstructie sluit verschillen in meetuitkomsten niet volledig uit, door bijvoorbeeld interpretatieverschillen, afrondingen of beperkingen bij het uitvoeren van de meting.

“Deze informatie is door ons met de nodige zorgvuldigheid samengesteld. Onzerzijds wordt echter geen enkele aansprakelijkheid aanvaard voor enige onvolledigheid, onjuistheid of anderszins, dan wel de gevolgen daarvan. Alle opgegeven maten en oppervlakten zijn indicatief.”

Koopovereenkomst pas rechtsgeldig na ondertekening:
Een mondelinge overeenstemming tussen de particuliere verkoper en de particuliere koper is niet rechtsgeldig. Met andere woorden: er is geen koop. Er is pas sprake van een rechtsgeldige koop als de particuliere verkoper en de particuliere koper de koopovereenkomst hebben ondertekend. Dit vloeit voort uit artikel 7:2 Burgerlijk Wetboek. Een bevestiging van de mondelinge overeenstemming per e-mail of een toegestuurd concept van de koopovereenkomst wordt overigens niet gezien als een 'ondertekende koopovereenkomst'.

Kenmerken

Basiskenmerken

  • Status Verkocht onder voorbehoud
  • Koopsom € 350.000 k.k.
  • Woonoppervlakte ca. 118 m2
  • Aantal slaapkamers 5
  • Bouwjaar 1958

Overdracht

  • Aanvaarding In overleg

Bouwvorm & onderhoud

  • Soort object Tussenwoning
  • Soort woning Eengezinswoning
  • Bouwjaar 1958
  • Soort bouw woonhuis
  • Ligging Aan rustige weg, in woonwijk, beschutte ligging

Oppervlakte & inhoud

  • Gebruiksoppervlakte 118m2
  • Perceeloppervlakte 124m2
  • Inhoud 388m3
  • Aantal kamers 6
  • Aantal slaapkamers 5
  • Aantal woonlagen 3 woonlagen

Energie & installatie

  • Energielabel C
  • Verwarming Cv ketel
  • Warm water Cv ketel
  • C.v.-ketel type GAS
  • C.v.-ketel bouwjaar 2007
  • Energie einddatum 2035-08-08

Bergruimte

  • Schuur / berging Vrijstaand steen
  • Voorzieningen Voorzien van elektra

Parkeergelegenheid

  • Parkeerfaciliteiten Openbaar parkeren
  • Garage Geen garage

Dak

  • Soort dak Zadeldak

Overig

  • Onderhoud binnen Goed
  • Onderhoud buiten Goed
  • Bijzonderheden Gedeeltelijk gestoffeerd
  • Permanente bewoning Ja
  • Huidig gebruik Woonruimte
  • Huidige bestemming Woonruimte

Voorzieningen

  • Voorzieningen Tv kabel, buitenzonwering, schuifpui, glasvezel kabel, natuurlijke ventilatie

Buitenruimte

  • Hoofdtuin ACHTERTUIN
  • Oppervlakte hoofdtuin 33m2
  • Ligging hoofdtuin NOORDWEST
  • Kwaliteit tuin Verzorgd

Kadastrale gegevens

  • Perceelnummer 2158
  • Perceeloppervlakte 124
Meer kenmerken

Ontdek online wat jouw huis waard is

Met de online waardecheck ontdek je in een paar minuten de geschatte waarde van jouw huis

Online waardecheck

In de buurt