Chat with us, powered by LiveChat Schaardijk 19 a, 2921 LG Krimpen Aan Den IJssel Van Der Giessen & Van Herk Makelaars

Krimpen Aan Den Ijssel

Schaardijk  19 a

€ 95,- per m² p/j

Omschrijving

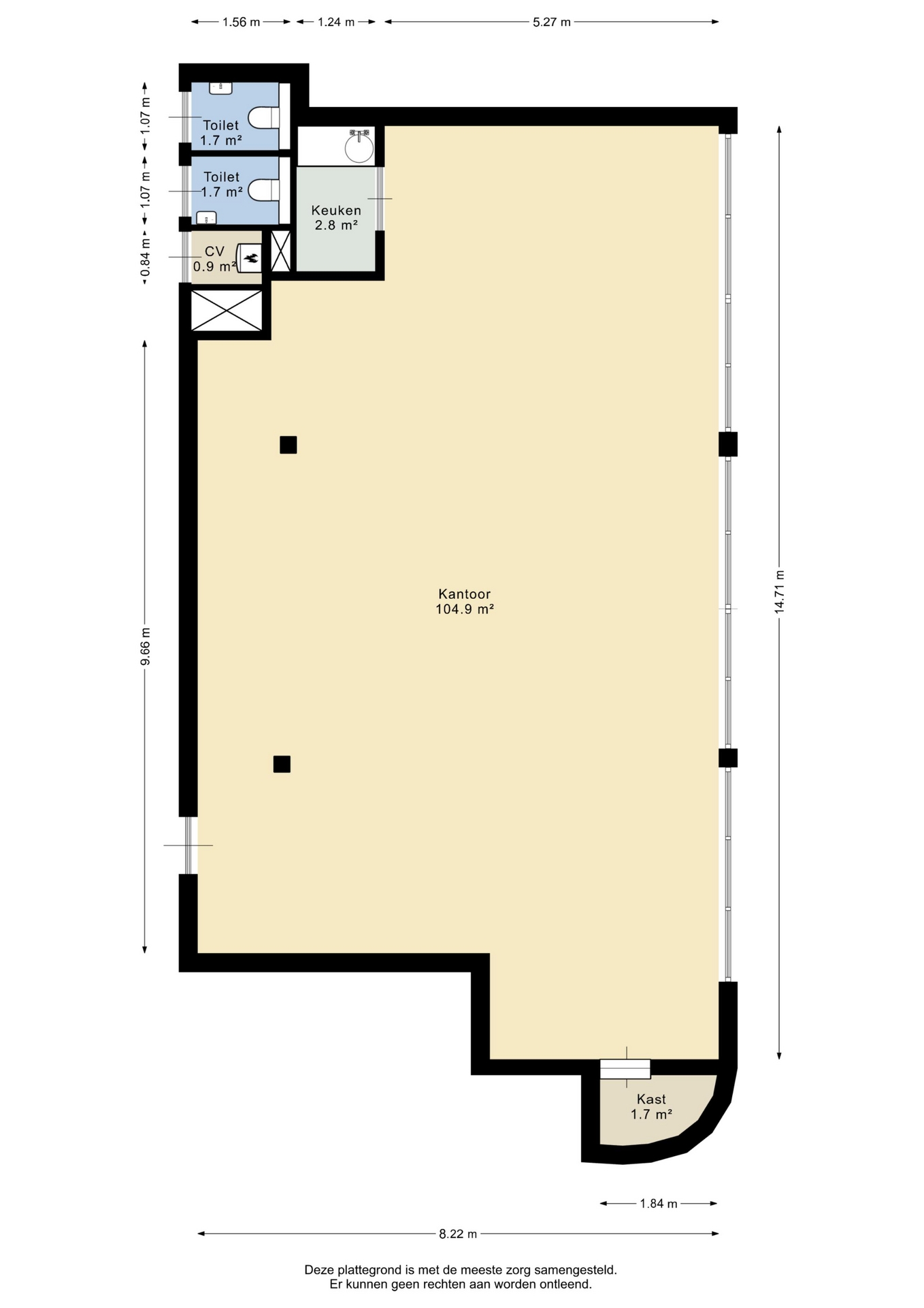
NOG DRIE RUIMTES BESCHIKBAAR MET EIGEN PANTRY EN TOILET Wij hebben in dit fraaie verzamelgebouw nog drie ruimtes beschikbaar. Deze ruimtes hebben een eigen pantry, toiletgroep, mooi tapijt en raambekleding. Kortom een representatief kantoor vlakbij Capelle aan den IJssel en Rotterdam Beschikbaar: Unit C, ca. 118 m2 begane grond; Unit H, ca. 151 m2 1e verdieping. Huur €…

NOG DRIE RUIMTES BESCHIKBAAR MET EIGEN PANTRY EN TOILET
Wij hebben in dit fraaie verzamelgebouw nog drie ruimtes beschikbaar. Deze ruimtes hebben een eigen pantry, toiletgroep, mooi tapijt en raambekleding. Kortom een representatief kantoor vlakbij Capelle aan den IJssel en Rotterdam

Beschikbaar:
Unit C, ca. 118 m2 begane grond;
Unit H, ca. 151 m2 1e verdieping.

Huur € 95,- per m² per jaar
Servicekosten € 45,- per m² per jaar

De ruimte wordt turn-key opgeleverd en is onder andere voorzien van:
- systeemplafond met ingebouwde verlichtingsarmaturen;
- voorzien van nieuwe tapijtvloer;
- pantry;
- intercominstallatie;
- internetaansluiting;
- apart dames en heren toilet;
- raambekleding.

Huurprijsaanpassing:
De huurprijs wordt jaarlijks herzien op basis van de consumentenprijsindex (CPI) Alle Huishoudens (2015=100), gepubliceerd door het Centraal Bureau voor de Statistiek (CBS), mits dit geen verlaging tot gevolg heeft.

Huurbetaling:
De betaling van de huurprijs, servicekosten (voorschot) en eventuele BTW geschiedt steeds per maand bij vooruitbetaling.

Huurtermijn:
De huurovereenkomst wordt aangegaan voor een nader vast te stellen termijn.

Zekerheid:
Huurder dient voor huuringangsdatum, maar uiterlijk een dag voor de datum van ingebruikname, aan verhuurder een waarborgsom te voldoen voor een betalingstermijn van 3 maanden huur, inclusief servicevoorschot en omzetbelasting.

BTW-status:
Verhuurder wenst te opteren voor BTW-belaste huur en verhuur. Ingeval huurder de BTW niet kan verrekenen, zal de huurprijs in overleg met huurder worden verhoogd ter compensatie van de gevolgen van het vervallen van de mogelijkheid om te opteren voor BTW-belaste verhuur.

Huurovereenkomst:
Huurovereenkomst wordt opgesteld conform het standaard model van de Raad voor Onroerende Zaken (ROZ), model 2015, zoals gehanteerd door de Nederlandse Vereniging voor Makelaars (NVM), aangevuld met locatie specifieke- en verhuurdersbepalingen.

Voorbehoud:
Elke transactie behoeft de nadrukkelijke goedkeuring van eigenaar.

Algemeen:
Al het bovenstaande betreft informatie omtrent de verhuur van Schaardijk 19 te Krimpen aan den IJssel. Deze informatie is met zorg samengesteld, maar voor de juistheid ervan kan door Van Herk Bedrijfsmakelaars geen aansprakelijkheid worden aanvaard, noch aan de vermelde gegevens enig recht worden ontleend. Nadrukkelijk is vermeld dat deze informatieverstrekking niet als een aanbieding of offerte mag worden beschouwd.

Kenmerken

Basiskenmerken

  • Status Beschikbaar
  • Huurprijs € 95,- per m² p/j
  • Servicekosten -
  • Aanvaarding In overleg

Bouwvorm & onderhoud

  • Hoofdfunctie Kantoorruimte
  • Soort bouw Bestaande bouw
  • Bouwjaar 1994

Oppervlakte & inhoud

  • Oppervlakte kantoor ca. 548 m2
  • Oppervlakte kantoor ca. 548 m2

Parkeergelegenheid

  • Parkeerfaciliteiten Vrij parkeren in de omgeving

Overig

  • Onderhoud binnen Uitstekend
  • Onderhoud buiten Uitstekend
Meer kenmerken
Taxatie van uw bedrijfspand, kantoor of winkel?

Wij leveren binnen 1 week.

Taxatie

In de buurt

Geïnteresseerd?

Bel met Van Der Giessen & Van Herk Makelaars

shape

Stuur een bericht

* Maximaal 255 tekens
privacyverklaring