Chat with us, powered by LiveChat Rivium Westlaan 42, 2909 LD Capelle Aan Den IJssel Van Der Giessen & Van Herk Makelaars

Capelle Aan Den Ijssel

Rivium Westlaan  42

€ 65.000,- p/j

Omschrijving

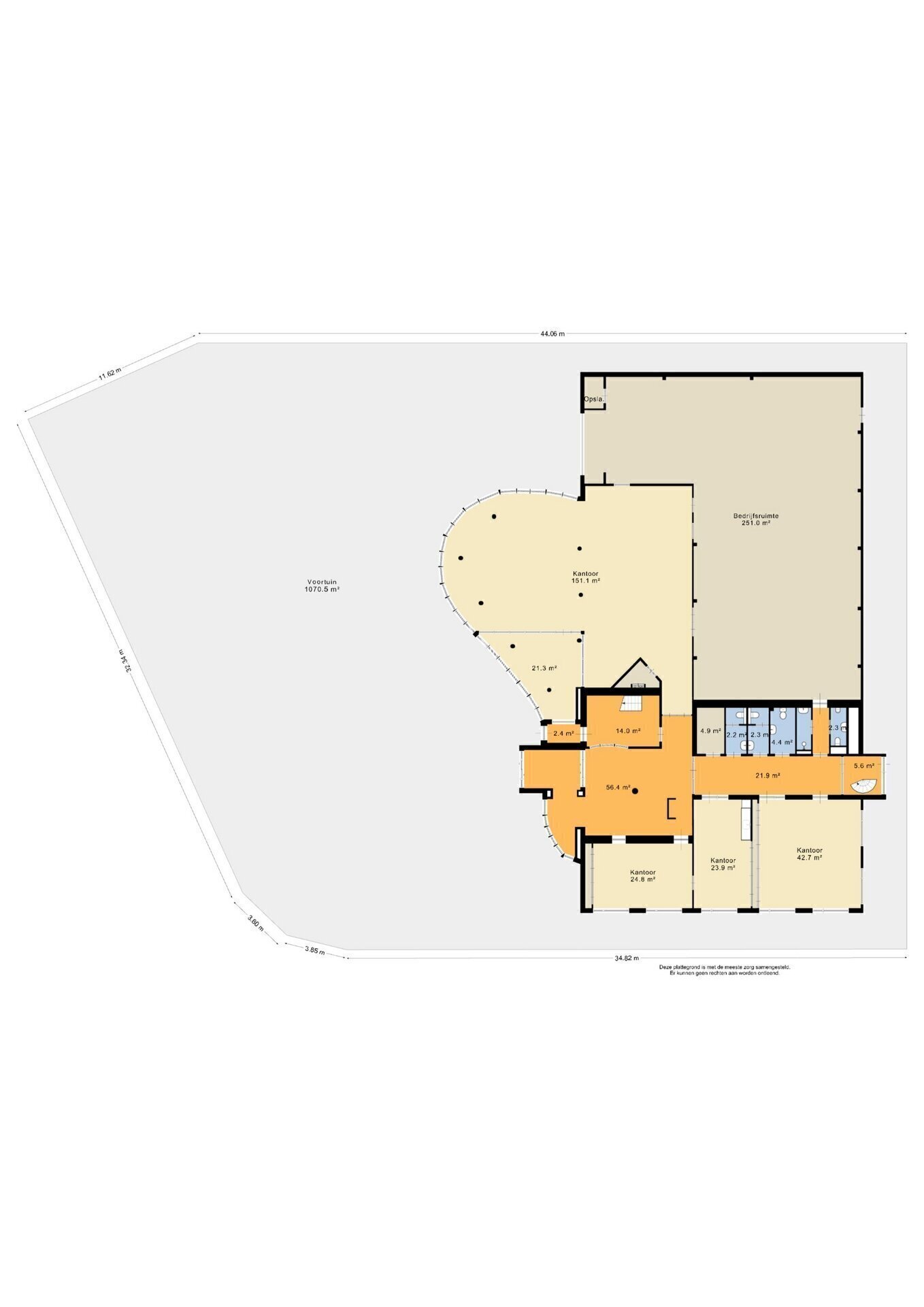
Te huur: kantoorruimte, showruimte en bedrijfsruimte van in totaal ca. 600 m² op de begane grond van een representatief bedrijfsgebouw op het Rivium te Capelle aan den IJssel. Het gebouw beschikt over parkeergelegenheid op eigen terrein. Het aanbod bestaat uit: ca. 345 m² kantoorruimte/showroomruimte op de begane grond; ca. 235 m² bedrijfsruimte (hoogte ca. 5,8 meter)…

Te huur: kantoorruimte, showruimte en bedrijfsruimte van in totaal ca. 600 m² op de begane grond van een representatief bedrijfsgebouw op het Rivium te Capelle aan den IJssel. Het gebouw beschikt over parkeergelegenheid op eigen terrein.

Het aanbod bestaat uit:
ca. 345 m² kantoorruimte/showroomruimte op de begane grond;
ca. 235 m² bedrijfsruimte (hoogte ca. 5,8 meter) met een bovenloopkraan.

Het entreegebied van het gebouw is gemeenschappelijk met de gebruiker van de 1e en de 2e verdieping.

Parkeervoorziening:
Op eigen terrein zijn 8 parkeerplaatsen beschikbaar, waarvan een deel met laadpalen voor elektrische voertuigen.

Locatie/bereikbaarheid:
Het kantorenpark 'Rivium' heeft een directe verbinding met rijksweg A16 (Rotterdam-Breda-Antwerpen) en andere belangrijke uitvalswegen. De Maasboulevard geeft een goede verbinding naar het centrum van Rotterdam. Per openbaar vervoer is Rivium eveneens goed bereikbaar. Er is een eigen parkshuttle met een halte voor het gebouw die het park verbindt met metrostation Kralingse Zoom (8 min.) en Fascinatio / Brainpark III. Metrostation Kralingse Zoom is op loopafstand gelegen en met buslijnen 97 en 98 verbonden met Rivium.

Opleveringsniveau:
De ruimte wordt nagenoeg Turn-Key opgeleverd en is onder andere voorzien van:
- systeemplafond met ingebouwde verlichtingsarmaturen
- alarminstallatie
- airconditioning
- vloerafwerking d.m.v. tapijttegels en PVC laminaat
- uitgebreide pantry
- internetaansluiting (glasvezel)
- verwarming middels radiatoren
- gerenoveerd sanitair
- douchegelegenheid

Aanvaarding: in overleg, kan op korte termijn.

Huurprijs:
€ 65.000,- per jaar, excl. BTW.

Voorschot servicekosten (hoogte nader vast te stellen):
- energiekosten en kosten water (huur verbruiksmeters, verbruik, transport, heffingen, etc.);
- belastingen en heffingen (waterschap, OZB-gebruiker, rioolheffing, etc.) ;
- vereniging Parkmanagement Rivium (beheer, beveiliging, onderhoud, gladheidbestrijding);
- glasbewassing buitenzijde gebouw;
- schoonmaken algemene ruimten;
- alarminstallatie (onderhoud, kosten alarmcentrale, kosten alarmopvolging, data-aansluiting);
- regulier onderhoud gebouw gebonden installaties;
- onderhoud terrein, brandslanghaspel, brandblussers, terrein, ventilatie en koeling, etc;
- 5 % administratiekosten

Huurprijsaanpassing: De huurprijs wordt jaarlijks herzien op basis van de consumentenprijsindex (CPI) Alle Huishoudens (2015=100), gepubliceerd door het Centraal Bureau voor de Statistiek (CBS), mits dit geen verlaging tot gevolg heeft.
Huurbetaling: de betaling van de huurprijs, servicekosten en eventuele BTW geschiedt steeds per maand bij vooruitbetaling.

Huurtermijn: de huurovereenkomst wordt aangegaan voor een termijn van tenminste 3 jaar

Zekerheid: huurder dient voor huuringangsdatum, maar uiterlijk een dag voor de datum van ingebruikname, aan verhuurder een waarborgsom te voldoen ter grootte van een betalingstermijn van 3 maanden huur inclusief servicevoorschot en omzetbelasting.

BTW: verhuurder wenst te opteren voor BTW- belaste huur en verhuur. Ingeval huurder de BTW niet kan verrekenen, zal de huurprijs in overleg met huurder worden verhoogd ter compensatie van de gevolgen van het vervallen van de mogelijkheid om te opteren voor BTW- belaste verhuur.

Huurovereenkomst: huurovereenkomst wordt opgesteld conform het standaard model van de Raad voor Onroerende Zaken (ROZ), model 2015, zoals gehanteerd door de Nederlandse Vereniging voor Makelaars (NVM), aangevuld met locatie specifieke- en verhuurdersbepalingen.

Voorbehoud: elke transactie behoeft de nadrukkelijke goedkeuring van de verhuurder.

Algemeen: al het bovenstaande betreft informatie omtrent de verhuur van Rivium Westlaan 42 te Capelle aan den IJssel. Deze informatie is met zorg samengesteld, maar voor de juistheid ervan kan door Van Herk Bedrijfsmakelaars geen aansprakelijkheid worden aanvaard, noch aan de vermelde gegevens enig recht worden ontleend. Nadrukkelijk is vermeld dat deze informatieverstrekking niet als een aanbieding of offerte mag worden beschouwd.

Kenmerken

Basiskenmerken

  • Status Beschikbaar
  • Huurprijs € 65.000,- p/j
  • Servicekosten -
  • Aanvaarding Direct

Bouwvorm & onderhoud

  • Hoofdfunctie Kantoorruimte
  • Soort bouw Bestaande bouw
  • Bouwjaar 1997

Oppervlakte & inhoud

  • Oppervlakte bedrijfshal 225 m2
  • Oppervlakte kantoor ca. 345 m2
  • Oppervlakte kantoor ca. 345 m2

Overig

  • Onderhoud binnen Goed
  • Onderhoud buiten Goed
Meer kenmerken
Taxatie van uw bedrijfspand, kantoor of winkel?

Wij leveren binnen 1 week.

Taxatie

In de buurt

Geïnteresseerd?

Bel met Van Der Giessen & Van Herk Makelaars

shape

Stuur een bericht

* Maximaal 255 tekens
privacyverklaring