Chat with us, powered by LiveChat Boeingavenue 303 E, 1119 PD SCHIPHOL-RIJK Van Der Giessen & Van Herk Makelaars

Schiphol-Rijk

Boeingavenue  303 E

€ 1.795,- p/m

Omschrijving

Object: complete uitgeruste multifunctionele bedrijfsunit, onderdeel uitmakende van de bedrijfsverzamelgebouwen De Mainport 2.0 te Schiphol-Rijk Vloeroppervlakte: totaal circa 108 m² VVO verdeeld over: begane grond circa 54 m² VVO verdieping circa 54 m² VVO Parkeervoorziening: de bedrijfsunit beschikt over 2 parkeerplaatsen. Locatie/bereikbaarheid: De bedrijfsunits…

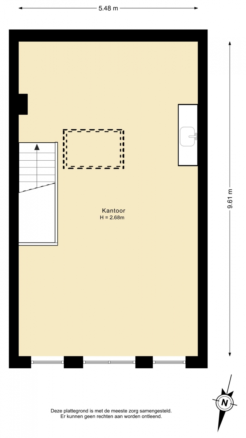
Object: complete uitgeruste multifunctionele bedrijfsunit, onderdeel uitmakende van de bedrijfsverzamelgebouwen De Mainport 2.0 te Schiphol-Rijk

Vloeroppervlakte: totaal circa 108 m² VVO verdeeld over:
begane grond circa 54 m² VVO
verdieping circa 54 m² VVO

Parkeervoorziening: de bedrijfsunit beschikt over 2 parkeerplaatsen.

Locatie/bereikbaarheid:
De bedrijfsunits zijn gesitueerd op het kantoren-/bedrijventerrein Schiphol-Rijk aan de Molenweg op zeer korte afstand van de brug naar Aalsmeer en het nieuw ontwikkelde gebied Greenpark en de bloemenveiling Royal FloraHolland. Schiphol-Rijk
wordt aangemerkt als een hoogwaardig modern gebied met fraai aangelegde water- en groenpartijen. Diverse toonaangevende bedrijven hebben Schiphol-Rijk als vestigingsplaats gekozen In het park bevinden zich meerdere hotels met onder meer diverse
vergaderfaciliteiten en een bar/restaurant in het naastgelegen Best Western Hotel.

De bedrijfsunits zijn strategisch gelegen nabij Schiphol Airport en is uitstekend bereikbaar door de centrale ligging nabij uitvalswegen en openbaarvervoer verbindingen. Schiphol-Rijk ligt aan de N196 en de nieuwe N201 met directe aansluiting op de rijksweg A4/A5 richting Amsterdam, Haarlem, Den Haag en Rotterdam, rijksweg A9 richting Haarlem, Amsterdam Zuidoost en Utrecht en rijksweg A10 richting Amsterdam, Amersfoort. Zowel de luchthaven Schiphol als Greenpark en bloemenveiling Royal FloraHolland zijn met de auto binnen enkele minuten bereikbaar.
Ook per openbaar vervoer is het goed te bereiken, dankzij de op loopafstand gelegen bushalte waar vanuit het NS station Schiphol binnen enkele minuten is te bereiken.

Opleveringsniveau:
- handbedienbare overheaddeur (afm. ca. 3,30/3,0 m1 (bxh);
- begane grond vrije hoogte circa 3.70 m¹;
- verdieping vrije hoogte circa 3,00 m1;
- 3 x 25A op basis van 230 Volt, hiermee behoort krachtstroom tot de mogelijkheden;
- separate toegangsdeur;
- vloerbelasting circa 2.000 kg/m² voor de begane grond en 400 kg/m² voor de verdieping;
- systeemplafond met verlichtingsarmaturen;
- led buitenlamp;
- led-verlichting;
- diverse wand contact dozen;
- pantry met warmwater boiler;
- toilet;
- uitstort gootsteen;
- eclectische verwarmingspaneel;
- voorbereiding zonnepanelen;
- een automatische brandmelder;
- vluchtweg aanduidingen met noodverlichting.(1x begane grond en 1x verdieping);
- draagbaar blustoestel conform NEN 2559;
- mogelijkheid om op een vaste plaats reclame te voeren.

Aanvaarding: in overleg.

Huurprijs: € 1.795,- per maand, exclusief BTW.

Servicekosten: een voorschot bedrag van € 50,- per maand, exclusief B.T.W. ten behoeve van
- onderhoud groen;
- schoonmaak ramen;
- onderhoudscontract overheaddeuren en brandblusser;

Huurder beschikt over eigen meters en dient derhalve zelf overeenkomsten te sluiten met desbetreffende nutsbedrijven.

Huurprijsaanpassing: jaarlijks zal de huurprijs worden herzien op basis van de wijziging van het maandprijsindexcijfer volgens de consumentenprijsindex (CPI) Alle Huishoudens (2015=100), gepubliceerd door het Centraal Bureau voor de Statistiek (CBS), mits dit geen verlaging tot gevolg heeft.

Huurbetaling: de betaling van de huurprijs, eventuele servicekosten en de eventuele B.T.W. geschiedt in termijnen 1 maand bij vooruitbetaling.

Huurtermijn: de huurovereenkomst wordt aangegaan voor nader vast te stellen termijnen.

Zekerheid: huurder dient binnen 2 weken na ondertekening van de huurovereenkomst, maar uiterlijk een dag voor de datum van ingebruikname, aan verhuurder een bankgarantie c.q. waarborgsom te voldoen voor een betalingstermijn van 3 maanden, inclusief omzetbelasting.

BTW-status: verhuurder wenst te opteren voor BTW-belaste huur en verhuur. Ingeval huurder de BTW niet kan verrekenen, zal de huurprijs in overleg met huurder worden verhoogd ter compensatie van de gevolgen van het vervallen van de mogelijkheid om te opteren voor BTW-belaste huur.

Huurovereenkomst: huurovereenkomst conform het standaard model van de Raad voor Onroerende Zaken (ROZ), zoals gehanteerd door de Nederlandse Vereniging voor Makelaars (NVM).

Voorbehoud: elke transactie behoeft de nadrukkelijke goedkeuring van eigenaar.

Algemeen: al het bovenstaande betreft informatie omtrent de verhuur van BOEINGAVENUE 303E te SCHIPHOL-RIJK. De informatie is met zorg samengesteld, maar voor de juistheid ervan kan door Van Herk bedrijfsmakelaars geen aansprakelijkheid worden aanvaard noch aan de vermelde gegevens enig recht worden ontleend. Nadrukkelijk is vermeld dat deze informatieverstrekking niet als een aanbieding of offerte mag worden beschouwd.

Kenmerken

Basiskenmerken

  • Status Beschikbaar
  • Huurprijs € 1.795,- p/m
  • Servicekosten -

Bouwvorm & onderhoud

  • Hoofdfunctie Bedrijfsruimte
  • Soort bouw Bestaande bouw
  • Bouwjaar 2026

Oppervlakte & inhoud

  • Oppervlakte bedrijfshal 108 m2

Parkeergelegenheid

  • Parkeerfaciliteiten Parkeervoorziening: de bedrijfsunit beschikt over 2 parkeerplaatsen.

Overig

  • Onderhoud binnen Uitstekend
  • Onderhoud buiten Uitstekend
Meer kenmerken
Taxatie van uw bedrijfspand, kantoor of winkel?

Wij leveren binnen 1 week.

Taxatie

Media

In de buurt

Geïnteresseerd?

Bel met Van Der Giessen & Van Herk Makelaars

shape

Stuur een bericht

* Maximaal 255 tekens
privacyverklaring