Chat with us, powered by LiveChat Kleiweg 197, 3051 XH ROTTERDAM - Van Der Giessen & Van Herk Makelaars

Rotterdam

Kleiweg  197

€ 850.000,- k.k.

Omschrijving

Compleet gerenoveerd 3-laags hoekhuis (176 m²) met energielabel A, 18 zonnepanelen en stijlvolle afwerking! Welkom aan de Kleiweg 197 – een karakteristiek jaren ’20-hoekhuis dat in 2018/2019 van top tot teen is gerenoveerd en opnieuw is opgebouwd met oog voor detail, comfort én duurzaamheid. Met maar liefst 176 m² woonoppervlakte, drie woonlagen, hoogwaardige afwerking,…

Compleet gerenoveerd 3-laags hoekhuis (176 m²) met energielabel A, 18 zonnepanelen en stijlvolle afwerking!

Welkom aan de Kleiweg 197 – een karakteristiek jaren ’20-hoekhuis dat in 2018/2019 van top tot teen is gerenoveerd en opnieuw is opgebouwd met oog voor detail, comfort én duurzaamheid. Met maar liefst 176 m² woonoppervlakte, drie woonlagen, hoogwaardige afwerking, moderne installaties en een speelse, open indeling biedt deze woning een unieke combinatie van charme, luxe en energiezuinig wonen.

HOOGWAARDIG VERBOUWD: INSTAPKLAAR EN TOT IN DE PUNTJES AFGEWERKT
In opdracht van de huidige eigenaren is dit huis in 11 maanden volledig gestript en verbouwd door een professionele aannemer. Alles is aangepakt: van isolatie en installaties tot indeling en afwerking. Dankzij de doordachte indeling met open ruimtes op elke verdieping voelt het huis licht, ruimtelijk en comfortabel aan.

DUURZAAM EN TOEKOMSTBESTENDIG WONEN
Een jaren ’20 woning met energielabel A? Aan de Kleiweg kan het! Dankzij volledige isolatie van gevels, vloeren en dak (inclusief 140 mm binnenmuurisolatie), HR(++)-glas, 18 zonnepanelen én vloerverwarming op alle verdiepingen is dit huis even comfortabel als duurzaam. De cv-installatie (HR-combiketel, 2018) zorgt efficiënt voor verwarming en warm water.

FLEXIBEL IN TE DELEN
De open indeling op alle verdiepingen geeft je veel vrijheid in gebruik. Wil je meerdere slaapkamers, een werkkamer of een speelruimte? Alles is mogelijk – dit huis groeit met je mee.

LIGGING: HILLEGERSBERG-ZUID
Gelegen op een geliefde locatie in het Kleiwegkwartier, op loopafstand van winkels, horeca, sportfaciliteiten en natuur zoals de Bergse Plassen en het Melanchtonpark. Ook het centrum van Rotterdam, het Oude Noorden en het Centraal Station zijn snel bereikbaar per fiets of openbaar vervoer. Uitvalswegen liggen om de hoek.

PLUSPUNTEN
- Volledig gestript, gerenoveerd en turnkey. Kosten noch moeite bespaard!
- Blinderende beglazing waarbij je goed naar buiten kan kijken, maar niet van buiten naar binnen
- Dakgoten vervangen in 2022
- Nieuw pannendak in 2019 gerealiseerd
- Dak van buiten geïsoleerd met SF40BB superfoil. Van binnen met Métisse PMA020 voor akoestische- en warmte isolatie
- Alle kozijnen begane grond in 2018 vervangen en nieuwe op maat gemaakte kozijnen met HR++ raamwerk geplaatst
- 18 zonnepanelen op het dak
- Spiltrap op maat gemaakt voor de ruimte
- Sfeervolle gashaard in de living op de begane grond
- Hout gestookte haard op de tweede verdieping
- Kwalitatief en uiterlijk zeer fraaie keuken op de begane grond met alle denkbare ATAG apparatuur (Tulpkeukens)
- Moderne en kwalitatief goede keuken op de eerste verdieping met Bauknecht apparatuur
- Luxe, ruime badkamer op 1e verdieping met ligbad en inloopdouche
- Mooie schuifdeuren op alle verdiepingen
- Gehele leiding- en elektrawerk vervangen met 3-fasen elektra aansluiting en 20 groepen
- Hoog rendement cv-combiketel van Remeha
- Vloerverwarming (hoofdverwarming) op elke verdieping met draadloze slimme bediening van Honeywell
- Airconditioning op alle verdiepingen
- Fundering onderzocht: palen in goede staat en waterpeil niveau in orde
- Moderne tegelvloer op de begane grond en laminaatvloer op de 1e en 2e verdieping
- Volledig geïsoleerd (dak, gevels, binnenmuren en vloer)
- Mogelijkheid tot creëren meer kamers indien gewenst.
- Realiseren van balkon, loggia of terras mogelijk.

KENMERKEN
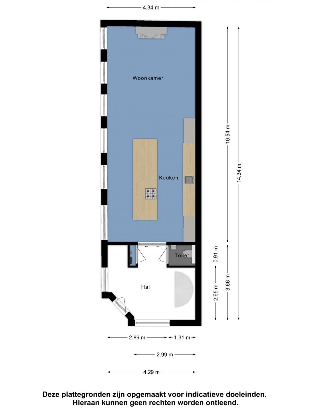
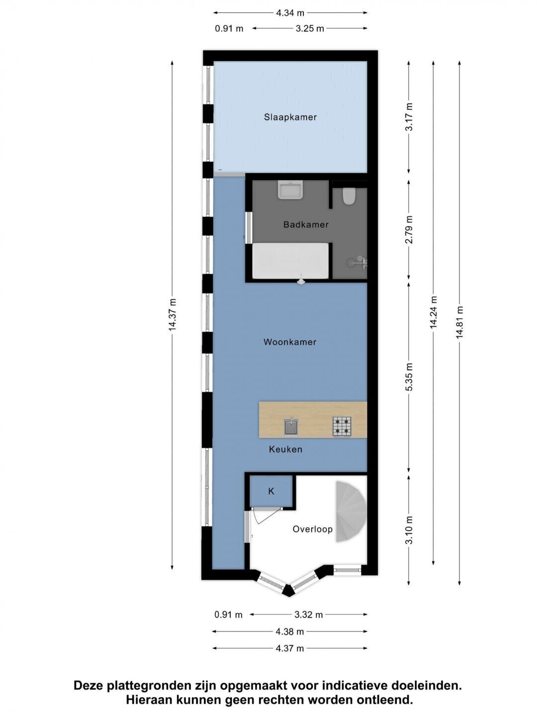
- Woonoppervlakte ca. 176 m²
- Inhoud ca. 679 m³
- Eigen grond
- Bouwjaar 1928
- Oplevering in overleg.

INTERESSE? MAAK DAN SNEL EEN AFSPRAAK!
Ons advies is om bij het kopen van uw nieuwe woning uw eigen NVM-makelaar mee te nemen.

TOELICHTINGSCLAUSULE NEN2580
De Meetinstructie is gebaseerd op de NEN2580. De Meetinstructie is bedoeld om een meer eenduidige manier van meten toe te passen voor het geven van een indicatie van de gebruiksoppervlakte. De Meetinstructie sluit verschillen in meetuitkomsten niet volledig uit, door bijvoorbeeld interpretatieverschillen, afrondingen of beperkingen bij het uitvoeren van de meting.

KOOPOVEREENKOMST PAS RECHTSGELDIG NA ONDERTEKENING
Een mondelinge overeenstemming tussen de particuliere verkoper en de particuliere koper is niet rechtsgeldig. Met andere woorden: er is geen koop. Er is pas sprake van een rechtsgeldige koop als de particuliere verkoper en de particuliere koper de koopovereenkomst hebben ondertekend. Dit vloeit voort uit artikel 7:2 Burgerlijk Wetboek. Een bevestiging van de mondelinge overeenstemming per e-mail of een toegestuurd concept van de koopovereenkomst wordt overigens niet gezien als een 'ondertekende koopovereenkomst'

“Deze informatie is door ons met de nodige zorgvuldigheid samengesteld. Onzerzijds wordt echter geen enkele aansprakelijkheid aanvaard voor enige onvolledigheid, onjuistheid of anderszins, dan wel de gevolgen daarvan. Alle opgegeven maten en oppervlakten zijn indicatief.”

Kenmerken

Basiskenmerken

  • Status Beschikbaar
  • Koopsom € 850.000 k.k.
  • Woonoppervlakte ca. 176 m2
  • Aantal slaapkamers 3
  • Bouwjaar 1928

Overdracht

  • Aanvaarding In overleg

Bouwvorm & onderhoud

  • Soort object Hoekwoning
  • Soort woning Eengezinswoning
  • Bouwjaar 1928
  • Soort bouw woonhuis
  • Ligging Aan rustige weg, in woonwijk, open ligging

Oppervlakte & inhoud

  • Gebruiksoppervlakte 176m2
  • Perceeloppervlakte 75m2
  • Inhoud 679m3
  • Aantal kamers 5
  • Aantal slaapkamers 3
  • Aantal woonlagen 3 woonlagen

Energie & installatie

  • Energielabel A
  • Isolatie Dakisolatie, muurisolatie, vloerisolatie, dubbel glas, volledig geisoleerd, hr glas
  • Verwarming Cv ketel, open haard, vloerverwarming geheel
  • Warm water Cv ketel
  • C.v.-ketel type GAS
  • C.v.-ketel bouwjaar 2018
  • Energie einddatum 11-08-2033

Parkeergelegenheid

  • Parkeerfaciliteiten Openbaar parkeren, betaald parkeren, parkeervergunningen
  • Garage Geen garage

Dak

  • Soort dak Zadeldak

Overig

  • Onderhoud binnen Uitstekend
  • Onderhoud buiten Uitstekend
  • Bijzonderheden Gedeeltelijk gestoffeerd
  • Permanente bewoning Ja
  • Huidig gebruik Woonruimte
  • Huidige bestemming Woonruimte

Voorzieningen

  • Voorzieningen Mechanische ventilatie, tv kabel, jacuzzi

Kadastrale gegevens

  • Perceelnummer 1630
  • Perceeloppervlakte 75 m2
Meer kenmerken
Ontdek online wat jouw huis waard is

Met de online waardecheck ontdek je in een paar minuten de geschatte waarde van jouw huis

Online waardecheck

Media

In de buurt

Geïnteresseerd?

Bel met Van Der Giessen & Van Herk Makelaars

shape

Stuur een bericht

* Maximaal 255 tekens
privacyverklaring